반응형

The origin of the design of this singular house located in Cabo de las Huertas in Alicante (southeast Spain) can be summed up in three short stories.
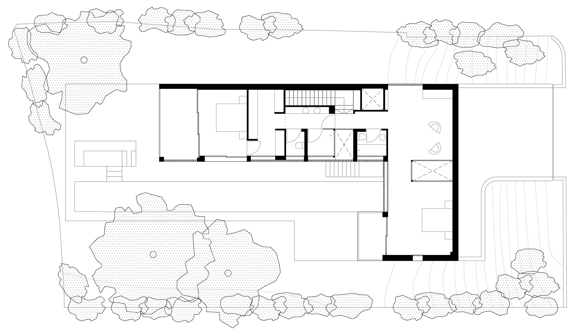
The first and most obvious is the one that refers to the client, who dreams of swimming regularly again. That is why the first decision when drawing the floor plan is to fit a 25m long swimming lane on the plot. This fact, together with the unevenness of the terrain, explains the flight of the L-shaped second floor over the pool and first floor, as well as the access sequence to the interior.
MTWhite 1 by PLAYstudio
































반응형
'House' 카테고리의 다른 글
| 전원주택 South Bohemian Family House by ATELIER 111 architekti (0) | 2022.10.13 |
|---|---|
| 맥락_비정형 LLO House by OOIIO Arquitectura (0) | 2022.10.12 |
| 숙박시설 UHU by Repère Boréal (0) | 2022.10.07 |
| 단독주택 Taslimi Residence by Fleetwood Fernandez Architects (0) | 2022.10.06 |
| 게스트 하우스 Marfa Suite by DUST (0) | 2022.10.05 |