반응형

바르셀로나의 지중해안 동네인 포블레누Poblenou에 위치한 기존 공장 건물을 주거 겸 스튜디오로 탈바꿈시킨 사례이다.
이 집은 두 가지 기본 전제를 가지고 디자인되었다. ① 기존 건물의 공간적 특성과 재료를 바탕으로, 산업시설이 많은 동네의 본질과 성격을 유지한다. ② 옥외 공간인 중정을 중심으로 공간들을 배치하는, 전형적인 지중해식 중정 주택으로 개발한다.
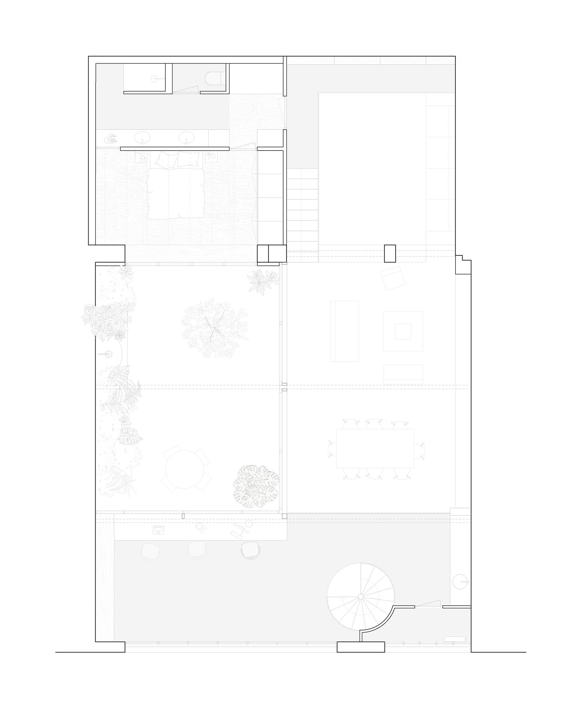
이에 따라, 이 집은 침실과 욕실을 제외한 나머지 전체가 천장고 높은 완전 개방형 가변 공간으로 계획되었다.
그리고 모든 공간들은, 이 집의 핵심 공간인 중정을 중심으로 ㄷ-자 형태로 배치되었다. 이 집에서 중정은, 채광과 환기를 위한 통로이자 자연을 접할 수 있는 ‘녹색 오아시스’ 역할을 한다.
HOUSES, ADAPTIVE REUSE • BARCELONA, SPAIN
Architects: Aramé Studio
Area: 2368 ft²
Year: 2022
Photographs: DEL RIO BANI
Lead Architects: Andrea Arriola, Adrián Mellado
Red House by Aramé Studio









































반응형