
It pretends to create a new meeting point bonding the pharmacy to the surroundings. Presenting a new urban appearance which leads to a dialog between the white walls and the pureness of the unsurfaced exposed concrete. It is its own materiality - stone, water, and garden - the one which connects the different elements that configure the new urban space.
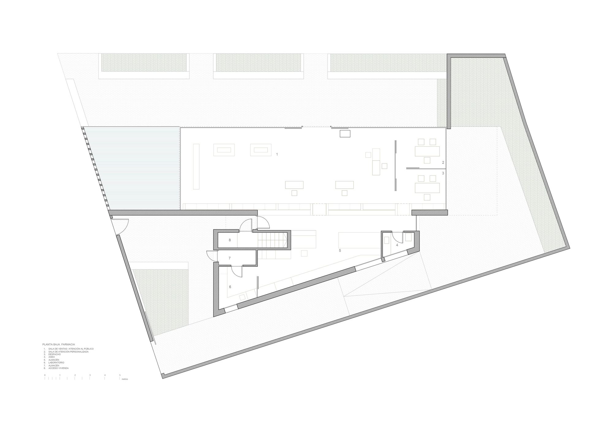
The intervention creates two visually differentiated volumes. One white piece is weightlessly placed over the pharmacy, locating the common spaces of the house. In another volume, made of concrete, the rooms and working and storage areas of the pharmacy. On its own, the public space of the pharmacy shows itself to the outside entirely sheer, in permanent contact with the urban space, where limits are faded.
Indoor the pharmacy, prominence is transferred to the pharmaceutical product by the presence of the white color and the continuity of the space. It gives both outstanding qualities to dwellers and pharmacy customers. Everyone is surrounded by a play of light, color, and diaphanous spaces which accommodate users. It is about to create a calm and introverted atmosphere, which permits the house to be a place of rest and tranquility; and the pharmacy a functional and versatile space, ready to be used. A generous space not so much too the large or small size of space as to the approach.
Enhancing the clarity of natural light is allowed by the proposed materials and the use of built-in furniture. They also permit stimulating the quality of spaces. For its part, accentuating the shapes of the exterior volumes and making their morphology and function visible is achieved by using indirect light which even lights up the whole space. It also allows emphasizes urban permeability.
MIXED USE ARCHITECTURE, HOUSES, PHARMACY • CÚLLAR VEGA, SPAIN
Architects : O·CO arquitectos
Area : 360 m²
Year : 2022
Photographs : Juan Barros
Manufacturers : Hoppe, JUNG, FARO Barcelona, Strugal, Corian, Navarti, Rocatiles, Zambelis light
Lead Architect : Ángel Vallecillo Zorrilla, Rafael Nieto Jimenez
Collaborator : Noemí Serrano Garrido
Construction Company : Hucen Obras y Proyectos SL
Furniture And Decoration : Muesco Decoración SL
FARMACIA-VIVIENDA ARM by O·CO arquitectos




























'House' 카테고리의 다른 글
| 단독주택 Taslimi Residence by Fleetwood Fernandez Architects (0) | 2022.10.06 |
|---|---|
| 게스트 하우스 Marfa Suite by DUST (0) | 2022.10.05 |
| 별장 주말주택 4/Way House by Deegan-Day Design & Architecture (0) | 2022.09.30 |
| 전원주택 5*5*5 Garden House by White Cube Atelier (0) | 2022.09.28 |
| 정체성과 세련미! 격자 스크린 파사드가 인상적인 현대식 디자인 주택, Muxarabi House by Cris Furlan Arquitetura (0) | 2022.02.07 |