
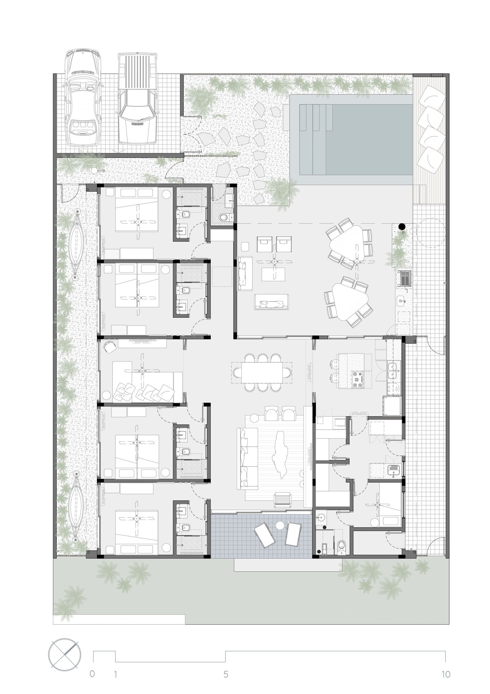
Localizada na praia de Guaecá, no litoral de São Paulo, Brasil, a Casa Patropi teve seu projeto desde o início pensado para aluguel. Sem um cliente exatamente definido, o projeto pode ousar em algumas soluções de acabamentos, ao mesmo tempo que deveria atender a todos os gostos para ser fácil de ser alugada. Com um entorno repleto de natureza, desejávamos que a casa respeitasse a paisagem. Apesar de sua volumetria contemporânea e marcante, a escolha dos materiais e cores, azul e verde, construíram a casa de uma forma delicada. O azul e o verde percorrem a casa como um todo por meio de diversos materiais e formas, compondo com a decoração brasileira e tropical. Charmosa, prática, econômica e flexível. Esse foi o briefing passado pela cliente. Por se tratar de uma residência para aluguel pelo Airbnb, o projeto deveria ser chamativo no site, ao mesmo tempo que funcional e agradável.
CASAS • PRAIA DO GUAECA, BRASIL
Arquitetos : Angá Arquitetura
Área : 240 m²
Ano : 2019
Fotografias : Carolina Lacaz
Fabricantes : Celucon, Fórmica, Goma Ateliê, Hidramais, Hidrel e Lustres Yamamura, Jatobá, Jeans Lavado, Marcenaria do Vandelson, Multi Pedras Ind. de Mármores e Granitos, Rochbeton, Suvinil, Suvinil e Verde Sálvia, Teplac, Vidraçaria Trindade
Equipe De Projeto : Carolina Gurgel, Gabriela Panico, Camila Caiuby
Casa Patropi by Angá Arquitetura









































'House' 카테고리의 다른 글
| 부속 건물 Atherton Pavilions by Feldman Architecture (0) | 2022.10.28 |
|---|---|
| 집짓기 주택설계 House in Ílhavo by M2 Senos Arquitectos (0) | 2022.10.21 |
| 전원주택 South Bohemian Family House by ATELIER 111 architekti (0) | 2022.10.13 |
| 맥락_비정형 LLO House by OOIIO Arquitectura (0) | 2022.10.12 |
| 화이트 하우스 More Than White House 1 by PLAYstudio (0) | 2022.10.11 |