반응형

HOUSES • GREAT BARRIER ISLAND / AOTEA, NEW ZEALAND
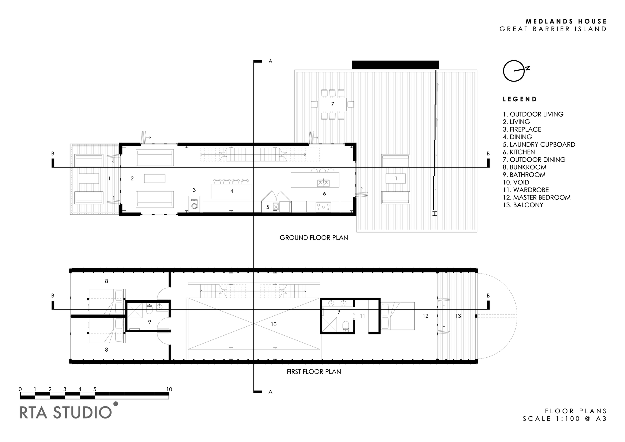
Architects : RTA Studio
Area : 110 m²
Year : 2022
Photographs : Jackie Meiring
Builders : Great Barrier Building
2022 NZIA Auckland Architecture Award
Fale Marker House by RTA Studio
















반응형
'House' 카테고리의 다른 글
| 중정형 주택 Octothorpe House by Mork-Ulnes (0) | 2022.12.08 |
|---|---|
| 채 분리 주택 Briarcliff Residence by Iannuzzi Studio (0) | 2022.12.02 |
| 부속 건물 Atherton Pavilions by Feldman Architecture (0) | 2022.10.28 |
| 집짓기 주택설계 House in Ílhavo by M2 Senos Arquitectos (0) | 2022.10.21 |
| 에어비앤비 Patropi House by Angá Arquitetura (0) | 2022.10.14 |