반응형

Designed by Small Not Tiny and Ample
Built by Ample
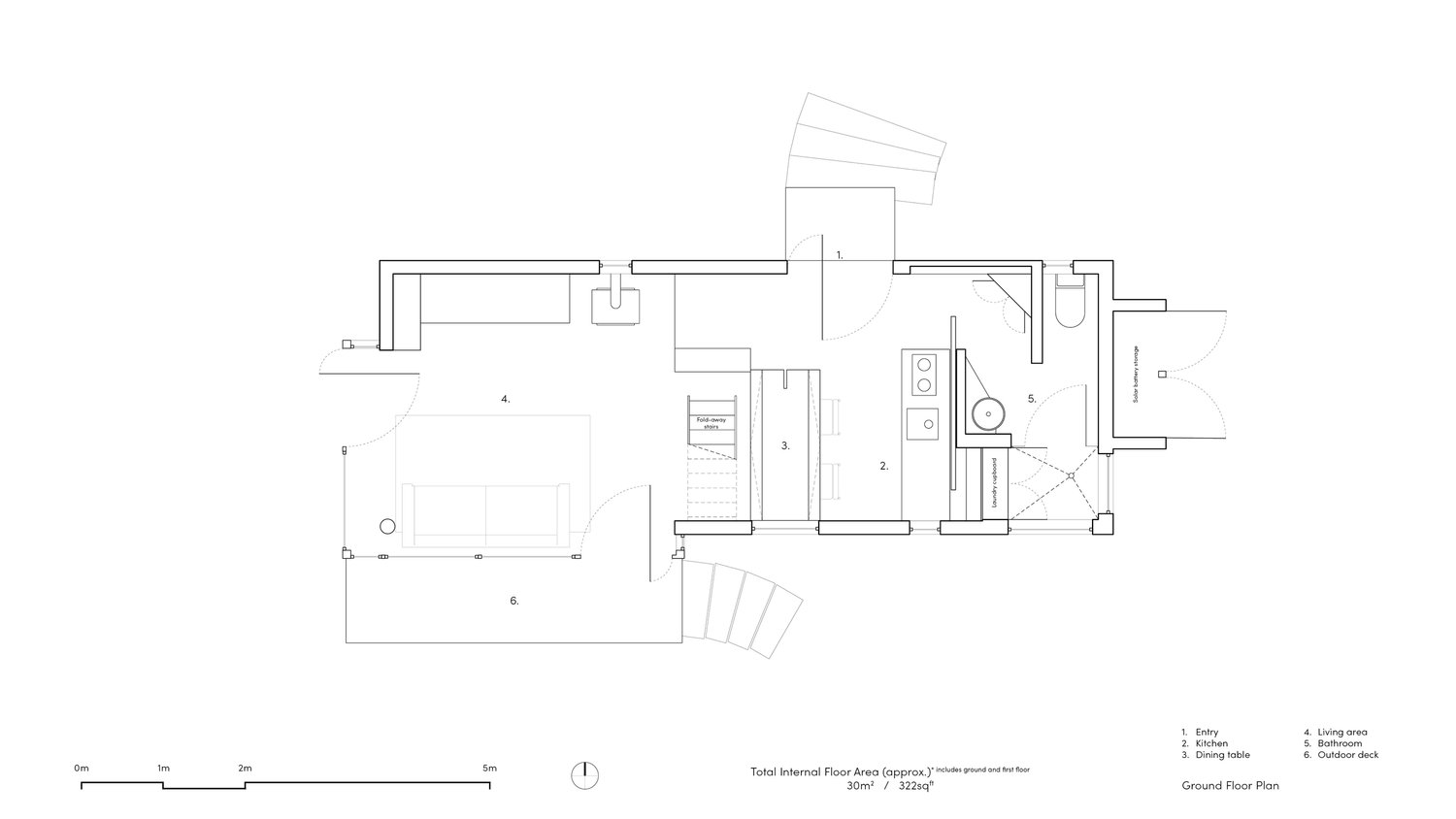
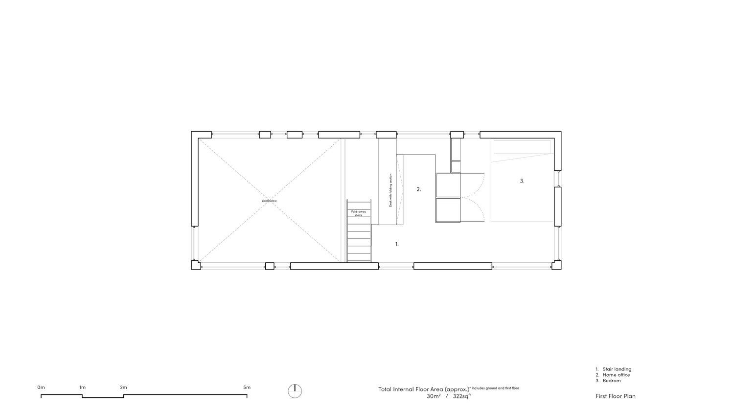
Floor Area 27 m2
Total Floor Area 40 m2
Photography by Derek Swalwell & Anthony Richardson
Videography by Anthony Richardson
The Brooke by Small Not Tiny and Ample



























반응형
'House' 카테고리의 다른 글
| 열대 주택 7x17 House by BHA studio (0) | 2022.12.27 |
|---|---|
| 파노라마 뷰 Sharon Residence by Resolution: 4 Architecture (0) | 2022.12.19 |
| 숲속 주택 Mazzini House by iHouse estudio (0) | 2022.12.14 |
| 2022 올해의 집 Red House by David Kohn Architects (0) | 2022.12.12 |
| 중정형 주택 Octothorpe House by Mork-Ulnes (0) | 2022.12.08 |