반응형

HOUSES • HUE, VIETNAM
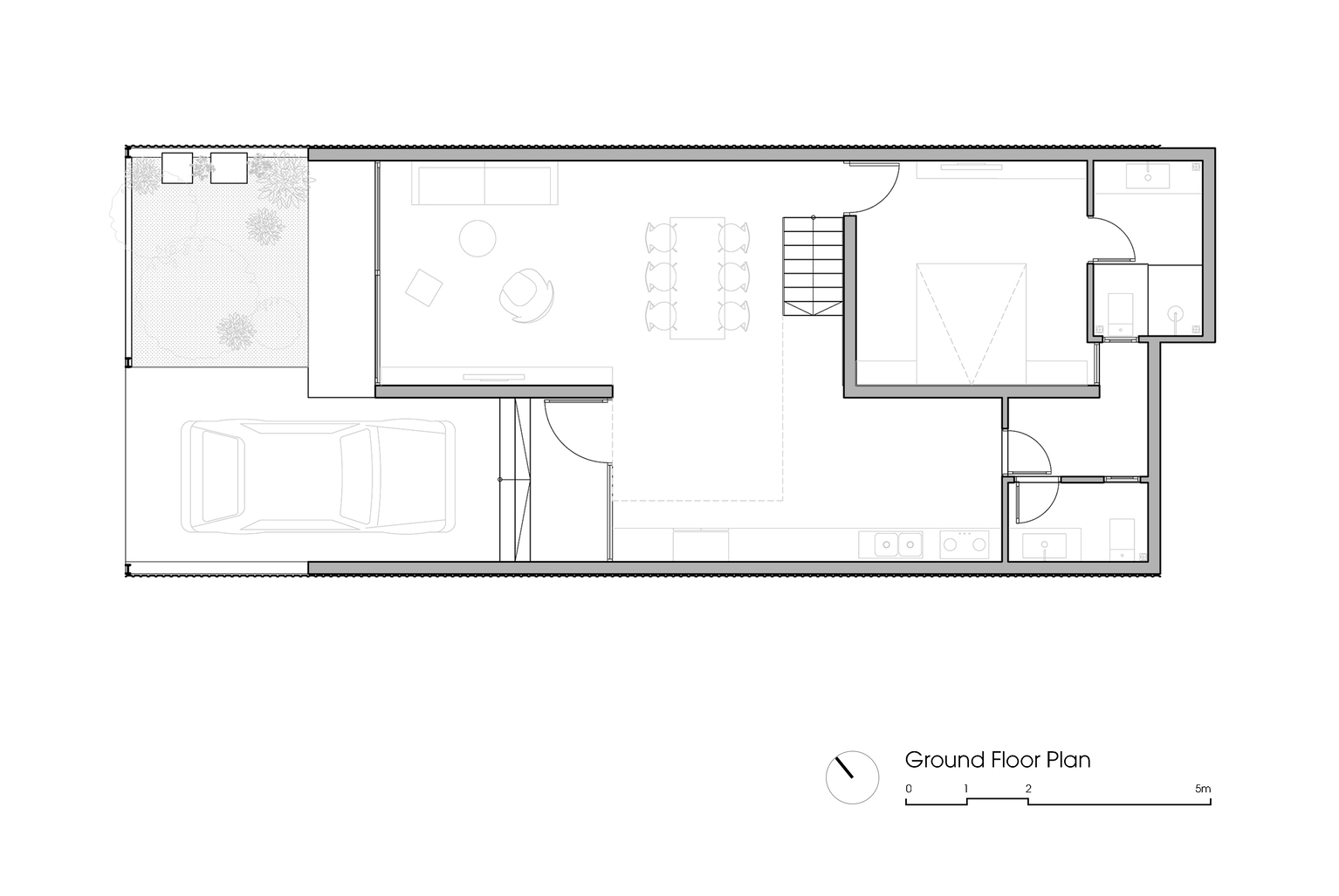
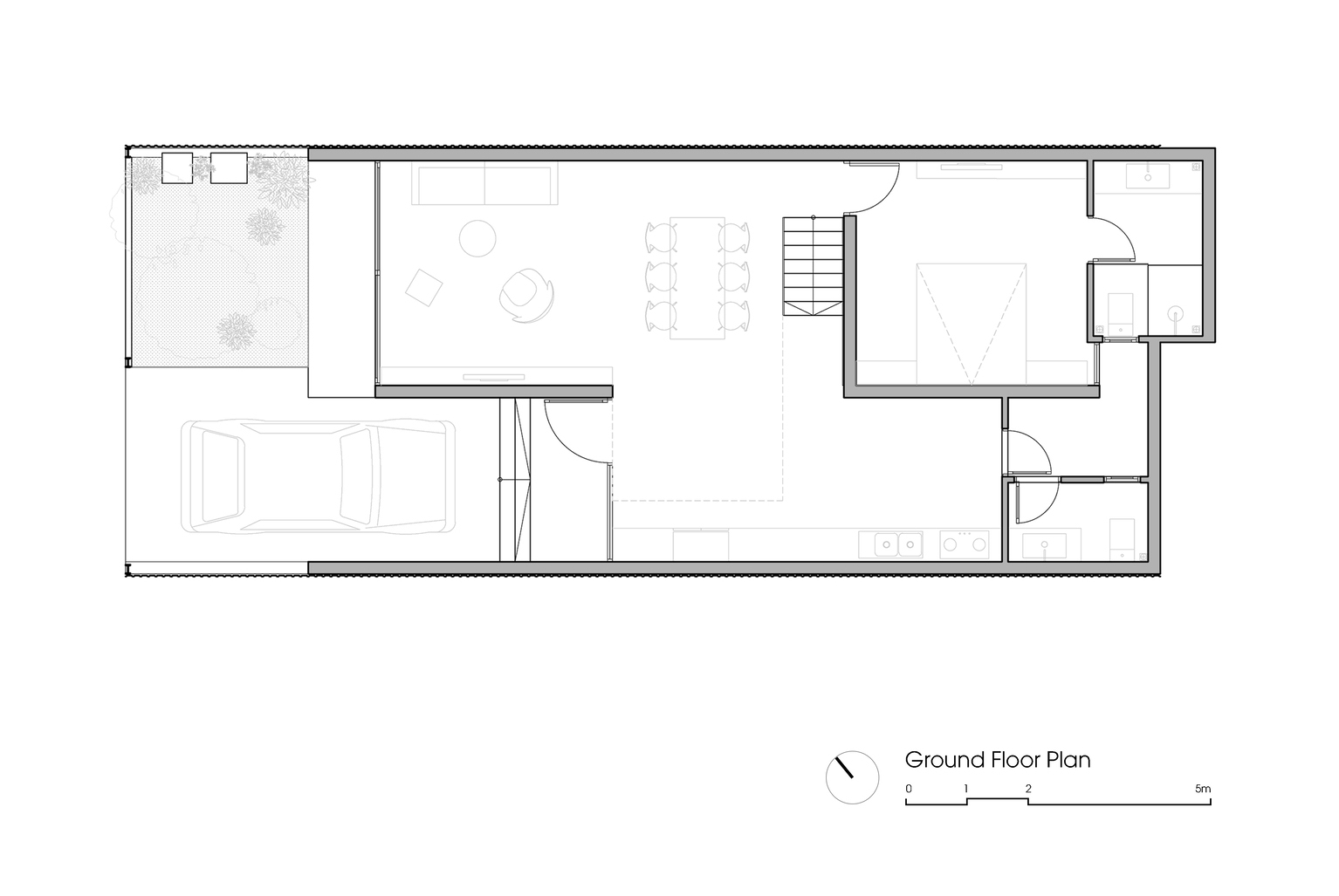
Architects : BHA studio
Area : 120 m²
Year : 2020
Photographs : Hoang Le
Manufacturers : An Cuong, INAX, Panasonic, Spec, TAICERA
Lead Architect : Nguyen Xuan Minh
7x17 House by BHA studio























반응형
'House' 카테고리의 다른 글
| Camera House by Leckie Studio (0) | 2023.02.01 |
|---|---|
| 목조 별장 Forest Retreat CT by Scalar Architecture (0) | 2023.01.03 |
| 파노라마 뷰 Sharon Residence by Resolution: 4 Architecture (0) | 2022.12.19 |
| 조립식 타이니 하우스 The Cutting by Small Not Tiny and Ample (0) | 2022.12.16 |
| 숲속 주택 Mazzini House by iHouse estudio (0) | 2022.12.14 |