반응형

아프리카와 더 가까운 북대서양 상의 포르투갈령 섬인 마데이라, 그중에서도 카니수Caniço 시의 바닷가에 위치한 주거의 인테리어 사례이다.
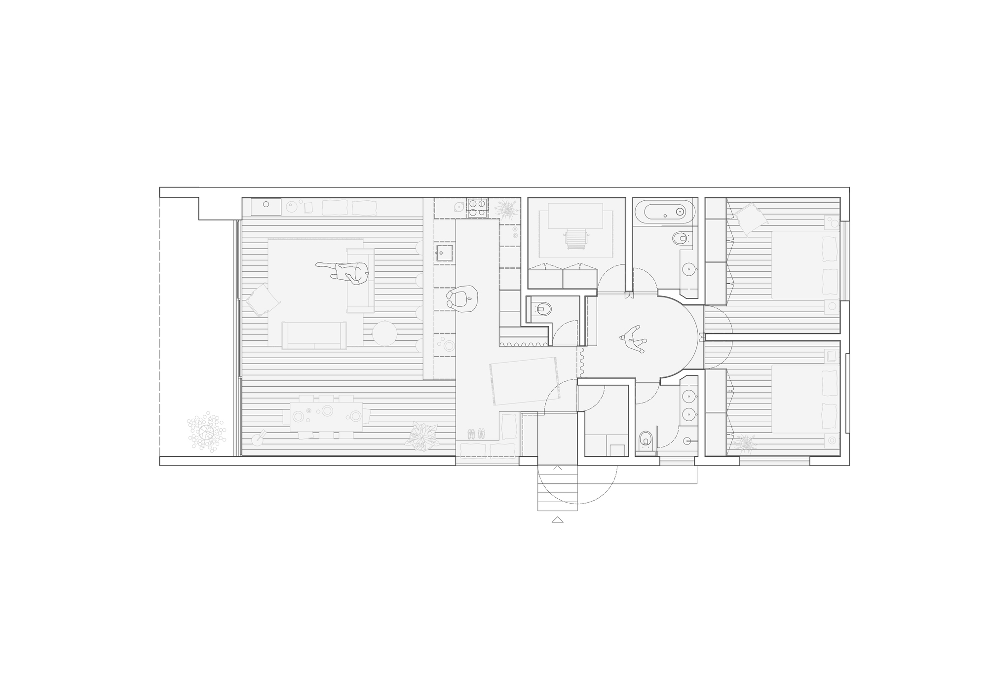
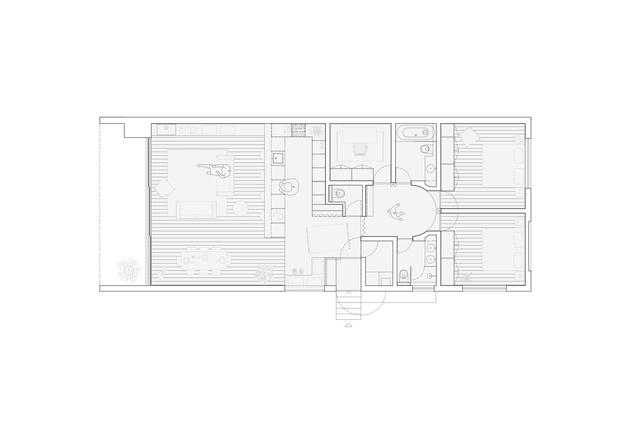
특별히 관심을 끌만한 특성이 없는 낡은 1970년대 건물을 리노베이션 해야 했기 때문에, ‘백지’ 상태로 만든 다음 내부를 새로 구성한 프로젝트이다. 기존의 경사진 지붕이 제공하는 높은 천장을 활용하기 위해, 내부 전체를 철거하여 원래 용적으로 복원을 했다.
북대서양이 바라다 보이는 곳에 위치한 건물 안에 들어있는 이 주거 디자인의 목표는, 현지의 강렬한 햇볕을 제어하는 동시에 외부 풍경을 내부로 끌어들이는 것이다. 이를 위해, 집의 광도와 온도를 제어하는 여러 층의 필터 개념으로 창이 디자인되었다. 동시에 이 필터는 비친 상과 그림자를 통해 녹색 환경을 내부로 끌어들인다.
구성 측면에서, 종축(남-북)은 사적 공간에서 공용 공간으로, 그늘에서 양지로 점점 바뀌어가도록 설정되었다.
HOUSES, DETAIL • CANIÇO, Madeira, PORTUGAL
Architects : COM/O atelier
Year : 2020
Lead Architects : Joana Duarte
Vila Venus Sol Apartment by COM/O atelier

















반응형
'Interior' 카테고리의 다른 글
| 밝고 자연스러운 분위기의 스킵 플로어 주택, Casa Vertical by Tsou Arquitectos (0) | 2023.04.03 |
|---|---|
| 앵무새를 테마로 한 호텔 객실 인테리어, Parrot’s Nest by Uro Design Concepts (0) | 2023.02.28 |
| 파스텔 톤으로 차분하고 자연스럽게 인테리어한 아파트, Beige Apartment by Zrobim Architects (0) | 2023.02.23 |
| 고전적인 아치 양식의 인테리어가 인상적인 사막 숙소, Yucca Valley Cabin by Knowhow Shop (0) | 2023.02.20 |
| 주거 겸 스튜디오! 완전 개방형 가변 공간으로 계획된 지중해식 중정 주택, Red House by Aramé Studio (0) | 2022.02.08 |