
뉴질랜드 북섬 카랑가하케Karangahake 현장에 단 4일 만에 시공을 끝낸 조립식 전원주택이다.
“낭비적이거나 시공하기 힘든 요소들을 배제하여 비용을 절감하면서도, 지속 가능한 주택으로 설계하는 데 집중을 했습니다.” 설계팀의 설명이다. “카랑가하케 숲과 카이마이 산맥으로 둘러싸인 언덕 꼭대기에 자리 잡은 이 집은, ‘쉼터, 만남, 그리고 자유를 위한 집단적 필수품으로의 복귀’를 의미합니다.”
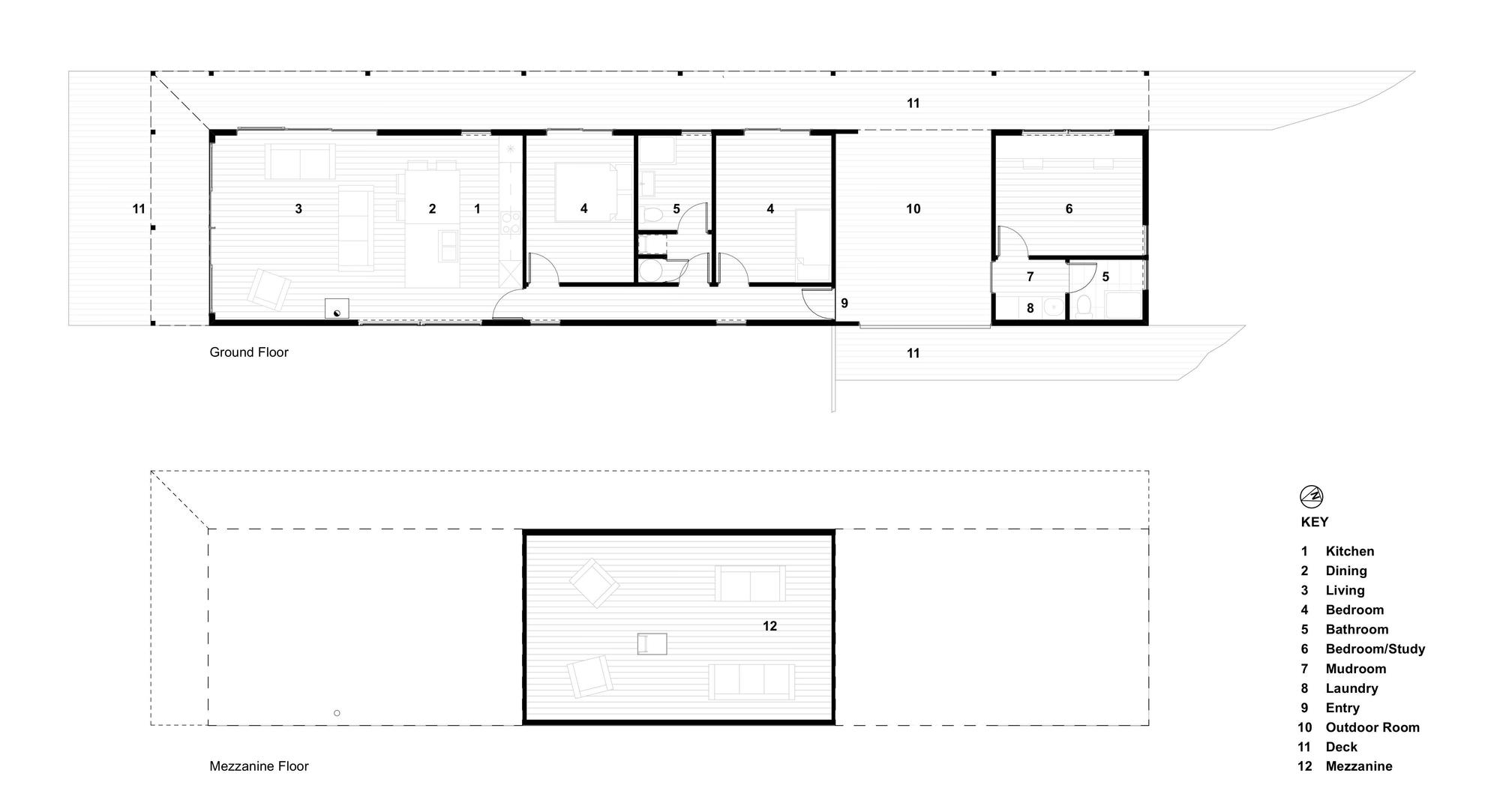
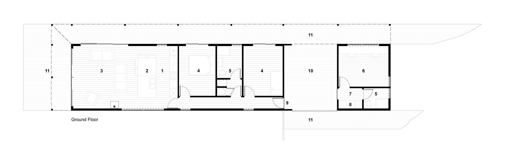
심플한 디자인의 이 주택은, 신중하게 선택한 재료, 비바람에 끄떡없는 마감, 스마트 환기 시스템 등을 통해 지속 가능하면서도 경관을 해치지 않도록 지어졌다. 아름다운 자연 경관을 즐길 수 있는 외부 테라스 외에, 양측 공간 사이에 건물을 관통하는 지붕 있는 통로이자 ‘옥외실’을 두기도 했다.
슬라이드 방식의 창고 문이 설치된 ‘옥외실’은, 지붕에 설치된 채광창을 통해 필터링 되어 들어오는 빛으로 완성된다. 내부는, 바닥의 집성 목재, 벽과 천장의 합판 등 온기 품은 목재로 마감하여, 고전적인 도보여행자용 숙소처럼 아늑한 분위기를 냈다.
“오다가다 들르는 여행자와 다른 가족을 위해 다락 공간까지 갖춘, 친밀하고 편한 집입니다.” MAKE Architects 측의 설명이다.
HOUSES • KARANGAHAKE, NEW ZEALAND
Architects: MAKE Architects NZ LTD
Area: 100 m²
Year: 2019
Photographs: David Straight Photography
Manufacturers: Plytech, Proclima, Abodo Wood NZ, Imo Group, Mr. Ralph Lighting, NK Windows, Wagener, Welhaus
Contractors: Carl O’Neill Builders
Collaborators: Welhaus – Welstruct
NZIA 2021 Winner Waikato Small Project Architecture Award
Dezeen 2020 Longlist Rural Project Architecture
Karangahake House by MAKE Architects



















