
세인트로렌스강과 오타와강이 합류하여 형성된 몬트리올 인근의 듀 몽따뉴 호Lac des Deux Montagnes 호숫가에 위치한 요트 마니아 부부의 집이다.
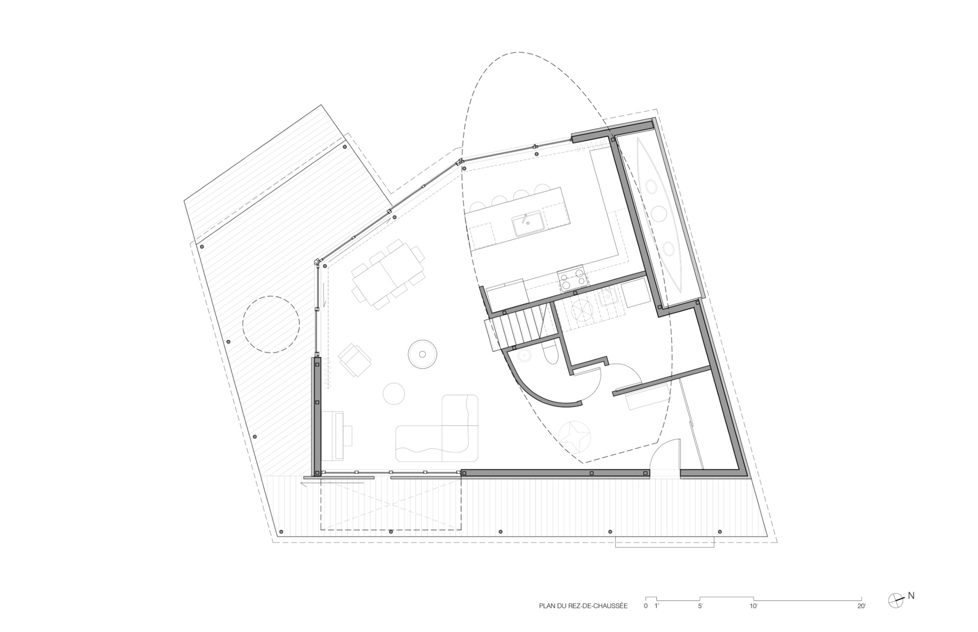
A Major Challenge 큰 도전 과제 하나를 안고 있는 부지이다. 전체 부지 면적은 크지만, 도시 계획 규정에 따라 100년 홍수위 선 바깥쪽으로만 건축이 가능하기 때문에 실제는 아주 작은 면적의 대지나 마찬가지라는 것이다. 건축주와 건축가는 이를 흥미로운 도전으로 받아들였다고 한다. 홍수위 선과 다양한 장애물을 피해 건물을 배치한 결과 특별한 모양의 집이 되었다.
The Boat in the Trees 작지만, 건축주의 요구와 부지의 특성에 최적화된 집으로 디자인되었다. 이 집은, 몸통 보다 큰 흰색 지붕을 가진 나무 상자(1층) 위에, 호수를 향해 나아가는 배 모양을 닮은 타원형의 2층을 올린 구조를 하고 있다. 마스터 침실을 이 보트의 뱃머리에 배치하여, 호수와 일몰이 바라다 보이는 전망을 즐길 수 있게 했다. 호수 위를 항해하는 배 느낌이 들어서, 이 집에 건축주가 “숲속의 배”라는 별명을 붙였다고 한다. 도로 쪽에서 보이는 특이한 집 모양 때문에 지나가는 사람들의 호기심을 자극하여 조용한 동네에 활기를 불어넣는 건물이 되었다.
Openings 1층 도로 측의 대형 창에 삼나무 판재를 성기게 설치하여 파사드에 반투명 효과를 주는 동시에 거주자의 사생활이 보호되도록 했다. 슬라이드 방식의 패널을 밀어서 도로를 향한 파사드를 열거나 닫을 수 있다. 슬라이딩 패널을 열어 두면, 호수가 바라다 보이는 거실 쪽 테라스가 가려진다. 그리고 거실의 호수 쪽에 창을 광폭으로 설치하여 툭 트인 호수 풍경을 즐길 수 있게 했다.
The Big Roof 내부가 과열되는 것을 방지할 뿐만 아니라 비를 피할 수 있는 널찍한 테라스가 형성되도록, 페인트칠이 된 가는 강 기둥으로 지지된 대형 흰색 지붕을, 전면, 측면, 그리고 후면으로 연장하여 처마를 이루게 했다. 옥상의 일부를 녹화하고, 마스터 침실 앞에는 호수 풍경을 감상할 수 있는 테라스를 설치하기도 했다.
Cottage Life 저녁이면 야외의 모닥불을 대신하는 벽난로 주위에 모여 시간을 보낼 수 있는 데다, 미니멀한 디자인과 공간 구성, 외부로의 개방성, 콘크리트 거실 바닥 등으로 전형적인 별장 생활을 경험할 수 있는 집이 되었다.
HOUSES • OKA, CANADA
Architects: Paul Bernier Architecte
Year: 2021
Photographs: Raphaël Thibodeau
Structural engineer: Calculatec, Alain Mousseau
Architecture Team: Paul Bernier, Anick Thibeault, Alexandre Bernier, Francis Martel-Labrecque
Maison à Oka by Paul Bernier Architecte
























