
Architects : Architectural Bureau G.Natkevicius & Partners
Location : Seinų g. Žaliakalnis, Kaunas, Lithuania
Area : 318 M2
Year : 2013-2016
FOTOGRAFAS: L.MYKOLAITIS, L.GARBAČAUSKAS

리투아니아 제2의 도시 커우너스Kaunas, 그중에서도 잘리아칼니스Žaliakalnis 지구에 위치한 현대식 주택이다. 이 지역은, 네만강과 빌리야강이 합류하는 지점(두물머리)의 언덕 위에 위치하여 매력적인 풍광을 자랑하는 곳이다.
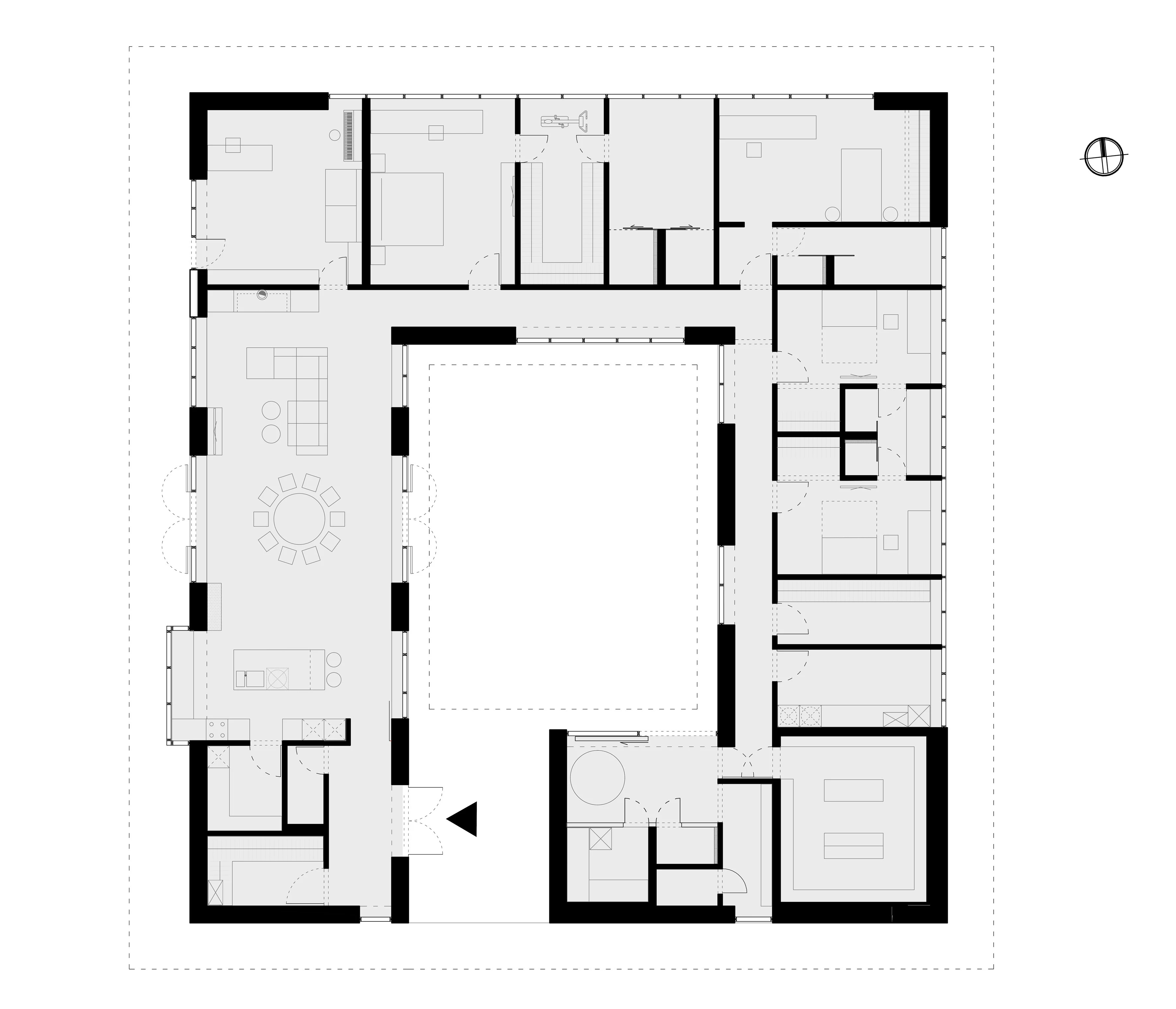
주변의 일반적인 집들과 달리 이 집은, 진입로는 좁지만 매우 큰 대지에 지어졌다. 블록 가운데에 위치하여, 사방이 이웃집들로 에워싸인 흥미로운 대지이다.


블록 내의 이웃집들이 모두 도로를 향해있기 때문에, 블록 중앙에 있는 이 대지에서는 다른 집들의 뒷모습만 보인다. 하지만 한 가지 긍정적인 측면도 있다. 낭만적인 전원 풍경을 옮겨놓은 듯한, 이웃집들의 뒷마당이 보인다는 것이다. 그래서 모든 공간이 사방을 향하도록 평면을 계획하고 입면도 전후좌우 구분 없이 디자인을 했다고 한다. 그중에서도 가장 좋은 풍경을 향해, 거실, 주방, 식당 등 공용 공간이 배치되었고, 복도 끝 맨 안쪽에 사우나가 위치한다.

세 자녀가 방문해서 편하게 머물 공간이 있어야 했기 때문에, 집을 크게 짓게 되었다고 한다. “건축주 가족이 서로 사랑한 만큼 계속해서 그 유대가 유지되기를 바랐고, 손자들을 데리고 온 자녀들이 호텔 신세를 지지 않고 떠날 때까지 집에 머물다가 가기를 원했습니다.” 설계팀의 설명이다.

종잇장 하나를 올려놓은 것처럼 가운데로 갈수록 낮아지게 지붕을 디자인하여, 네 귀가 들렸다. 건물 자체에 의해 이웃으로부터 가려진 중정은, 채광과 환기 통로이자 온전히 내밀한 오아시스 같은 외부 휴식 공간이다.

건축주가 가장 유명한 샴페인 전문가 중 한 사람이라서, 이 집에는 와인과 샴페인을 저장하기에 알맞은 온도와 습도를 유지할 수 있게 설계된 대형 와인 저장고가 갖추어지기도 했다.

“중정 주위를 도는 동선으로, 중정 하나를 가족 모두가 함께 공유하는 느낌이 들게 만들었습니다.” 설계팀의 설명이다. “그리고 거실, 자녀 방, 와인셀러, 사우나 등 모든 공간들을 복도(저녁에는 특별한 조명을 켜고, 낮에는 중정을 통해 채광이 이루어지며, 수집품들을 전시하고, 조경이 잘 된 중정 풍경을 즐길 수 있는)를 따라 배치했습니다.

















'House' 카테고리의 다른 글
| 프라이버시와 통풍을 동시에 고려한 도시주택, City House by Kropka Studio + Klub architekci (0) | 2023.02.13 |
|---|---|
| House Design | 옥탑방 딸린 두 가구용 주거 건물, Lanterne Gilford by Salem Architecture (1) | 2023.02.10 |
| Passive House | 브라우니 카메라 컨셉의 찐 패시브 하우스 Haus on the Ridge by TP Bennett (0) | 2023.02.03 |
| Camera House by Leckie Studio (0) | 2023.02.01 |
| 목조 별장 Forest Retreat CT by Scalar Architecture (0) | 2023.01.03 |