
캐나다 몬트리올, 그중에서도 유서 깊은 동네인 플라토Plateau에 위치한 세 채의 1910년 건물 중 하나를 철거한 다음, 두 가구 주택으로 재건축하기 위한 설계 안이다. 기존의 세 건물은 일관성 있게 통일된 건축 어휘를 가지고 있다.
“설계 목표는, 이웃과의 응집력을 강화하면서 통일성을 향상시키는 것입니다.” 설계팀의 설명이다. “많은 연구 끝에 기존의 통일성을 해치지 않는 동시에 현대적 물성을 부여하기 위해 점토 벽돌을 외장재로 선택했습니다.”
같은 맥락에서, 새로 지을 건물이 지상 3층 규모이기는 하지만, 기존의 2층 건물들과의 조화가 깨지지 않도록 3층을 옥탑 형태로 디자인을 했다. 3층 규모로 증축을 하면서도 기존 건물들과의 통일성은 유지될 수 있게 한 것.
3층은, 메인 파사드보다 뒤쪽으로 후퇴시켜서 인접한 이웃집과 나란하게 정렬된다. 채광과 환기가 잘 이루어지도록 계획된 3층은, 기존의 건축 어휘를 손상시키지 않도록 2층 건물 위에 놓인 하나의 독립된 오브제처럼 디자인되었다.
3층은, 프라이버시 확보, 열 획득 제어, 몽로얄 산 조망, 아래층들과의 차별화 등을 위해, 흰색 타공 강판으로 마감된다. 또 평지붕 일부를 삼각화했는데, 이는 이웃의 일조권 확보를 위한 사선 제한에 따른 것이라고 한다. 이를 통해 밋밋하지 않은 건물이 될 듯.
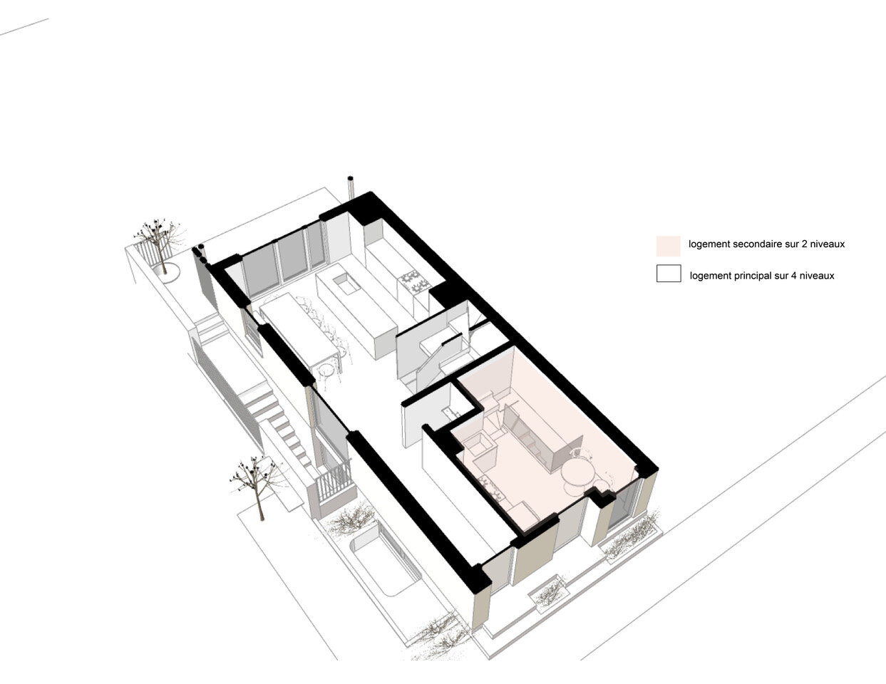
바로 이웃한 건물을 고려하는 것 외에도, 발코니나 마당이 근접해 있는 밀집한 동네 전체의 맥락도 감안되었다. 면적은, 기존 건물과 정확히 동일하다고 한다. 전면 도로와 뒷골목을 연결하는 공용 통로 측의 파사드가 이전보다 생동감 있게 바뀐다. 난간을 따라 화분을 놓을 예정이다. 이곳은 원래 주차장이다.
“시간이 지남에 따라 서서히 난간 위로 식물이 자라서 살아있는 스크린으로 변모할 것입니다.” 설계팀의 설명이다. “이곳에는 또, 공동체 정신을 고양할 목적으로 콘크리트 담장에 벤치를 붙박이로 설치하여 동네 주민들이 앉아 쉴 수 있게 할 계획입니다. 통일성 강화를 통해 공동체 정신의 재활성화에 일조하기를 기대합니다.”
옥탑방의 장점은, 높게 위치하여 전망이 좋다는 것과 공중 마당이 존재한다는 것으로 요약할 수 있을 것이다. 그런 옥탑층을 디자인하는 데 참고하면 좋을 설계 사례인 듯.
Architects : Salem Architecture
Location : Montreal, Canada
Lanterne Gilford by Salem Architecture
















