반응형

창문 하나 없이 꽉 막힌 것처럼 보이는 비대칭 박공지붕을 특징으로 한 전면 파사드를 가진 주택이다. 안으로 들어가면 전면 파사드와 대비되는 집의 구조가 드러난다.
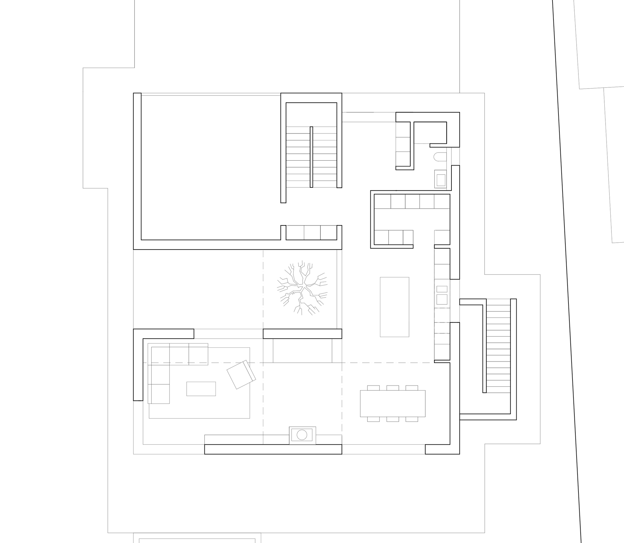
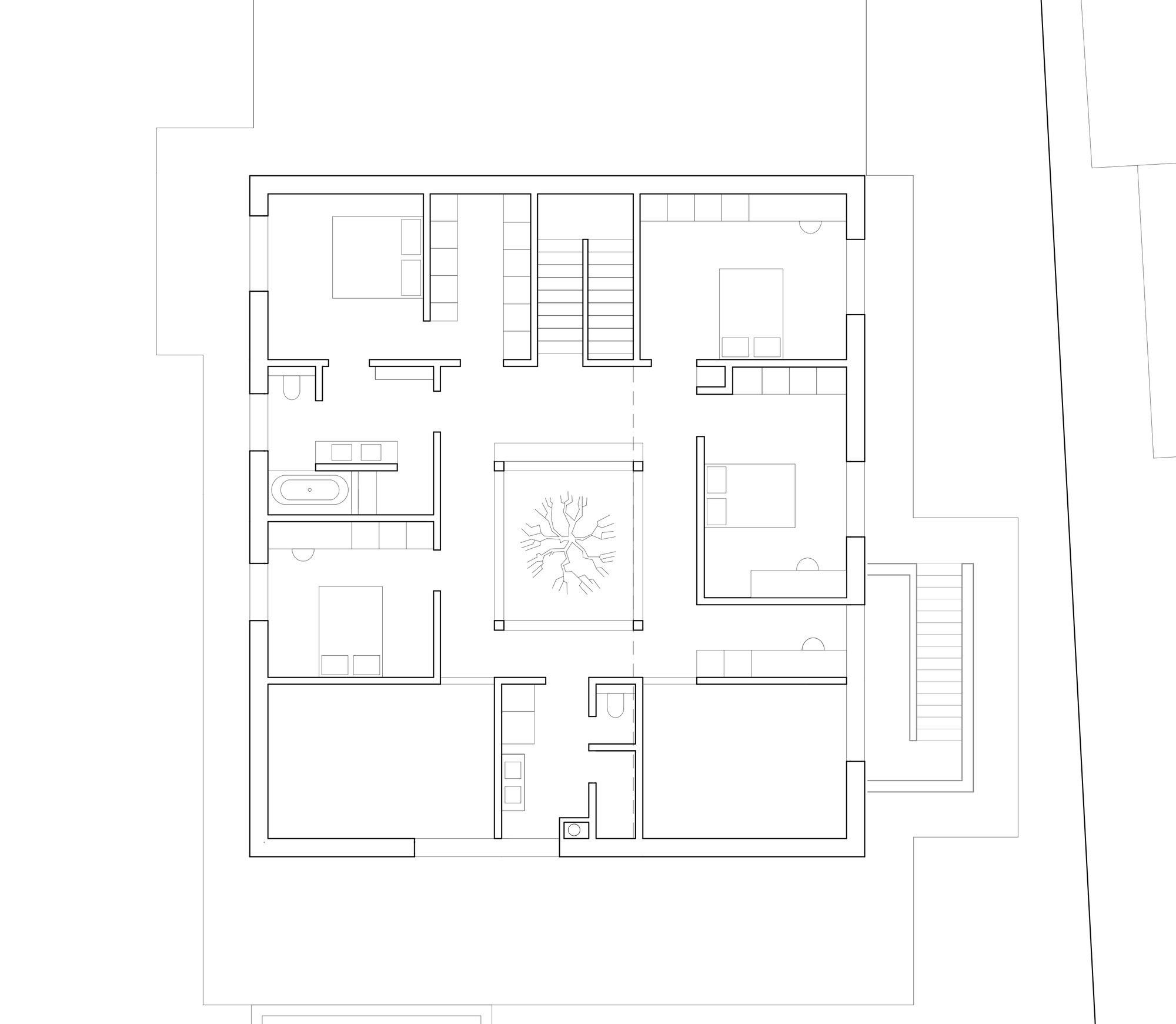
가정생활에 초점을 맞춘 내향성 구조의 건물 중심에 조경된 안뜰이 위치한다. 이 중정은, 명확한 공간적 위계를 형성하는 동시에, 풍경과 건축이 결합된 하늘과 땅의 단면을 프레임화한다. 그리고 안뜰과 두 군데의 보이드로 집 내부를 리드미컬하게 분할하여, 다양한 시각적 관계를 형성했다.
1층에는, 주방, 식당, 거실 등이 중정을 중심으로 모인 구조로 배치되었다. 최적의 위치와 크기로 창을 설치하여, 식당에는 아침 햇살이, 거실에는 석양 햇살이 들게 했다. 위층에는, 침실과 게스트 공간들이 순환 복도로 연결되었다. 중정 주위로 난 유리창을 통해, 연중 다른 모습이 연출되는 단풍나무 풍경이 내려다 보인다.
HOUSES • SWITZERLAND
Architects : Urben Seyboth Architekten
Year : 2021
Photographs : Kuster Frey
1904 Meisenweg by Urben Seyboth Architekten



















반응형
'House' 카테고리의 다른 글
| L-자 평면의 박공 전원주택, Gray House by RS+ Robert Skitek (1) | 2023.03.23 |
|---|---|
| 질박한 아름다움을 지닌 전원주택, Little Granite House by BRD Studio (1) | 2023.03.22 |
| 재생에너지와 빗물을 이용하도록 설계된 상가 주택, People Tree House by Archiopteryx (0) | 2023.03.20 |
| 생물 기후학적 설계로 지속 가능한 쾌적성을 실현한 단독주택, MV024 Residence by CV ARCHITECTS + ASSOCIATES (0) | 2023.03.17 |
| 날개 모양 평면 주택, Vineyard Road Residence by Nick Noyes Architecture (0) | 2023.03.15 |