
이 주택 디자인의 핵심 콘셉트는, 구조 자체의 형태를 이용하여 집 안은 물론 마당에도 미기후가 형성되도록 만드는 생물 기후학적 디자인을 개발하는 것이다. 이를 달성하기 위해 건축가는 우선 현지 기후와 환경, 그리고 대지의 방향, 지형, 기온, 바람, 습도와 같은 주어진 조건을 조사하고 분석했다.
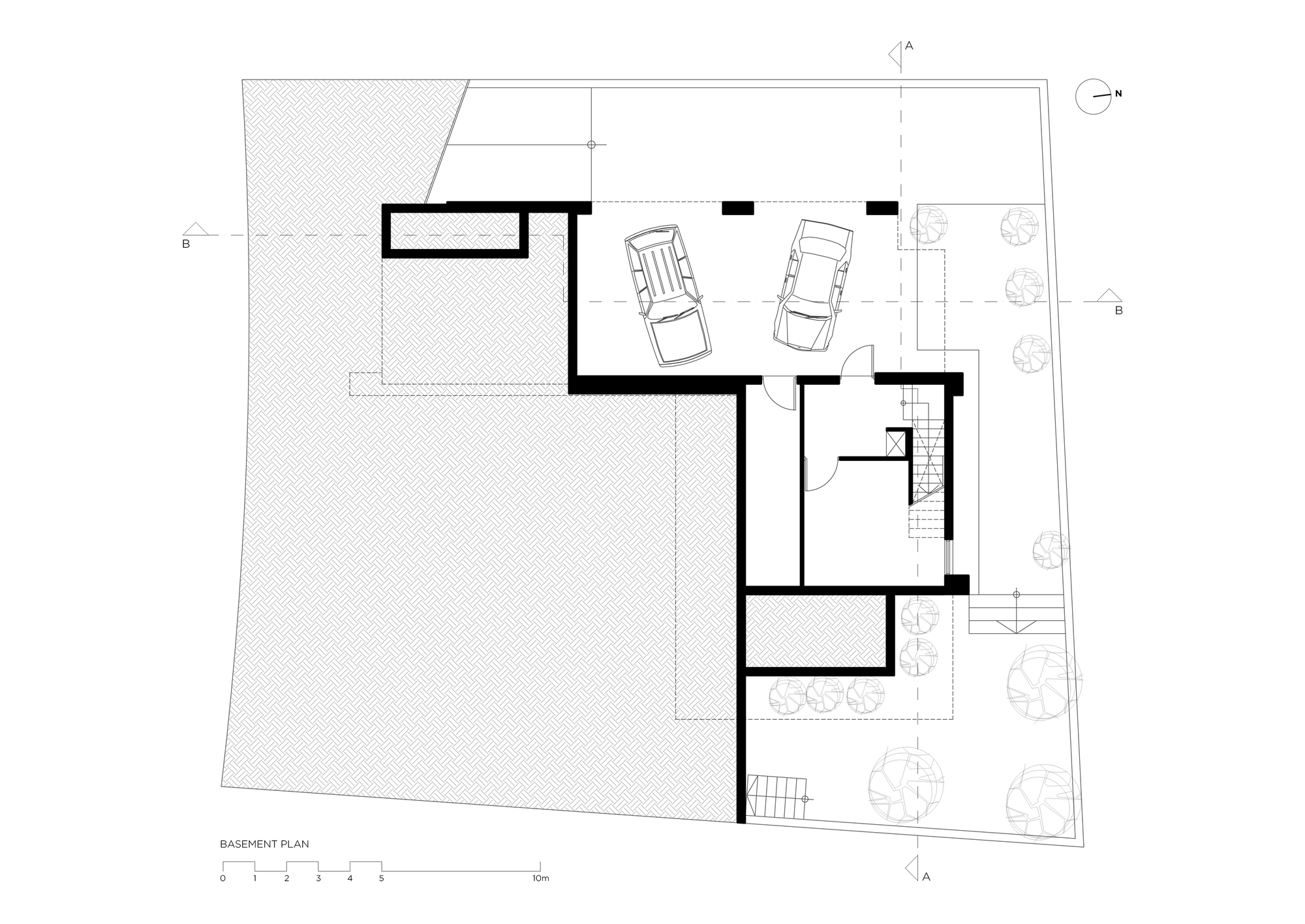
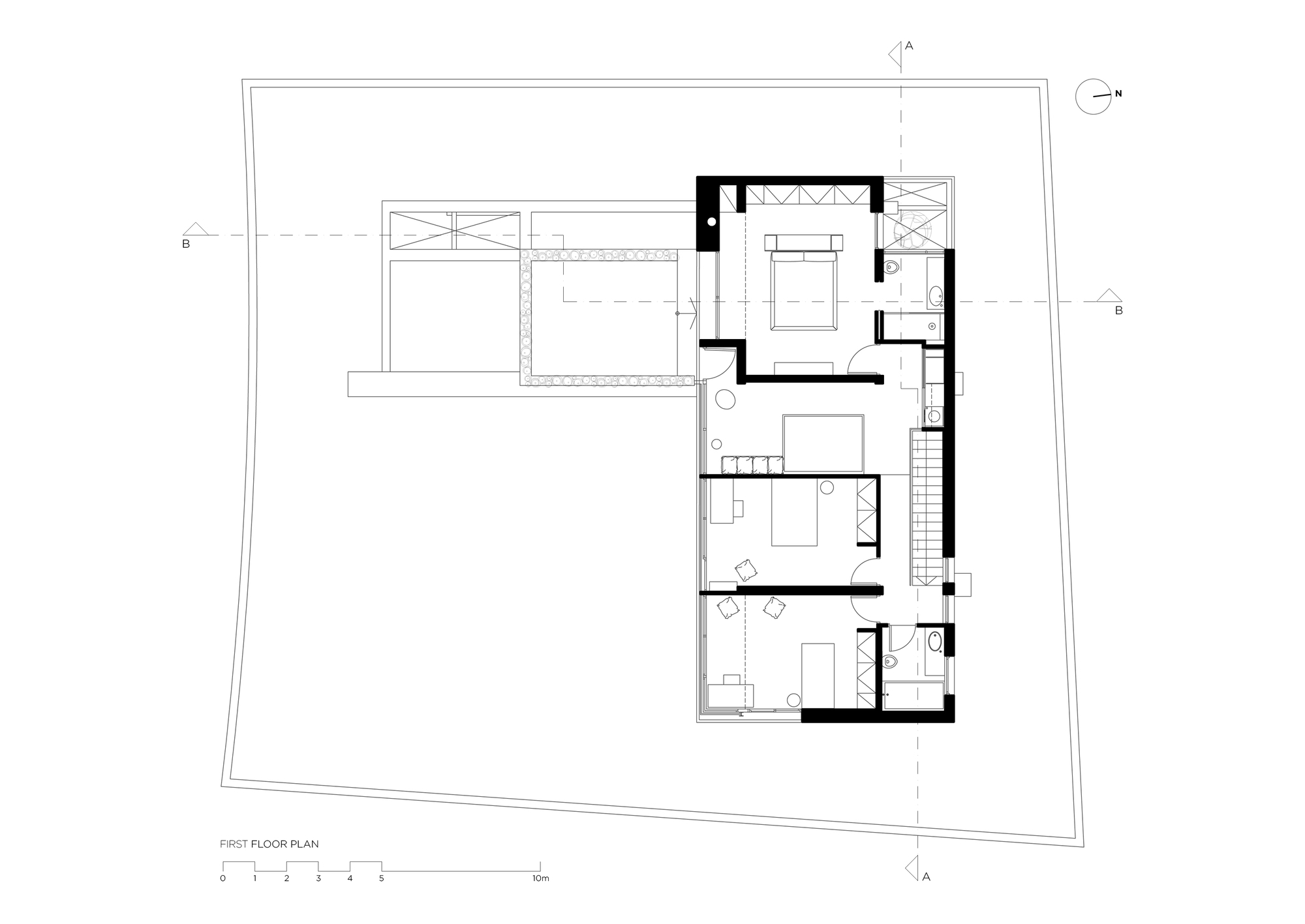
기하학적 조성과 서로 다른 공간의 배치에 영향을 미친 두 가지 주요 요소는, 지역의 우세풍(강한 북풍과 서풍)과 2미터 고도차가 나는 기존의 지형이었다. 먼저, 고도차를 이용해 지하층을 개발하여 부속 공간들을 배치했다. 강풍으로부터 보호되도록 북측과 서측 입면에는 개구부를 최소화했다. 반대로 공용 공간을 남쪽과 동쪽을 향하도록 계획하여 채광 환경 향상과 겨울철 일조량 증대를 보장했다.
1층을, 캔틸레버 구조의 2층을 지지하는 기초 역할을 하도록 만들고자 했다. 이는, 주방 수납장 등을 포함하는 석재 마감의 두꺼운 벽체들을 통해 해결했다. 그중 가운데 석벽을 추가로 3미터 연장하여, 거실의 프라이버시를 확보하는 동시에 서풍으로부터 안마당이 보호되도록 했다.
2층은, 차광용 개폐식 덧창이 설치된 깔끔한 흰색 볼륨으로 이루어졌다. 수동 개폐식의 이 덧창으로 일사량을 조절함으로써 채광과 열 이득을 제어한다. 강풍을 고려해 창의 크기와 개수를 제한한 반면, 북서 측 코너에 환기용 창들을 설치하여 맞통풍 구조로 만들었다.
2층 놀이 공간과 1층 주방 사이를 연결하는 것이 필수 조건이 되었다. 그래서 주방 천장이자 놀이 공간 바닥의 일부를 텄다. 여기에 그물을 설치하여, 가족이 일상적으로 사용하는 두 공간 사이를 유쾌한 분위기로 연출했다.
모든 공간을 지속 가능한 방식으로 사용할 수 있는 4인 가족의 집으로, 여기에는 야외에서 많은 시간을 보내면서 햇볕을 즐기는 키프로스식 라이프스타일이 가능하도록 만드는 것도 포함되었다. 종합하자면, 주어진 자연 환경을 존중하고, 해당 지역의 기후 맥락을 최대한 활용한 생물 기후학적 설계를 통해, 지속 가능한 생활을 영위할 수 있도록 개발한 키프로스의 주택이다.
HOUSES • LIMASSOL, CYPRUS
Architects : CV ARCHITECTS + ASSOCIATES
Area : 310 m²
Year : 2020
Photographs : Creative Photo Room by Maria Efthymiou
Manufacturers : Rabel Aluminium Systems, ALUMINCO, CARPETU2, CHRISTOFIS SHIALI & SON LTD, Cielo, DALIKO, E & G PAROUSIASI DECORATION LTD, Knauf, MAVROMICHALES WOOD WORKS AND DESIGN LTD, MEISTER, MIRAGE, NOVA LUCE, Noken, PIAZETTA, Zucchetti.Kos
Lead Architects : Vasiliki Constantinou
Contractors : P.Chrysanthou Buildia Con Ltd
Structure Engineers : Advanced Structural Design Sotiriou
MV024 Residence by CV ARCHITECTS + ASSOCIATES



































'House' 카테고리의 다른 글
| 중정과 보이드로 공간감을 극대화한 내향성 주택, Villa Meisenweg by Urben Seyboth Architekten (1) | 2023.03.21 |
|---|---|
| 재생에너지와 빗물을 이용하도록 설계된 상가 주택, People Tree House by Archiopteryx (0) | 2023.03.20 |
| 날개 모양 평면 주택, Vineyard Road Residence by Nick Noyes Architecture (0) | 2023.03.15 |
| 반 외부 공간으로 쓸모를 배가한 오지 숙소, Casa Bayo by Set.ideas (0) | 2023.03.08 |
| 스페인 칸타브리아의 산골 숙소, Villa Slow by Laura Alvarez Architecture (1) | 2023.03.06 |