반응형

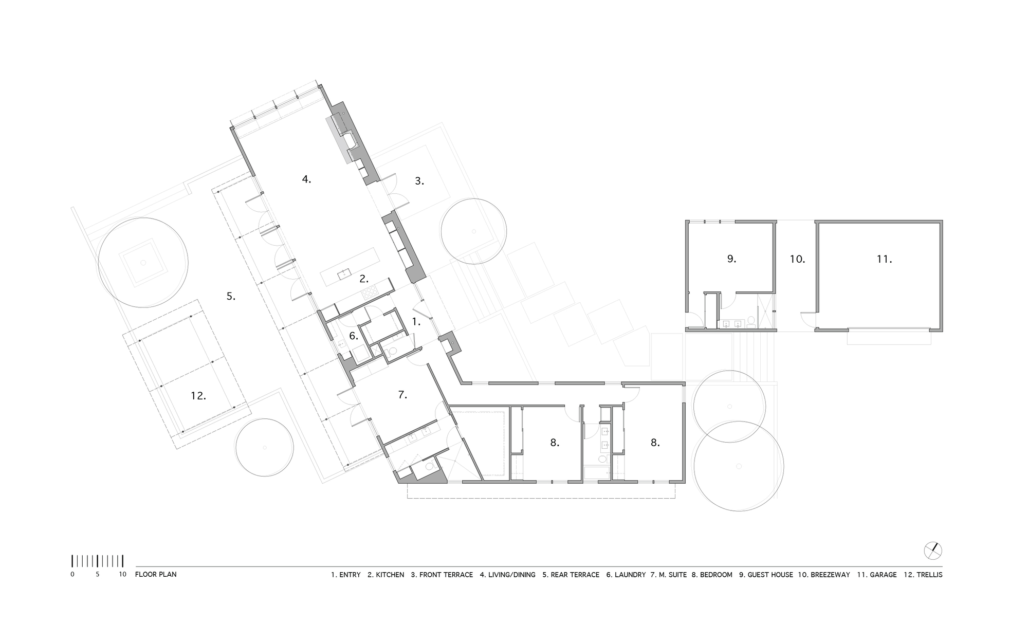
경사진 지형을 활용하고 비교적 특색이 없는 대지를 의미 있는 ‘장소’로 만들기 위해, 중앙 정원 공간이 형성되도록 두 개의 날개 모양으로 본채의 평면을 계획한 주택이다.
여기에, 뜨거운 고고도 여름 태양으로부터 집을 보호하고 저고도의 겨울 햇볕은 생활공간 깊숙이 유입되도록, 퍼걸러와 아케이드가 설치되었다.
RESIDENTIAL ARCHITECTURE • UNITED STATES
Architects : Nick Noyes Architecture
Area : 3490 ft²
Year : 2018
Photographs : Cesar Rubio
Manufacturers : Crittall Windows, James Hardie, Kolbe & Kolbe Milwork, Milgard
Principal Architect : Nick Noyes
Senior Associate : Michael Perkins
Contractor : Tim Agapoff Construction, Tim Agapoff -Tim Agapoff Construction
Structural : Duncan Engineering Inc, Dave Duncan - Duncan Engineering Inc
Program / Use / Building Function : Single Family Residence
Vineyard Road Residence by Nick Noyes Architecture



















반응형
'House' 카테고리의 다른 글
| 재생에너지와 빗물을 이용하도록 설계된 상가 주택, People Tree House by Archiopteryx (0) | 2023.03.20 |
|---|---|
| 생물 기후학적 설계로 지속 가능한 쾌적성을 실현한 단독주택, MV024 Residence by CV ARCHITECTS + ASSOCIATES (0) | 2023.03.17 |
| 반 외부 공간으로 쓸모를 배가한 오지 숙소, Casa Bayo by Set.ideas (0) | 2023.03.08 |
| 스페인 칸타브리아의 산골 숙소, Villa Slow by Laura Alvarez Architecture (1) | 2023.03.06 |
| 파티오 중심의 ㄱ-자 평면 주택, Chouso House by Bruno Dias Arquitectura (0) | 2023.03.02 |