
“코로나19 팬데믹으로 인해 재택근무 비중이 늘어나면서 수도인 산티아고와 같은 대도시에서 더 나은 삶을 위해 남쪽으로 이주하는 사람들이 많아졌습니다.” 설계팀의 설명이다. “좋든 나쁘든 가장 많이 선택하는 도시 중 하나는 양키우에Llanquihue 주의 푸에르토바라스Puerto Varas입니다.”
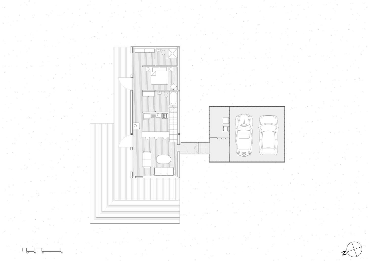
전통적인 창고형 주택을 재해석한 약 120평방미터(약 36평) 규모의 주택이다. 지붕마루가 집의 종방향 벽체와 평행하지 않고, 북측 모서리 중 하나와 남측의 반대쪽 모서리를 잇는 대각선 방향으로 놓이도록 디자인되었다.
Architecture firm: Estudio Diagonal Architects
Location: Puerto Varas, Región de Los Lagos, Chile
Photography: Nicolás Saieh
Principal architect: Sebastián Armijo Oyarzún
Design team: Sebastián Armijo Oyarzún
Interior design: Estudio Diagonal Architects
Built area: 120 m²
Site area: 5000 m²
Design year: 2020
Completion year: 2022
Structural engineer: Cristóbal Berríos R.
Environmental & MEP:
Supervision: Estudio Diagonal Architects
Construction: Taller Jorquera
Material: Wood, Glass, Steel
Ridge House by Estudio Diagonal Architects





















'House' 카테고리의 다른 글
| 교량 구조로 지은 경사지 주택, Cañada House by Escobedo Soliz (0) | 2023.03.31 |
|---|---|
| 미니멀 디자인의 글라스 하우스, Casa Annunziata by Specht Architects (0) | 2023.03.30 |
| 주인공은 따로! 풍경 속 조연이 된 트리 하우스, Columba Tree House by Madeiguincho (0) | 2023.03.24 |
| L-자 평면의 박공 전원주택, Gray House by RS+ Robert Skitek (1) | 2023.03.23 |
| 질박한 아름다움을 지닌 전원주택, Little Granite House by BRD Studio (1) | 2023.03.22 |