반응형

교량 구조로 지은 경사지 주택
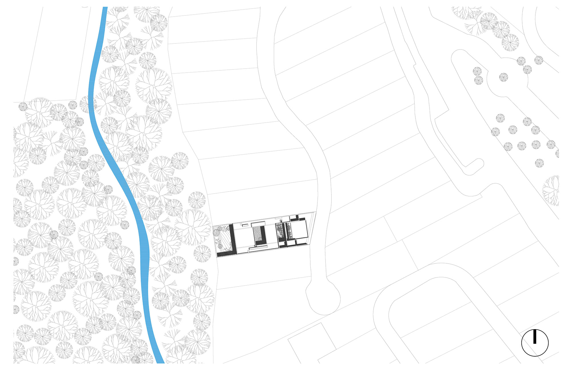
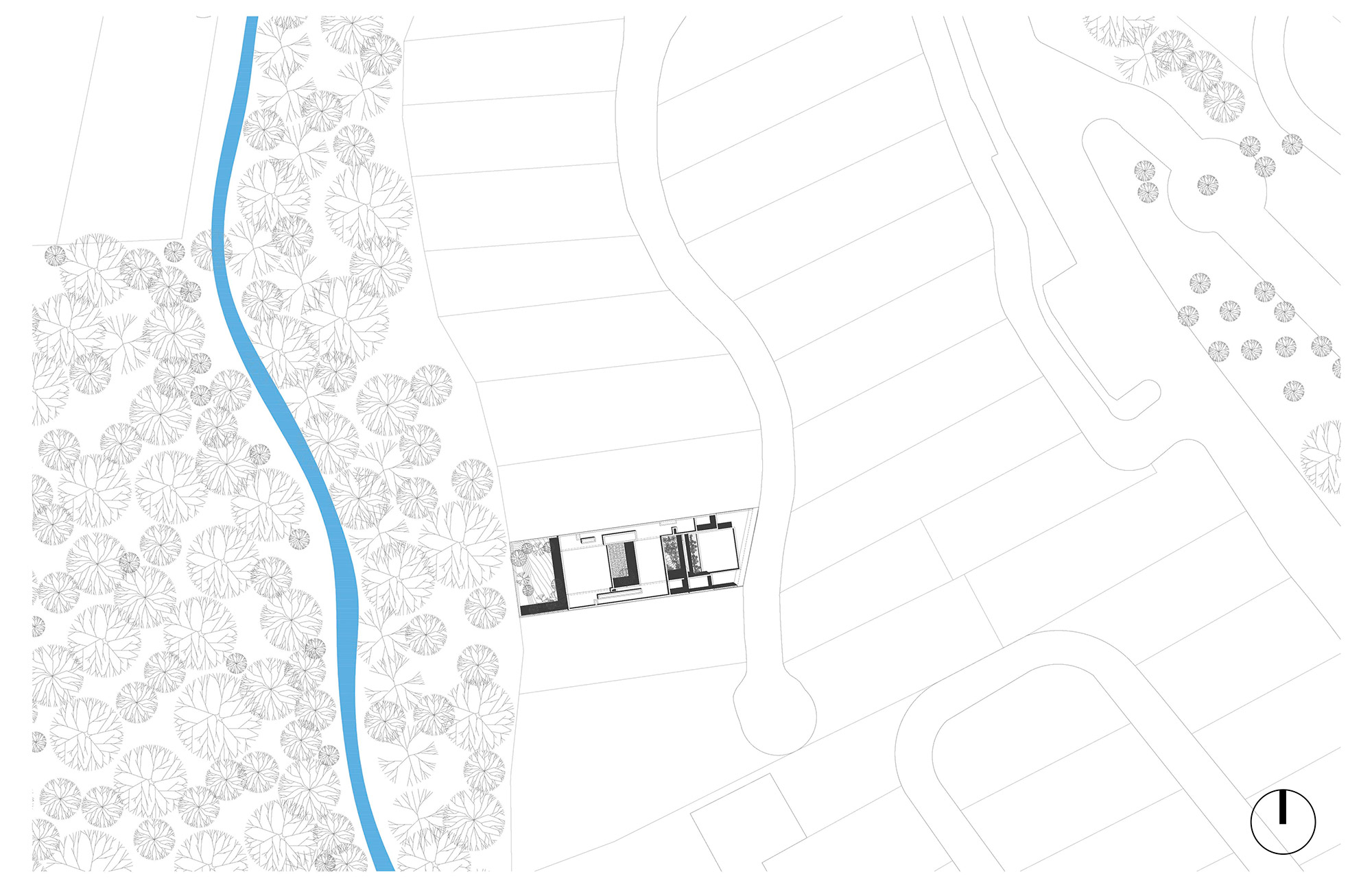
길이에 비해 폭이 좁고 급하게 비탈진 대지에 지은 주택이다. 대지 앞에는 계곡과 강의 일부를 포함한 자연 보호 구역이 위치한다.
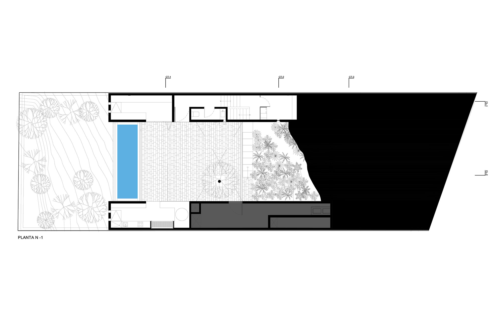
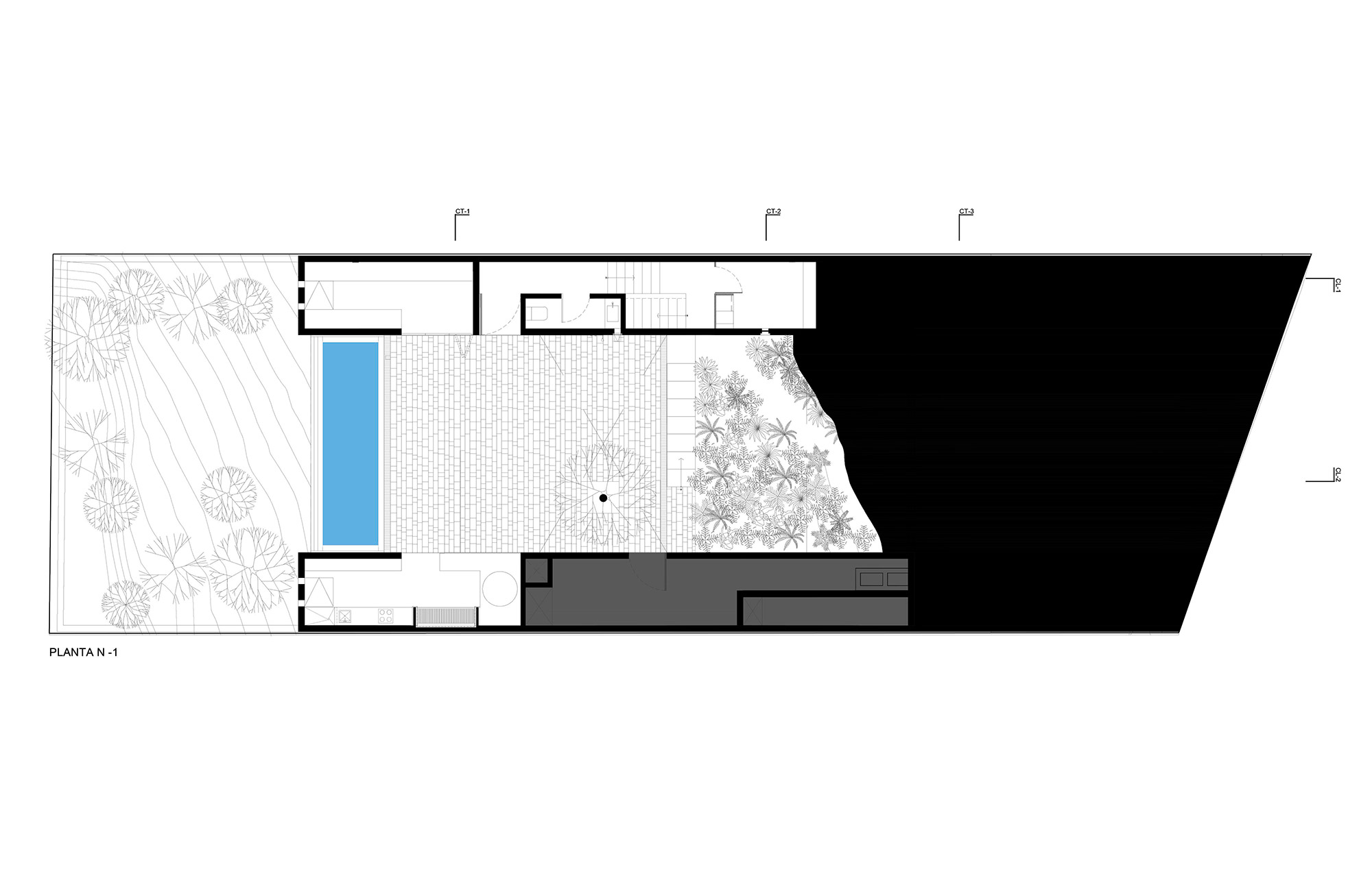
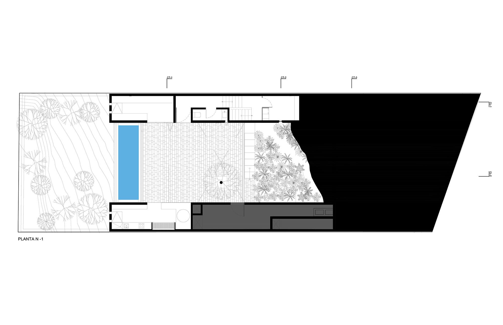
대지의 자연 경사를 따라 하향식으로 건물을 지었기 때문에, 거리 쪽으로는 인도 위로 1개 층만 올라와 있고, 나머지 2개 층은 아래로 내려가 있다. 인도 위로 올라와 있는 2층에는, 욕실과 드레스 룸이 딸린 침실들과 TV 룸이 들어있다.
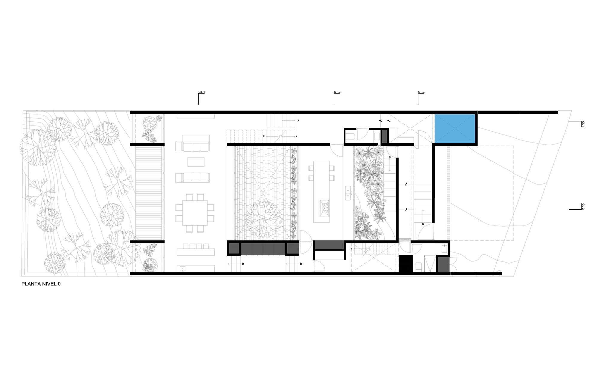
그리고 거실 등 공용 공간과 별도의 주방이 있는 바로 아래층이 1층이다. 다시 거실 아래에는, 야외 주방과 지붕 있는 수영장이 딸린 중앙 파티오가 자리한다.
대지의 길이 방향 양 측면을 따라 놓인 서비스 및 계단실만 교각처럼 지면에 접해 있다. 양 측면의 이 두 블록 위를 가로질러 흰색 볼륨을 얹어서, 그 아래로 막힘없이 계곡이 지나가는 동시에 프라이버시가 보호되도록 교량 구조로 지은 멕시코 주택이다.
Architects : Escobedo Soliz
Ubicación : Naucalpan, México
Year : 2019 - 2023
photos : © ariadna polo
Casa de la Cañada by Escobedo Soliz

























반응형