
새집? 미니멀 디자인의 별채형 주거
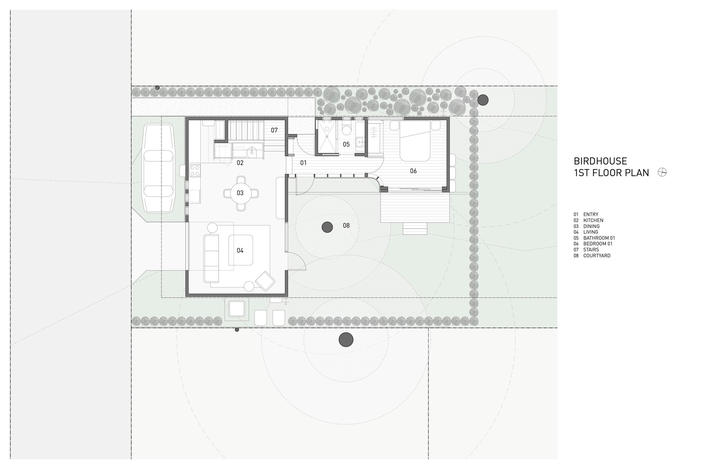
새집의 둥근 입구를 연상시키는 맞춤형 원형 피벗 창과 골강판 외장을 특징으로 설계하여, 텍사스주 이스트 오스틴, 그중에서도 체스넛Chestnut 지역에 지은, 별채 형식의 주거 건물(ADU)이다. 이 건물은, 1939년 건축된 단층 주택과 3그루의 대형 피칸 나무가 있는 5,900평방미터(약 166평) 면적의 부지에, 900평방피트(약 25평) 규모로 지어졌다.
“극도로 미니멀하게 디자인한, 침실 2개, 욕실 2개짜리 집입니다.” 설계를 한 North Arrow Studio의 수석 건축가인 Francisco Arredondo의 설명이다. “바닥면적, 매스, 재료의 색상 등이 모두 미니멀하지만, 스마트한 집이기도 합니다.”
이 집은, 본채와의 사이에 안뜰이 형성되도록 ㄱ-자 형태로 평면이 계획된 동시에 기존의 나무를 피해서 배치되었다. 피칸 나무 한 그루를 감싼 ㄱ-자형 평면의 1층에는, 침실, 욕실, 주방, 그리고 롤-업 방식의 차고 문 딸린 거실이 배치되었다.
위층의 마스터 침실에는, 교차 박공 형태의 지붕구조가 드러나 있다. 이 2층에는, 직경 1.5m 크기의 원형 창 4개가 각 박공 아래에 하나씩 위치한다. 이 둥근 창 디자인 컨셉은, 미니 원형 창 등을 통해 집 전체에 적용되었다.
“인테리어 마감은, 각 공간에 생명을 불어넣는 몇 개의 포인트 벽을 제외하고는 단순, 절제되었습니다.” 건축가의 설명이다. “그리고 지붕을 포함한 외부는 지속 가능성을 고려하여 밝은 색 골강판으로 마감을 했습니다.”
Architects: North Arrow Studio
Location: Austin, TX. USA
Year Completed: 2022
Builder, developer, owner: Brita Wallace, Digs ATX
Styling: Ben Newman Studios
Photography: Chase Daniel
Birdhouse by North Arrow Studio












'House' 카테고리의 다른 글
| 도시형 독채 숙소, Villa Cava by Espacio 18 Arquitectura (0) | 2023.04.19 |
|---|---|
| 경사진 삼각형 땅에 최적화한 단독주택, CLRO2497 by LOKOMOTIV.archs office LKMV (0) | 2023.04.18 |
| 심플하면서도 기능적인 오두막, House JG by Mariano Ravenna (0) | 2023.04.13 |
| 어느 것이 창? 액자창에 풍경 담은 건축가의 집, Highgrove House (0) | 2023.04.12 |
| 불규칙 지형에 최적화한 개성 만점 주택, TOMM House by mauricio Alonso. m arquitecturA (0) | 2023.04.11 |