
어느 것이 창? 액자창에 풍경 담은 건축가의 집
캘리포니아 남부에 방치되어 있었던 1990년대 주택을 리노베이션한 사례이다. 스튜디오 LOHA의 설립자인 건축가 로칸 오헐리히Lorcan O'Herlihy와 그의 아내 코넬리아Cornelia가 말리부 언덕의 나무들 사이에 위치한 구옥을 2010년에 구입을 한 집이다. 구입 당시에도, 1998년에 지어진 구옥이 구조적으로는 문제가 없었지만 내부와 외부 모두 수리를 해야 할 정도로 파손된 상태였다고 한다.
수년에 걸쳐 부부는, 보수를 바라지 않고 좋아서 하는 ‘사랑의 수고’를 통해, 2층짜리 이 집을 조금씩 수리를 했다. 그 작업에는, 주방 리모델링, 새 데크, 원목 바닥 복원 등이 포함되었다. 2020년 들어서 부부가 대대적인 수리를 시작하면서 ‘창의성을 유발하는’ 집으로 만들기로 했다. 조경을 새로 하고 원래 건물 요소들은 유지되었다.
“기존 구조를 그대로 유지하는 것을 중요하게 다룬 프로젝트입니다. 건축으로 인한 생태발자국을 늘리지 않기 위해서입니다.” O'Herlihy의 설명이다. “아래층에 작은 방을 새로 만들기는 했지만 면적은 그대로 유지했고, 재료는 풍경과 어울리는 동시에 현대적이면서도 유행을 타지 않는 것들로 선택을 했습니다.”
기존의 섬유 시멘트 사이딩을 그대로 두고 회색 목재 레인 스크린으로 덮었다. 태양열 획득을 완화하는 이 레인 스크린은, 외관상 선명하고 직선적인 형태를 강조하는 데 이용되기도 했다. 일부에서는 이 스크린이 외벽에서 18인치(46cm) 떨어져 설치되기도 했다. 두꺼워진 두께 덕분에 깊은 창을 만듦으로써, 태양열 획득을 줄이는 동시에 외관에 예술적 감각을 더할 수 있게 된 것.
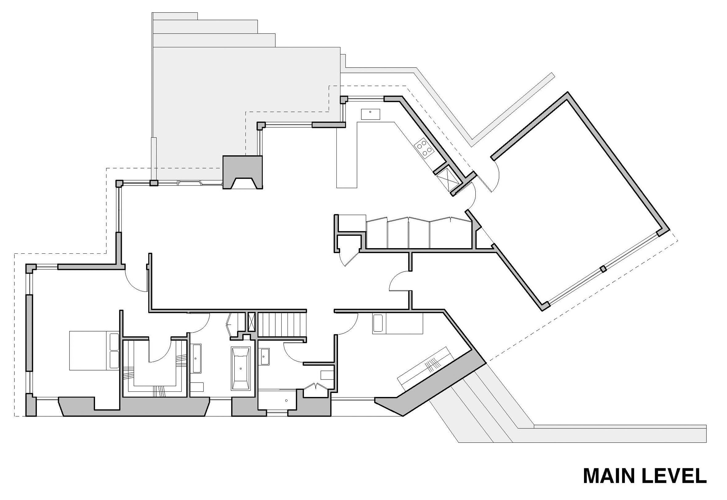
일부 창을 액자 창으로 교체하여 탁 트인 전망을 그림처럼 즐길 수 있게 했다. 미닫이 유리문을 통해, 휴식을 취하고 풍경을 감상하기 좋은 L자형 테라스와 거실이 연결되었다.
2,500평방피트(약 70평) 면적 내에서 구조가 약간 변경되었다. 위층에 침실 두 개와 공용 공간들이 배치되었고, 아래층에는 두 개의 침실이 들어 있다. 거실을 더 넓게 만들기 위해 계단을 재배치하기도 했다.
내부는, 오크 바닥과 페인트칠을 한 석고보드로 마감되었다. 주방에는, 맞춤형 핀란드산 자작나무 합판 수납장과 시저스톤사의 쿼츠 상판 조리대가 설치되었다. 그리고 미스 반 데어 로에와 르코르뷔지에가 디자인한 의자를 포함하여 현대적인 가구들이 사용되었다.
건축주이자 설계자인 오헐리히는, 아일랜드 태생의 배우인 아버지와 함께 이곳 말리부에서 자랐다고 한다. 그의 아버지는 오스카상 후보에 올랐던 배우 댄 오헐리히Dan O'Herlihy이다.
Architects : Lorcan O'Herlihy Architects
Location : Malibu, California, USA
Area : 2,500 ft2
Year : 2020
The photography is by Here and Now Agency (HANA)
Highgrove House by Lorcan O'Herlihy Architects











'House' 카테고리의 다른 글
| 새집? 미니멀 디자인의 별채형 주거, Birdhouse by North Arrow Studio (0) | 2023.04.14 |
|---|---|
| 심플하면서도 기능적인 오두막, House JG by Mariano Ravenna (0) | 2023.04.13 |
| 불규칙 지형에 최적화한 개성 만점 주택, TOMM House by mauricio Alonso. m arquitecturA (0) | 2023.04.11 |
| 코어형 중정 주택, The Core Court House by TRAANSPACE (0) | 2023.04.10 |
| 밝고 생기 있게 리노베이션한 100년 가옥, Playter Estates Reinvention by ASQUITH Architecture (0) | 2023.04.07 |