
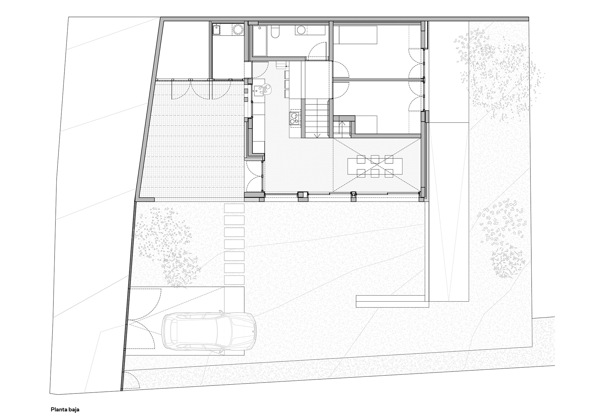
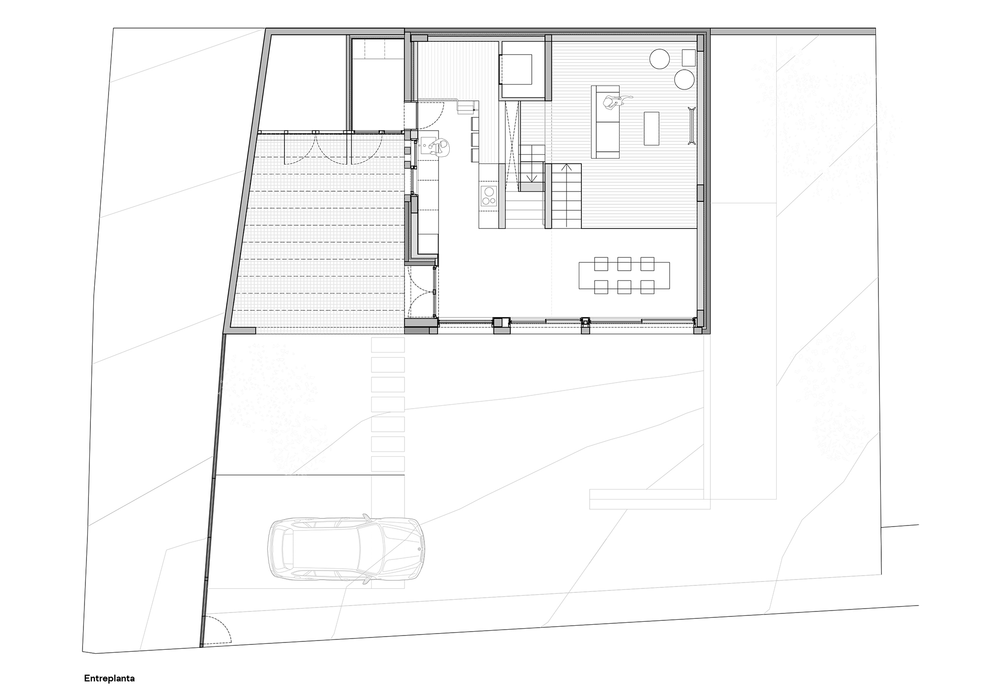
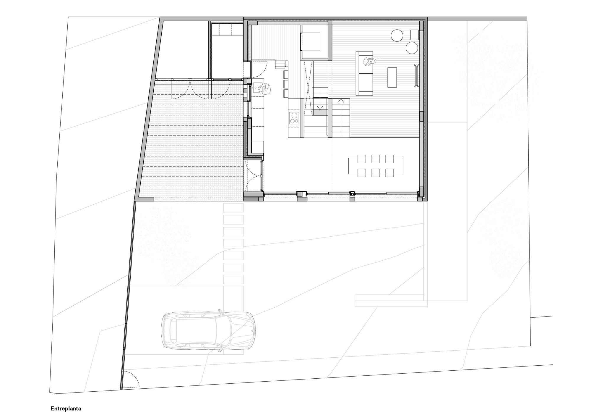
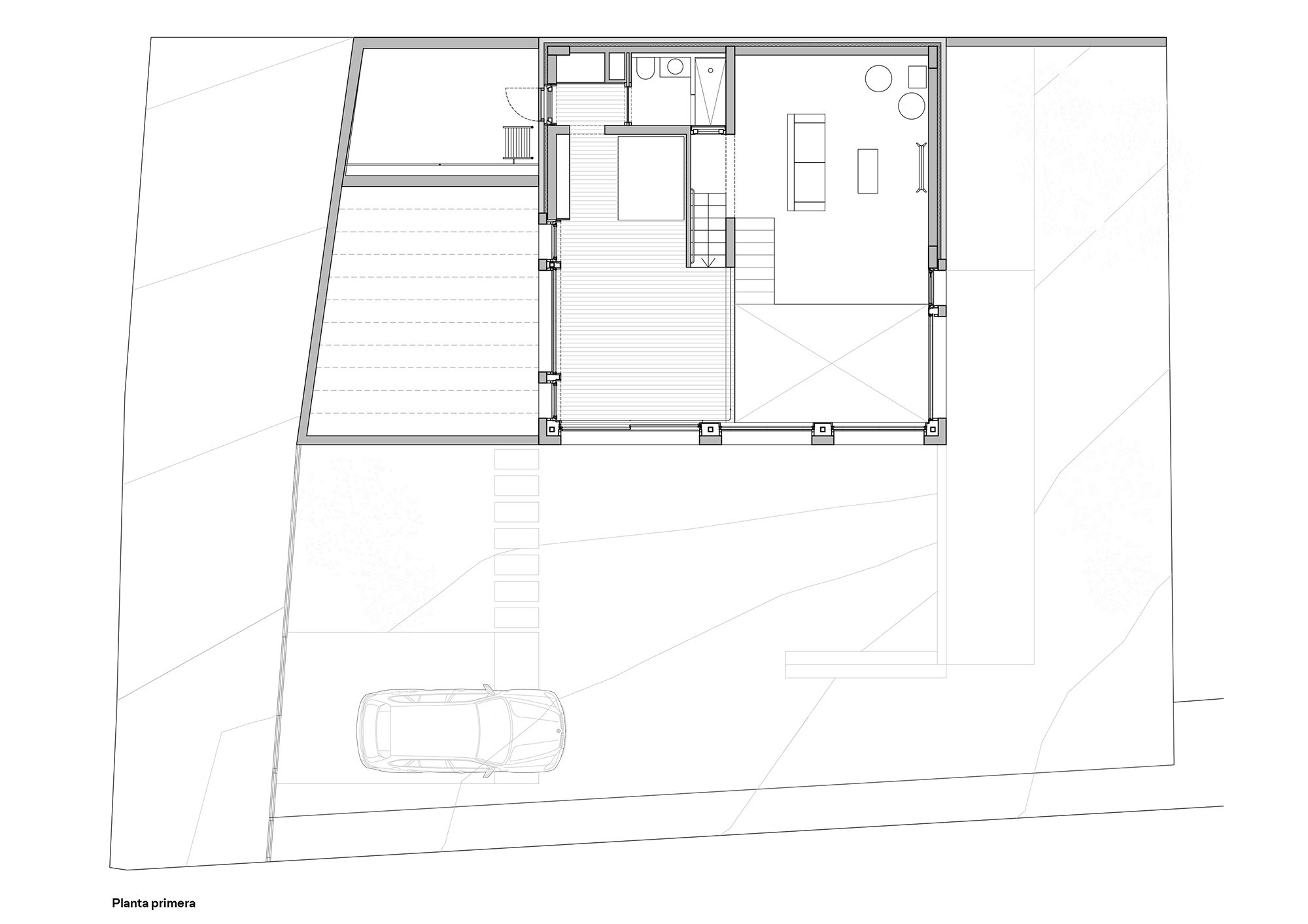
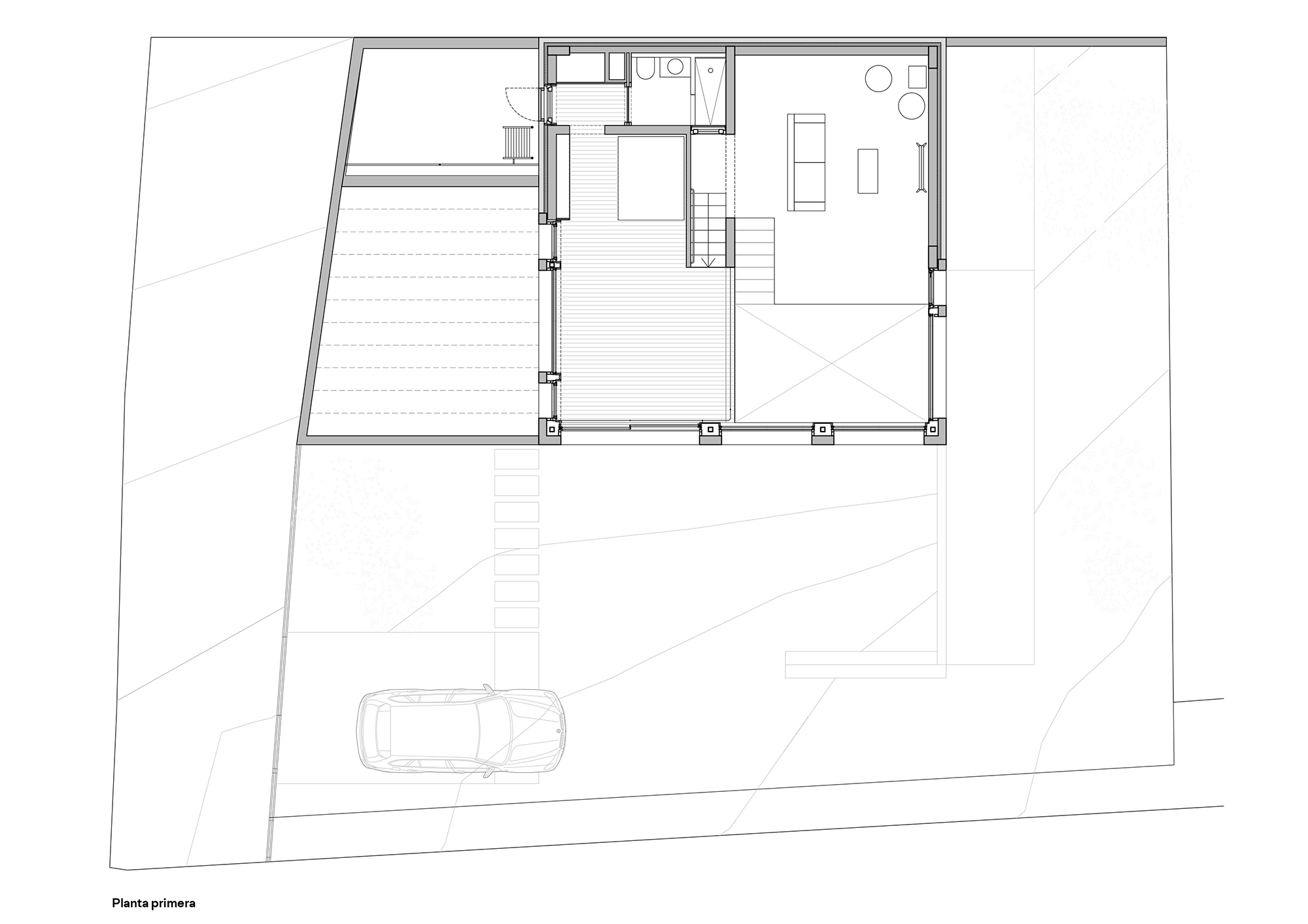
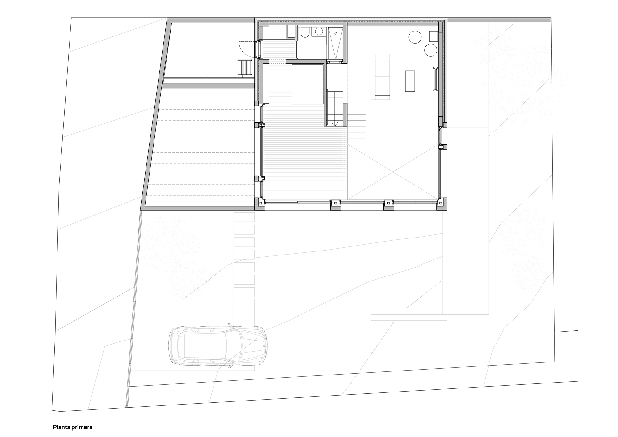
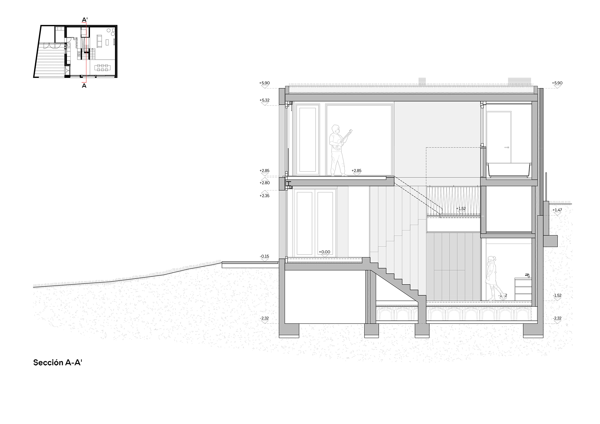
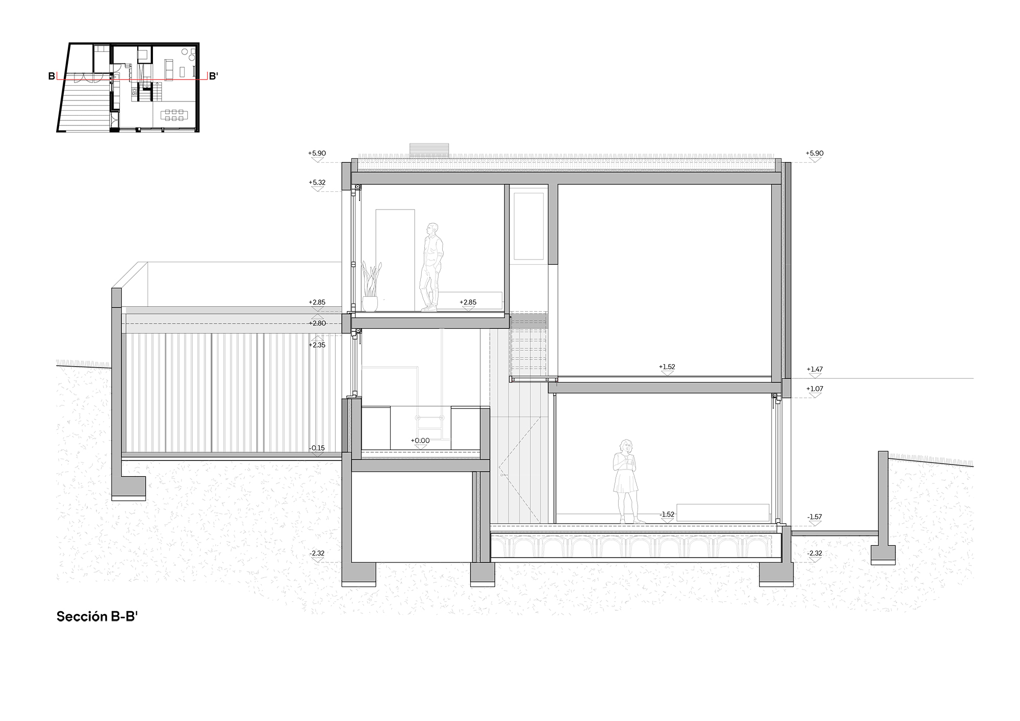
스킵 플로어 구조로 계획된 콤팩트 하우스
스페인 서부 산신소Sanxenxo에 위치한 주택이다. 프로젝트명에 사용된 카라북세이라Carabuxeira는, Chan de Gorita hill(4,000년 이상 된 거석 단지)에서 폰테베드라 하구Ría de Pontevedra까지 북동-남서로 이어지는 사면 기슭에 위치한 깨끗하고 아름다운 해변 동네로, 여름철에는 해변에서 수영하거나 일광욕을 즐기는 사람들로 붐비는 인기 있는 관광지이다.
주방/식당과 거실 사이도 반 층 차이가 나는 스킵 플로어 구조로 계획된 이 콤팩트 하우스에는, 대지가 가지고 있는 뛰어난 전망과 연결된 개방형 공용 공간, 전용 욕실 딸린 안방, 소형 침실 2개, 그리고 기타 보조 공간들까지 갖추어졌다.
HOUSES • SANXENXO, SPAIN
Architects : Carbajo Barrios Arquitectos
Area : 170 m²
Year : 2020
Photographs : Luis Díaz Díaz
Lead Architect : Manuel Carbajo Capeáns y Celso Barrios Ceide
Delineation : David Camiño Quintela, Laura Pardo, Beatriz Asorey, Alejandro Calviño Pérez
Technical Architect : Enrique Martínez Carregal
Structural Calculation : Ameneiros Rey | HH Arquitectos
Engineering : Obradoiro Enxeñeiros
VIVIENDA UNIFAMILIAR CARABUXEIRA by Carbajo Barrios Arquitectos
























'House' 카테고리의 다른 글
| 기능과 미학 그리고 자연과 조화를 이룬 평지붕 목조 주택, The Wooden Villa by Nicolas Dahan (0) | 2023.04.24 |
|---|---|
| 필로티 구조의 노출 콘크리트 주택, Fragata House by Estudio Galera (1) | 2023.04.21 |
| 도시형 독채 숙소, Villa Cava by Espacio 18 Arquitectura (0) | 2023.04.19 |
| 경사진 삼각형 땅에 최적화한 단독주택, CLRO2497 by LOKOMOTIV.archs office LKMV (0) | 2023.04.18 |
| 새집? 미니멀 디자인의 별채형 주거, Birdhouse by North Arrow Studio (0) | 2023.04.14 |