
옥상 정원이 인상적인 중정형 주택
Location: 부에노스아이레스, 그중에서도 석호를 주거지로 개발하여 단지 사이로 수로가 나 있는 외부인 출입제한 주택가인 Nuevo Quilmes에 위치한 주택이다.
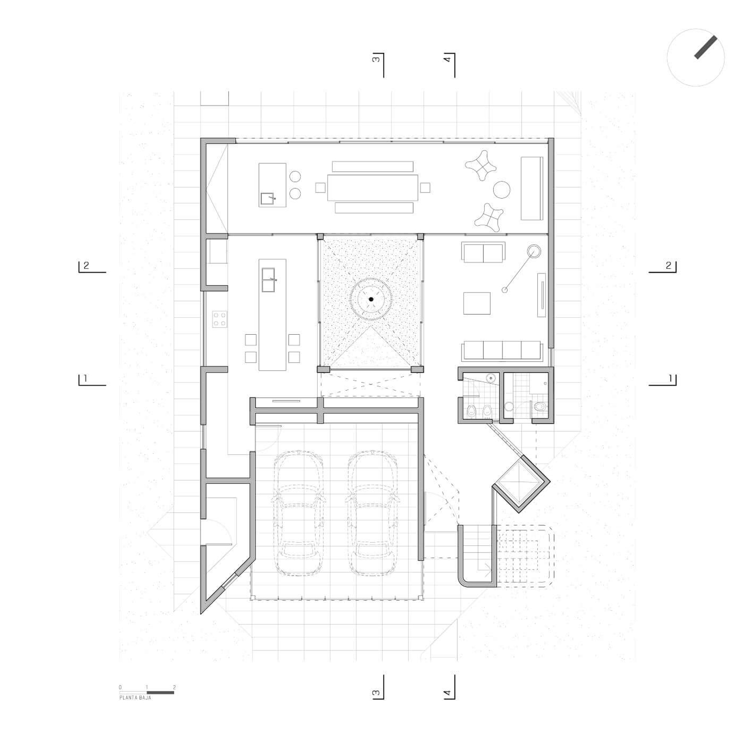
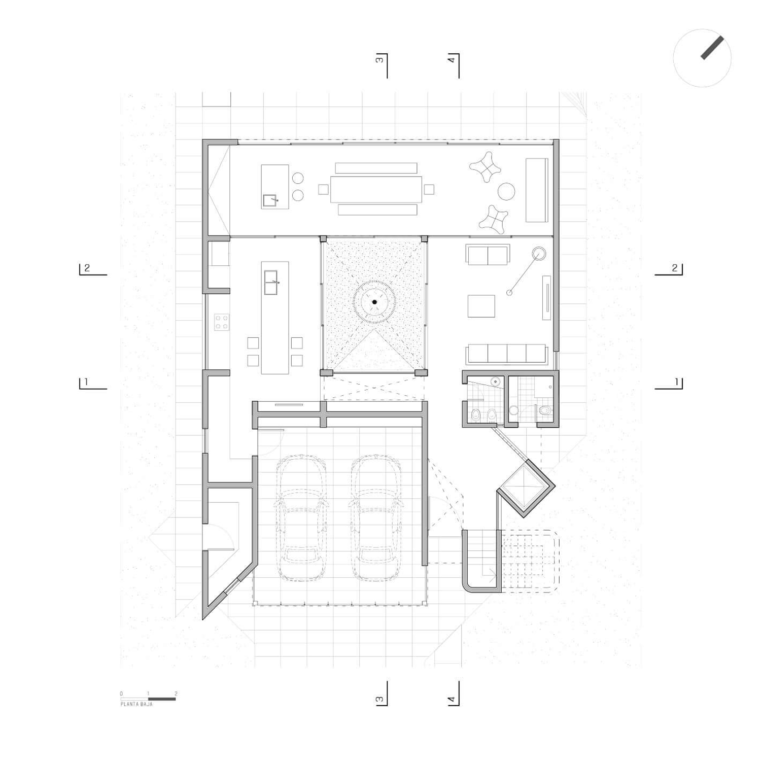
Organization: 1층은, 주방-식당 공간을 거실로부터 분리하는 중정 주위에 공간들이 배치되었다. 역시 중정 위의 보이드 공간을 중심으로 공간들이 배치된 위층에는, 뒤쪽 마스터 침실, 앞쪽 자녀들 침실 등 개인 공간들이 들어있다. 한쪽에 배치된 테라스를 통해, 물탱크, 보일러, 에어컨 시스템, 일련의 화단 등이 있는 옥상 정원으로 오를 수 있다.
Patio: 중정은, 1층에서는 공용 공간들을 서로 연결하도록 3면이 유리로 되어 있는 반면, 위층의 경우는 서재 쪽을 제외하고는 침실의 프라이버시를 위해 작은 창들을 설치했다.
Form: The general volumetry of the work is posed as a still life, where objects are stacked, approach, masses and forms dialogue, encountering tensions and distensions. The house is embodied as a prism in its entirety with a central hollow, the patio, and towards the front the vertical circulatory elements and other secondary spaces, are individualized within the main form that inscribes the house to begin to dialogue with the inflections proposed by the visuals towards the dike through the houses. On the facades, in their flat sections, regulating axes were drawn that allow ordering the openings carefully executed from the inside. What on the outside seems to be random, inside finds its vain with a logic proper to the internal function.
Materiality: The house is of traditional construction, with reinforced concrete structure and hollow brick plastered with plastic coating as an external finish. The murary presence is predominant throughout the work having very careful openings on all its faces with the exception of the front counter on the ground floor where the space is freed with a semi-inverted beam of 13 meters long that clears obstacles to the glazed gallery to increase the interior-exterior relationship. The interiors of the house are perceived white with a single level of suspended ceiling that contain the central air conditioning that goes through all the rooms without being perceived. As for the details of blacksmithing, the work tries to recover from the Argentine rationalist tradition, resorting to a language of round pipes that enhance the lines of the house and proposes its terraces as viewpoints to the outside.
Architecture firm: Berardi - Grasso - Berardi
Location: Nuevo Quilmes, Buenos Aires, Argentina
Photography: Daniela Mac Adden
Principal architect: Federico Berardi
Design team: Federico Berardi, Maria Fernanda Grasso, Thomas Berardi
Collaborators: Javier Orlando Silvera, Miguel Ángel Romero
Built area: 346.40 m²
Completion year: 2020
Civil engineer: Leonardo Van Kemenade
Structural engineer: Leonardo Van Kemenade
Visualization: Miguel Angel Romero
Tools used: AutoCAD, Rhinoceros 3D, Adobe Photoshop
Construction: Luchetta Srl
Ñ House by Berardi - Grasso - Berardi

































'House' 카테고리의 다른 글
| 다용도 별채, Bush Studio by Dane Taylor Design (0) | 2023.04.27 |
|---|---|
| 수도원? 강도 얼씬 못하게 지은 집, House with No Name by HW Studio (0) | 2023.04.26 |
| 기능과 미학 그리고 자연과 조화를 이룬 평지붕 목조 주택, The Wooden Villa by Nicolas Dahan (0) | 2023.04.24 |
| 필로티 구조의 노출 콘크리트 주택, Fragata House by Estudio Galera (1) | 2023.04.21 |
| 스킵 플로어 구조로 계획된 콤팩트 하우스, Single-Family House in Carabuxeira by Carbajo Barrios Arquitectos (1) | 2023.04.20 |