
수도원? 강도 얼씬 못하게 지은 집
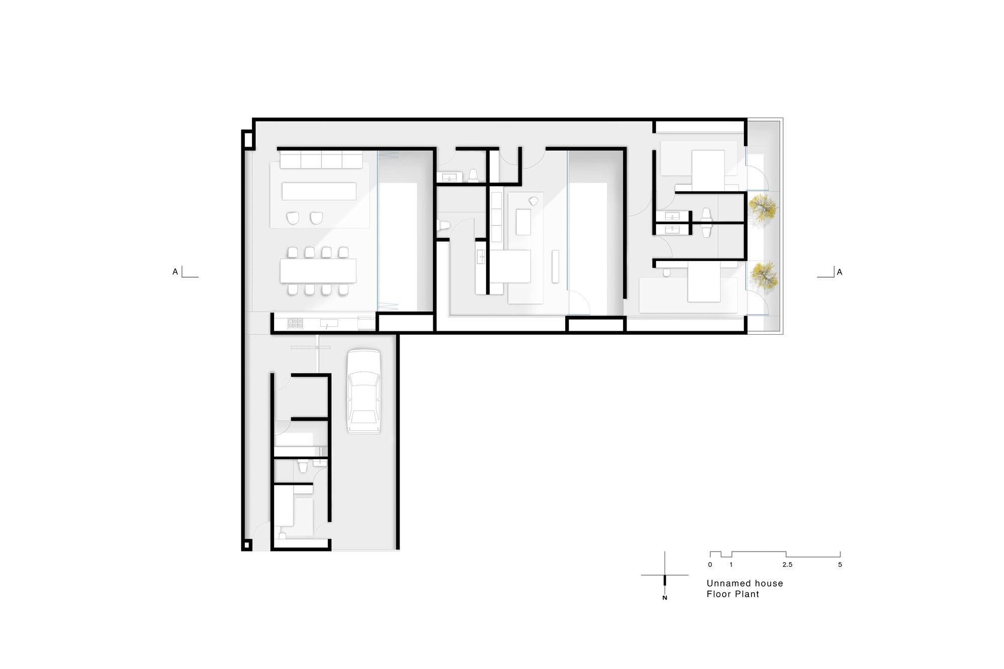
강도 피해를 본 적이 있는 가족이 보안을 최우선으로 고려하여 지은 집이다. 외부에 창을 설치하지 않았고, 단층집인 데도 2층 높이로 벽을 높게 쌓았는가 하면, 비싸 보이는 장식을 일체 하지 않았다.
A strong religious calling and a robbery are the circumstances that gave rise to the guiding decisions of this project. The future inhabitants of this house narrated, during the design process, how they had been victims of a robbery inside their home while they were away.
This situation made them feel exposed and very vulnerable, considering that the neighborhood is known for the constant increase in crime rates. However, their roots are deep and strongly attached to the land, so they refused to leave the place where they had made their life.
For this reason, they were looking for a very discreet, austere project without ostentatious ornaments, with high walls, and without windows facing the outside. It is understood then, that this would be the way in which architecture could restore their loss of sense of security.
These understandable requests were combined with the strong religious calling that was discovered during the design process. When we opened the main door of their house, it was a big surprise to discover the huge amount of Christs, Virgins, angels, religious objects, and baroque decorations that filled the space. To our surprise, they were looking for the opposite: a cold and even sterile minimalism that was sometimes difficult to digest even for us.
In a way, they wanted to get rid of all that, but we felt that the house should evoke a certain religious spirit; this would be done through shapes that reminded them of those sacred spaces that made them feel protected and safe both physically and spiritually. Conventual architecture gave us a good guide to solving this commission.
The house, like a convent, is organized around a sequence of courtyards; each courtyard is accompanied by a space covered by a barrel vault that blurs the boundaries of the roof, softens the light, and nods to the Cathedral of Morelia and the numerous baroque churches near the site of the house.
The house reminds us of the arcades under which pilgrims and travelers were covered around the courtyard of the San Agustin convent, sown with orange trees to feed and give drink.
Thus, the architecture in this case seeks to provide a solution to the unpleasant circumstance they experienced, helped by a deep-rooted faith that is reinforced by legible forms, light, and space.
HOUSES • MORELIA, MEXICO
Architects : HW Studio
Area : 270 m²
Year : 2023
Photographs : Cesar Bejar
Architect In Charge : Rogelio Vallejo Bores
Associate Architect : Oscar Didier Ascencio Castro,Nik Zaret Cervantes Ordaz
CASA SIN NOMBRE . UNNAMED HOUSE by HW Studio
























'House' 카테고리의 다른 글
| 스킵 플로어 구조로 지은 경사지 주택, House in Bonlez by LRARCHITECTES (1) | 2023.05.02 |
|---|---|
| 다용도 별채, Bush Studio by Dane Taylor Design (0) | 2023.04.27 |
| 옥상 정원이 인상적인 중정형 주택, Ñ House by Berardi - Grasso - Berardi (1) | 2023.04.25 |
| 기능과 미학 그리고 자연과 조화를 이룬 평지붕 목조 주택, The Wooden Villa by Nicolas Dahan (0) | 2023.04.24 |
| 필로티 구조의 노출 콘크리트 주택, Fragata House by Estudio Galera (1) | 2023.04.21 |