반응형

스킵 플로어 구조로 지은 경사지 주택
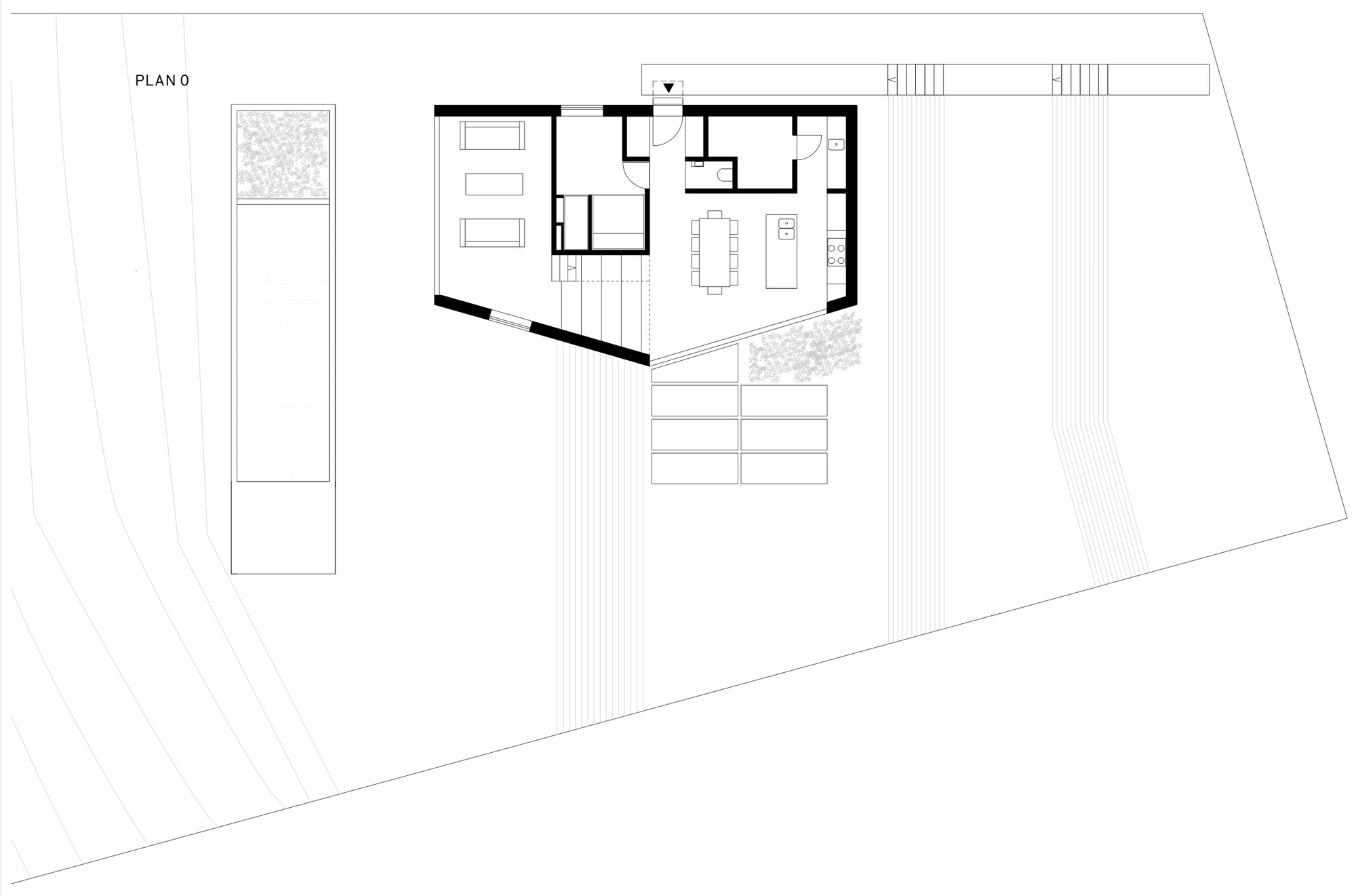
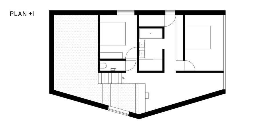
경사진 대지의 지형을 활용하여 스킵 플로어 구조로 계획한 주택이다. 이런 내부 구조에 대응하여 땅도 계단식으로 개발되었다.
주방 겸 식당은, 테라스와 허브 정원을 향해 온전히 개방되었다. 채소밭이나 수영장과 같은 레벨에 있는 거실에서는, 야생 정원으로 조성된 비탈면 풍경을 즐길 수 있다.
외벽과 지붕 모두를 마감하는 데 사용된 천연 슬레이트가, 일련의 식물 군과 조화를 이루는 동시에 빛의 변화에 따라 다양한 분위기를 자아낸다.
내부는, 콘크리트와 같은 원재료와 목재와 같은 천연 재료가 조화를 이루도록 인테리어 되었다.
HOUSES • Bonlez, CHAUMONT-GISTOUX, BELGIUM
Architects : LRARCHITECTES
Area : 173 m²
Year : 2017
Photographs : Maxime Vermeulen
Manufacturers : Louis Poulsen
HABITATION SRB by LRARCHITECTES




















반응형
'House' 카테고리의 다른 글
| 공간 구조가 독특하게 계획된 홀리데이 홈, Dune House by BNLA Architecten (0) | 2023.05.10 |
|---|---|
| 한쪽은 숲 다른 한쪽은 들판! 풍경화 걸듯 창을 낸 전원주택, House Between Forest and Field by nARCHITECTS (0) | 2023.05.08 |
| 다용도 별채, Bush Studio by Dane Taylor Design (0) | 2023.04.27 |
| 수도원? 강도 얼씬 못하게 지은 집, House with No Name by HW Studio (0) | 2023.04.26 |
| 옥상 정원이 인상적인 중정형 주택, Ñ House by Berardi - Grasso - Berardi (1) | 2023.04.25 |