
영화 제작자 겸 시인인 건축주가 로스앤젤레스 에코 파크에 있는 엘리시안 공원과 인접한 집을 구입했는데, 전 주인이 서정적인 앤티크 스타일로 꾸며놓은 계단식 뒤뜰에는 허물어질 위기에 놓인 작은 판잣집이 있었다고 한다.
“건축주가 여기에 과거를 떠올리게 하면서도 누가 보아도 현대적인 집필 스튜디오 겸 게스트 하우스를 짓고 싶어 했습니다.” 설계팀의 설명이다. “그래서 집에 딸려 있지만 다른 세계에 있는 것 같은 외딴 창작 공간을 겸하는 다목적 공간으로 안팎을 계획했습니다.”
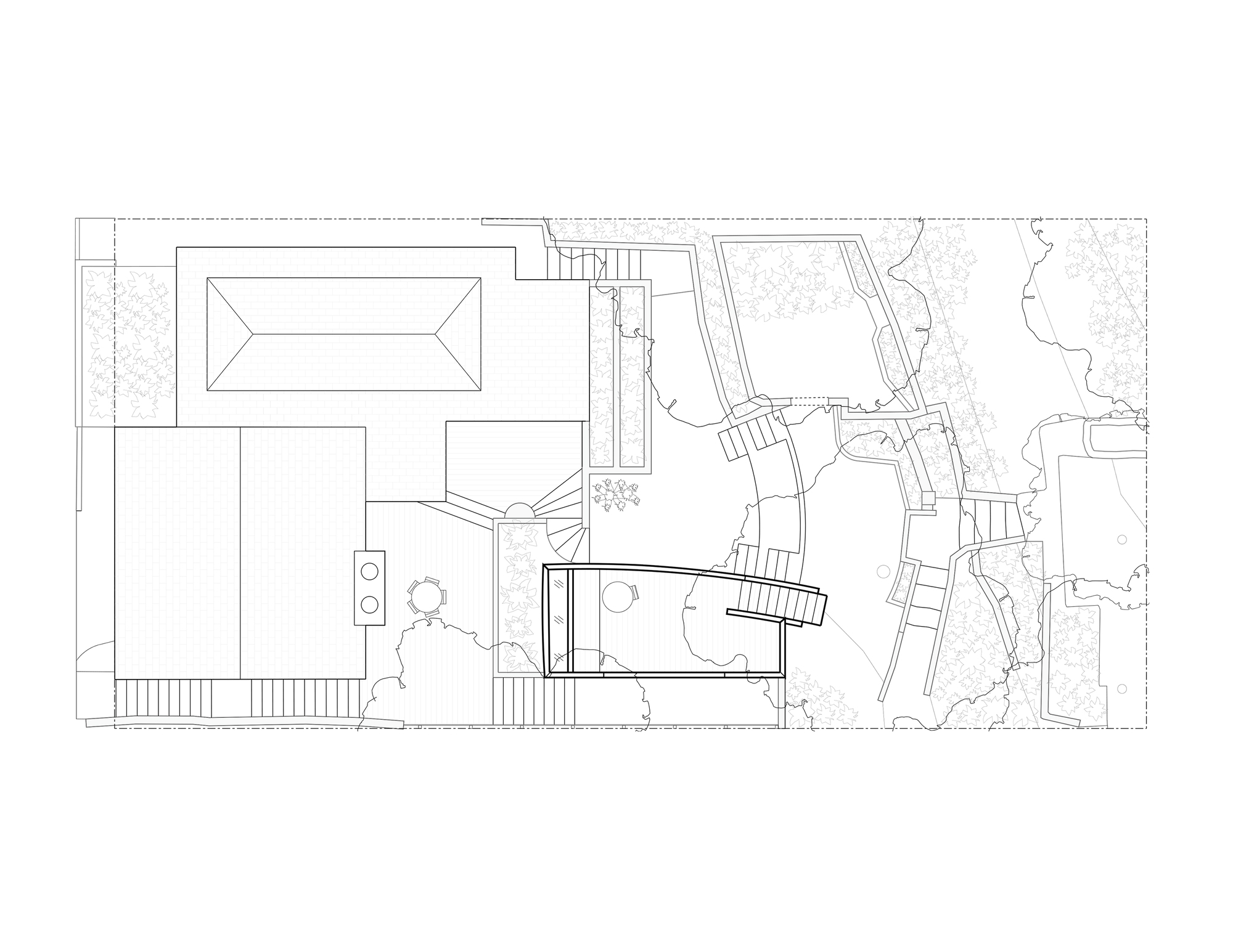
250제곱피트(약 7평) 규모의 이 별채는, 본채 바로 뒤에 있는 가파른 언덕 중간에 지어졌다. 옥상의 난간 벽이 곡선으로 이루어진 이 건물 안에는 화장실 딸린 원룸 공간이 들어 있다.
서단에 설치된 전체 길이의 천창을 통해 들어온 빛이 만곡부를 따라 온화한 빛으로 바뀌어 내려온다. 완만하게 휜 벽들과 꺾인 구석으로 이루어진 내부는 고전적인 할리우드 장식을 연상케 한다. 주변의 나무와 하늘 풍경을 향해 아치형 창호를 설치하여, 자연 속으로의 탈출감과 몰입감이 들도록 했다.
한 쌍의 프렌치 도어를 설치한 주 출입구 외에 도로 쪽에 부 출입구를 설치하여, 게스트나 회의에 참석하는 지인이 본채를 거치지 않고 편하게 드나들 수 있게 했다.
본채와 별채 사이의 그늘진 평지에 나무 데크를 설치하여, 모닝커피나 요가를 즐길 수 있게 했다. 이곳에서 구불구불한 계단을 따라 오르면 별채의 프렌치 도어 입구로 이어지는 열린 공간이 나온다. 이 공간 동쪽에 일련의 객석용 계단을 설치하여 영화 제작자인 건축주가 배우와 함께 리허설을 하는 무대로 사용할 수 있게 했다.
숲이 우거진 언덕 꼭대기와 건물 옥상으로도 계속해서 외부 계단이 이어져 있다. 옥상 테라스는, 왕관 모양으로 디자인된 난간 벽으로 둘러싸여 있다. 옥상 테라스의 동쪽은 나뭇가지가 드리워져서 아늑한 분위기가 나고, 남쪽과 서쪽으로는 LA 시내와 그 너머까지의 전망이 선명하게 보인다고 한다.
HOUSES • LOS ÁNGELES, UNITED STATES
Architects: Byben & Skeens
Area: 480 ft²
Year: 2021
Photographs: Taiyo Watanabe, Olivia Hemaratanatorn
Builder/General Contractor: LA Green Building, Marc Le Cornet
Structural Engineer: Nous Engineering, Omar Garza
Interior Design: Sunstone Interiors, Jana Stark
Stiff Peaks by Byben & Skeens


















