
처마 있는 1층 테라스, 2층의 발코니와 베란다 등 내부와 외부 공간 사이를 매개, 전이, 완충하는 중간 성격의 공간들이 넉넉하게 확보된 스페인 주택이다.
이 집은, 북쪽 도로에서 진입할 수 있고 삼면이 이웃 대지로 둘러싸인, 폭 16m, 길이 30m 크기의 직사각형 땅에, 도시 계획 규정이 허용하는 최대 용적으로 지어졌다.
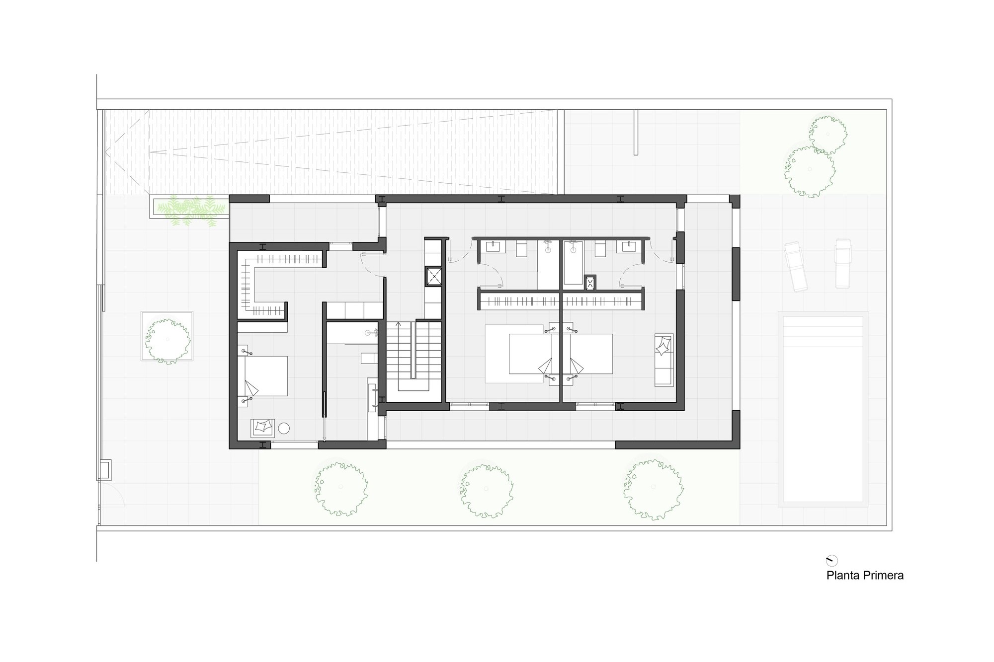
폭 9.60m, 길이 19.30m 규모의 이 흰색 건물은, 전체가 차고인 지하층, 주거공간들이 들어있는 1층과 2층으로 이루어졌다.
주방, 식당을 포함한 거실, 공용 욕실, 그리고 침실 하나가 배치된 1층에는, 위층이 처마를 이룬 테라스를 남측과 서측 파사드를 따라 널찍하게 확보한 다음, 안팎의 바닥을 동일한 재료로 균일하게 마감하여 내부와 외부 사이의 경계가 모호하게 처리되었다.
2층에는, 메인 침실, 게스트 룸, 자녀방 등 전용 욕실 딸린 침실 세 개가 갖추어졌다. 자녀방과 게스트 룸은, 파사드로부터 후퇴시켜서 외부로 개방된 발코니 공간을 확보함으로써, 햇볕과 외부 시선이 차단되도록 했다. 또 메인 침실 동쪽에는 베란다가 배치되었다.
HOUSES • VINYOLS I ELS ARCS, SPAIN
Architects: Eloi Camacho Arquitectura
Area: 430 m²
Year: 2020
Manufacturers: AutoDesk, Grespania, Technal, Placo saint-gobain
Foto: Adrià Goula
CASA CA by Eloi Camacho Arquitectura



















