
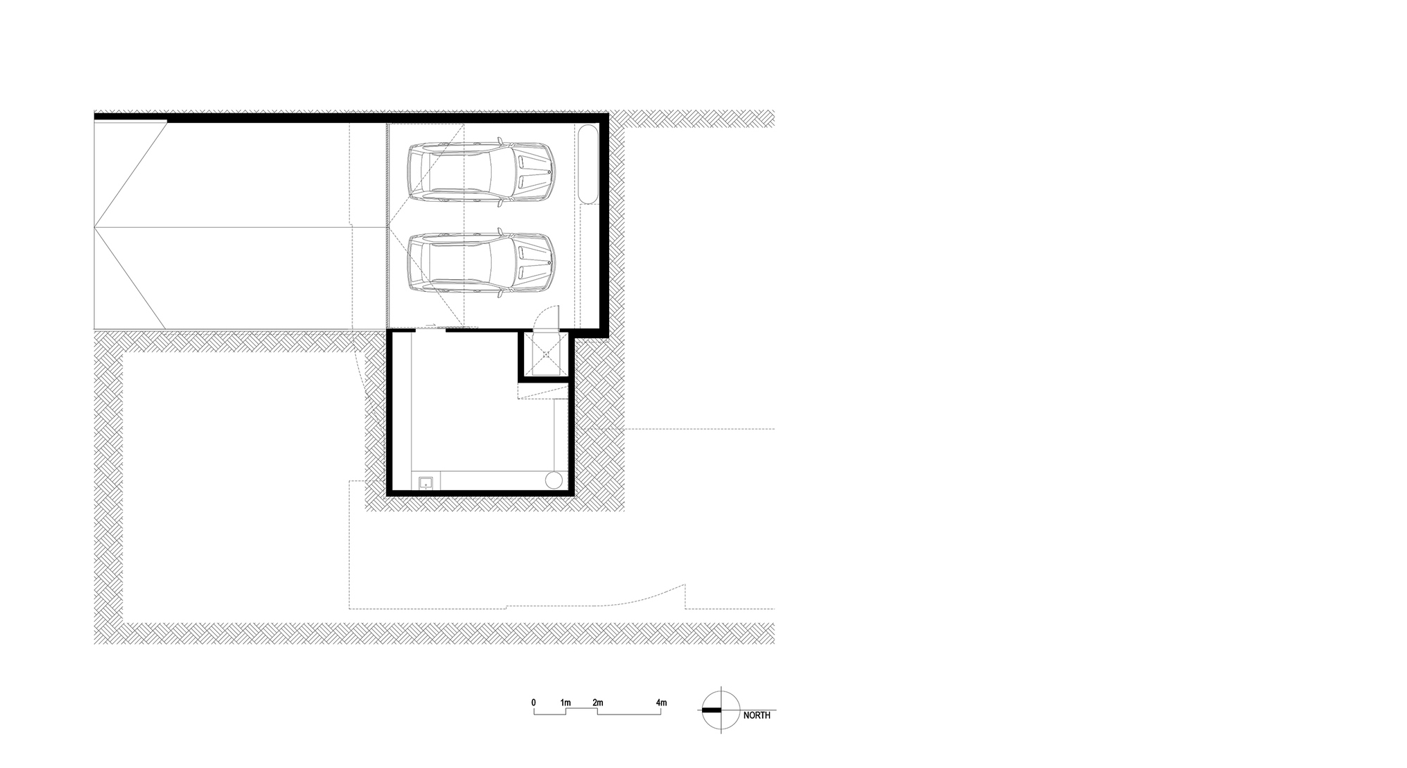
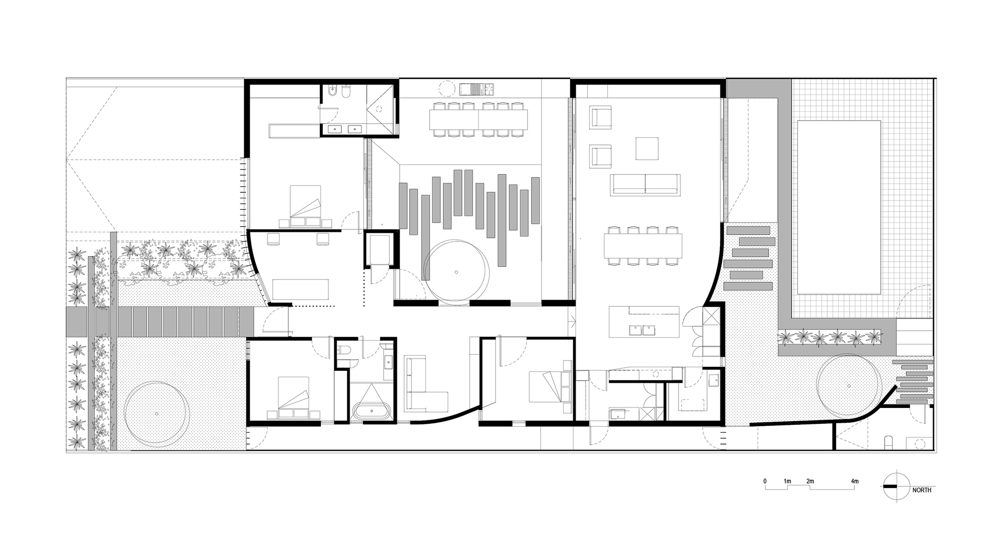
앞마당, 안마당, 뒷마당 등 세 군데에 마당이 있는 호주 주택이다. 이웃집들을 가리는 동시에 주변 나무의 꼭대기 부분을 볼 수 있는 안마당이 이 집의 핵심 공간이다. 고요하고 평온한 이 안마당은 다양한 방향의 내부 공간들과 밀접하게 연계되었다.
재료의 색상을 통해서도 연계성이 표현되었다. 내부는, 바닥이 흰색 콘크리트로 마감된 부분의 천장을 목재로 마감하여, 바닥과 천장이 짝을 이루었다. 외부에는, 교외 지역에 위치한 이 동네(멜버른 북동쪽 외곽 동네인 템플스토Templetowe)의 맥락을 따르는 동시에 납작한 건물 형태와 어울리도록, 실용적인 갈색 장 벽돌이 사용되었다.
내부 복도에도 벽돌이 사용되었는데, 벽체가 창문에 의해 끊겨서 일련의 주랑을 이루고 있다. 그래서 안마당 쪽에서 복도로 빛이 쏟아져 들어온다.
HOUSES • TEMPLESTOWE LOWER, AUSTRALIA
Architects: FIGR Architecture & Design
Area: 280 m²
Year: 2015
Photographs: Tom Blachford
Manufacturers: Krause Bricks, Darkon, Radial Timbers, Robertson Building Products
Builder: Grundella Constructions
Landscape Architect: Mud Office
Styling: Ruth Welsby
Engineer: Kaco Consulting Engineers
Architect In Charge: Michael Artemenko, Adi Atic
Courtyard House by FIGR Architecture & Design




















