
파리 15구에 위치한 타워형 협소주택이다. 아래는 설계를 한 건축사무소 측이 제공한 글이다.
“A crazy client. 이 이야기는 2017년 초가을, 우리에게 도움을 요청하는 이상한 이메일 하나를 받으면서부터 시작되었습니다. 건축주가, 자신과 자신의 아내가 파리의 한 건물 뒤뜰에 위치한 폐허가 된 다른 건물 한 채를 (just) 샀다면서, 자신들이 살 집으로 개조를 하고 싶다고 전화를 했습니다. 간단한 통화만으로도, 어떤 일을 할 수 있는지 또는 무엇이 허용되는지도 모른 채 무턱대고 케케묵은 돌 더미 하나를 산 것과 같다는 생각을 하기에 충분했습니다. 미친 사람 아니면 천재, 둘 중 하나인데 우리로서는 판단하기가 어려웠습니다. 하지만 우리는 이 모험에 참여하기로 결정했습니다. 족히 몇 년은 걸릴 모험이란 걸 알았지만, 이 중산층 가족이 파리에 자신들의 집을 가질 수 있게 돕고 싶었기 때문입니다.
A path is strewn with pitfalls. 곳곳에 함정이 산재해 있는 여정입니다. 도심, 그중에서도 제약이 많은 부지에 위치한다는 점을 고려하여, 기존 건물을 사용하여 그 위에 새로 세 개 층을 더 올려서 완전히 새로운 집으로 만들기로 했습니다. 파리와 같은 도시에서 건물을 짓는다는 것은 영웅적인 행위에 해당할 정도로 쉽지 않은 일입니다. 초안이 나오고 시공에 들어가기까지 오랜 시간이 걸렸습니다. 대지 지분 소유자, 도시 계획 당국, 예산이 얼마 안 되는 건축주 등 관련 당사자들 모두의 승인을 얻기 위해 수차례에 걸쳐 수정을 해야 했기 때문입니다.
한 표 차로 아슬아슬하게 과반수를 넘긴 투표로 프로젝트 진행이 결정되었고, 건축 허가는 거부되었다가 어렵게 승인이 났으며, 이웃 주민들의 민원에 맞닥뜨리기도 했지만 모든 문제는 결국 해결되었습니다. 이런 어려운 과정을 거치고 마침내 공사를 시작하게 되었을 때에야, 건축주가 천재이거나 아니면 매우 운이 좋은 사람이란 생각이 들었습니다.
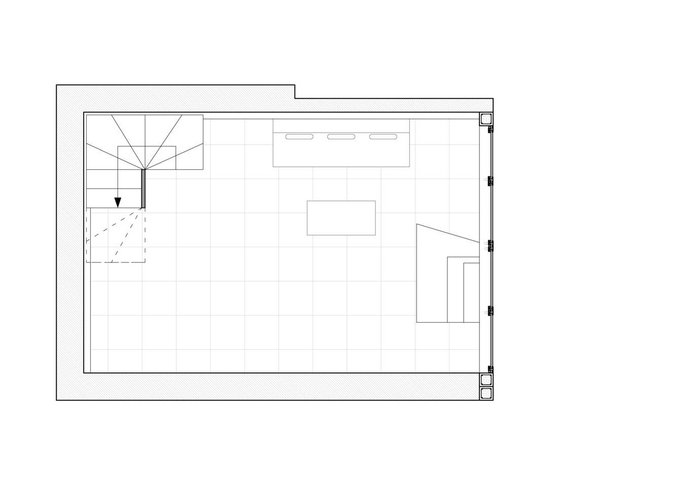
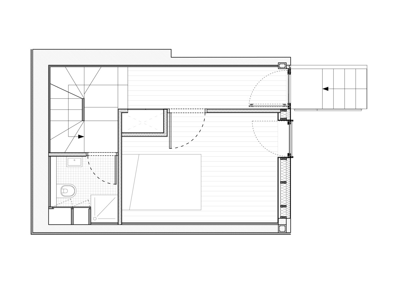
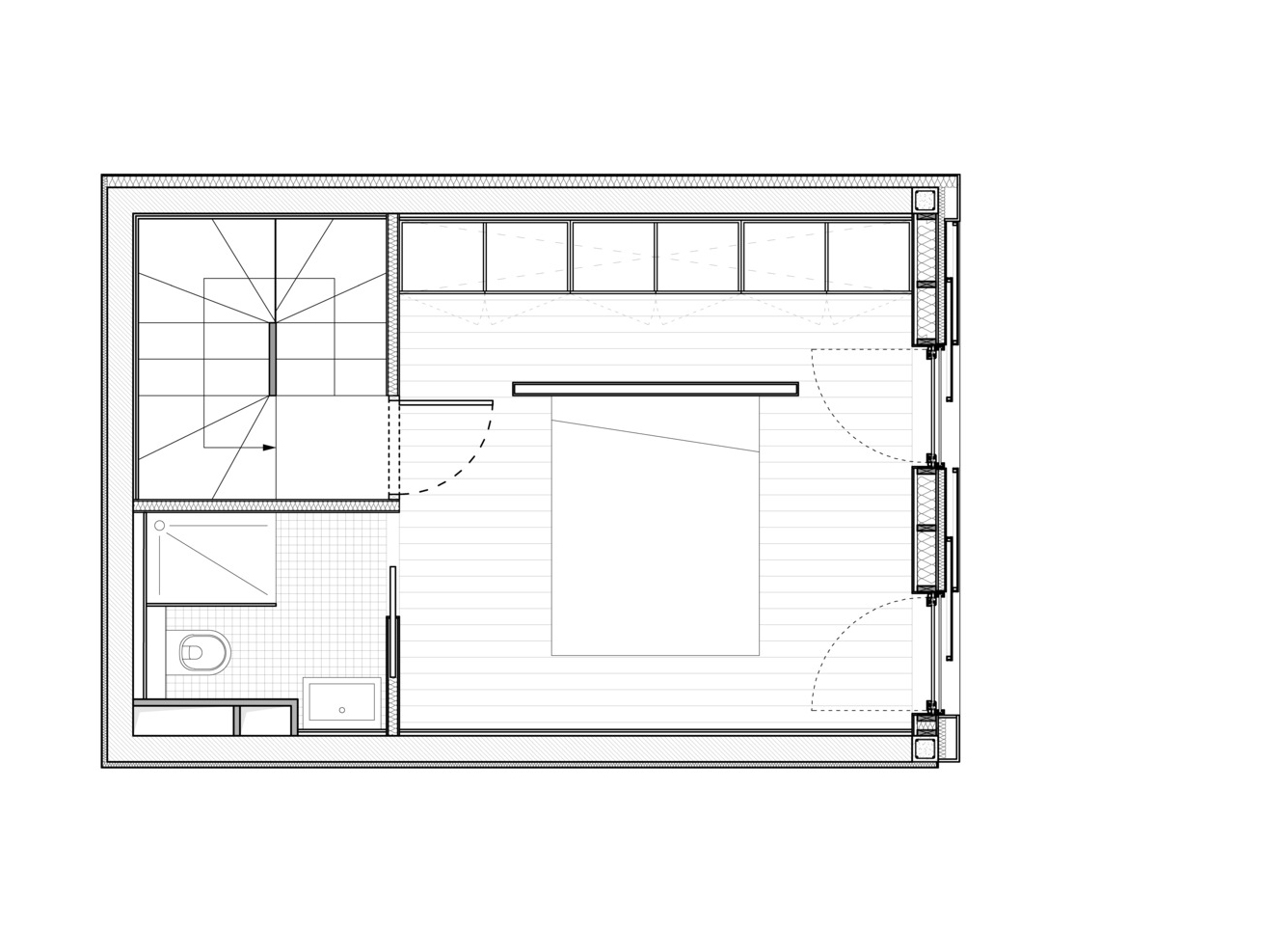
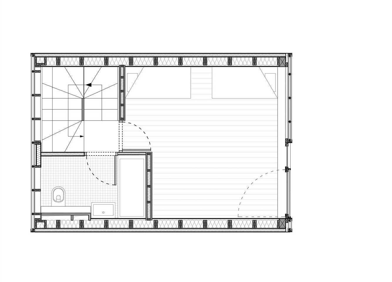
A tower in the middle of a courtyard. 건물 자체에 대한 이야기입니다. 기존 건물에 세 개 층을 더 올려서, 6m x 4m 공간을 기반으로 하는 6층짜리 ‘타워’ 건물이 되었습니다. 기존 구조 위에 증축을 해야 했기 때문에 하중을 줄이기 위해 목조로 지었습니다. 대부분의 내부 공간, 특히 계단실에 목구조가 적나라하게 드러나 있습니다.
조망이 가능한 파사드는 하나뿐입니다. 전면의 이 메인 파사드를 층마다 다르게 디자인하여, 용도가 다른 공간들이 여러 개 쌓인 건물처럼 보이게 했습니다. 반면, 건물의 후면 파사드는 반투명 폴리카보네이트로 마감하여 은은한 빛이 내부로 투과됩니다. 옥탑 층은, 투명한 전면 파사드와 삼면의 반투명 외피로 이루어져 있어서 마치 온실처럼 보입니다. 그래서 해질 녘 불을 켜면 건물이 하나의 랜턴처럼 보입니다.
Staying in Paris. 일견 미친 도박처럼 보일 수도 있겠지만, 집값이 천정부지로 치솟고 있는 파리 같은 도시에 중산층 가족이 집을 가질 수 있는 방법을 찾기 위한 좋은 실험이었다고 생각합니다. 기존 건물의 구조를 재사용함으로써, 건축 자재, 에너지, 토지, 예산 등을 많이 절약할 수 있었습니다. 미친 짓처럼 보였지만, 마침내 건축주는 혼잡하고 비싼 도시 한가운데에 에너지 효율적인 현대식 주택을 갖게 되었습니다.”
HOUSES • Paris 15e Arrondissement, FRANCE
Architects: Java Architecture
Area: 105 m²
Year: 2020
Photographs: Caroline Dethier
Une surélévation sur cour Paris 15ème by Java Architecture






































