
환경적으로 가치가 높으면서도 손상되기 쉬운 생태계를 가진 지역 안에서의 건축 사례를 제시하고자, Daniel Feldman이 이끄는 건축사무소 ZITA가 Cristina Albornoz와 3년 동안의 연구 끝에 설계하여, 안데스산맥 내의 운무림 지역에 지은 주택이다.
안데스산맥의 영구 적설선 아래 지역으로 해발 고도 3,250m이고 북회귀선과 남회귀선 사이에 위치한 이곳은, 대기로부터 물을 흡수할 수 있는 독특한 식생과 운무림 환경 사이의 공생관계 덕분에 끊임없이 물이 생산되고 있다. 참고로, 운무림은 구름이나 안개가 늘 끼어 있는 장소에 발달한 주로 상록수로 이루어진 산림이다. 높은 습도, 적당한 냉기 때문에 선태식물이 나무 높은 곳까지 밀생하는 식생을 보인다.
식물로 덮인 지표에 미치는 영향을 최소화하기 위해, 바닥 기초를 타설하지 않고 설치한 콘크리트 기둥 위에 집을 지었기 때문에, 물의 흐름이 막힘없이 원활하게 이루어진다. 기둥 위에, 조립식 OSB 벽체와 지붕 시스템을 통한 일련의 조립식 목재 포르티코가 설치ㆍ연결되었다. 조립식으로 지었기 때문에 시간과 폐기물이 줄어들었다. 중장비의 힘을 빌리지 않고 100% 수작업으로 조립할 수 있게 설계되기도 했다.
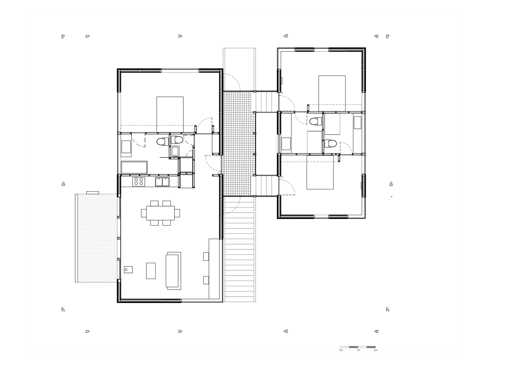
이 집은, 일광욕실로 연결된 두 개의 모듈로 이루어졌다. 메인 모듈에는, 식당과 주방을 포함한 개방형 거실, 마스터 침실과 욕실, 그리고 화장실이 배치되었다. 다른 모듈 하나에는 각각 욕실이 딸린 침실 두 개가 갖추어졌다.
두 개의 모듈로 나눔으로써, 규모가 소형화되었을 뿐만 아니라 전망과 투명도가 다양한 파사드 여러 개를 가지게 되었다. 북쪽 전망을 향해 있는 거실은, 수동 체인 호이스트로 작동하는 도개교식 테라스를 통해서도 내부 공간을 외부로 확장할 수 있게 되어 있다.
연평균 온도가 8°C(14°C ~ 3°C)이고, 평균 습도가 85%인 이런 지역에 건물을 지을 때는, 열적 쾌적성 측면에서도 문제가 된다. 전기나 기계식 난방 시스템에 의존하지 않고, 일련의 패시브 하우스 시스템이 적용되었다.
모든 공간이 창이나 천창을 통해 하루 종일 직사광을 받을 수 있도록, 지붕의 모양과 창의 위치가 정해졌다. 천창 아래에 위치한 콘크리트 벽체 부분이 낮 동안 열을 흡수했다가 밤에 방출하는 축열재 역할을 한다. 두 모듈을 연결하는 유리로 둘러싸인 브리지에도 하루 종일 열을 흡수하여 저장하도록 바닥에 석재를 깔았다. 지면으로부터 건물을 띄워서 지으면 흡습이 감소하여, 바닥 슬래브가 건조하게 유지된다.
벽체, 지붕, 그리고 바닥 모두에 5겹 단열 시스템을 적용하여 패시브 난방을 통한 열적 쾌적성이 영구적으로 확보ㆍ유지될 수 있게 했다. 외부 마감에는, 습기와 해충에 강한 탄화목이 사용되었다. 그리고 내부의 벽과 천장을 합판으로 마감하여 낮 동안 축적된 열이 오래 유지되도록 했다.
마지막으로, 패시브 난방 전략에 따라 디자인된 지붕 모양은, 안개가 드리웠다가 걷히는 다양한 모양의 봉우리를 가진 이곳의 산 풍경을 닮기도 했다.
HOUSES • COLOMBIA
Architects: ZITA
Area: 1615 ft²
Year: 2021
Photographs: ZITA
Lead Architect: Daniel Feldman
House in the Páramo by ZITA




























