
덴마크 최대의 섬인 셸란섬Sjælland의 작은 마을에 있는 발레킬데 민속 고등학교Vallekilde højskole에 재생 가능한 재료로 지은 직원 숙소이다.
학교는 인재 양성뿐만 아니라 지역 사회를 지속 가능하게 하는 중요한 역할도 한다. 발레킬데 민속 고등학교는 1865년에 설립된 이후 그 역할을 충실히 해왔다고 한다. 시골 마을 학교가 중단 없이 그 역할을 다하기 위해서는 자격을 갖춘 우수한 교사를 유치해야 한다.
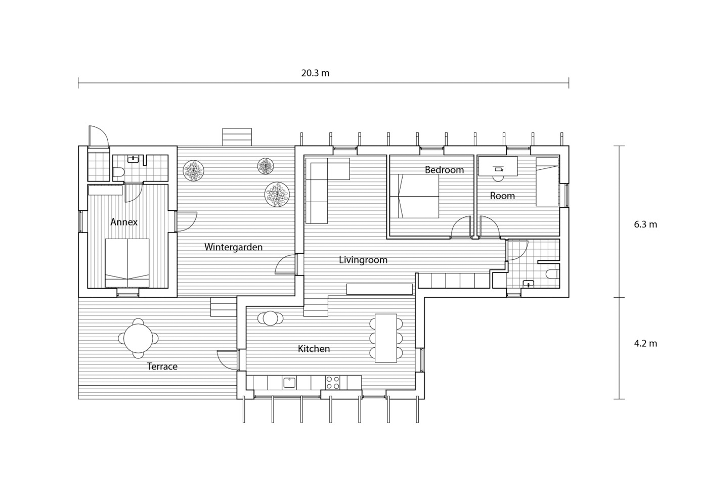
언덕 위에 지어진 이 집은 학교 관사이다. 직원 숙소, 게스트 하우스, 예술가나 음악가의 여름 숙소 등 학교의 필요에 따라 다양한 용도로 사용하기 위해 지어졌다.
이 집은, 라메조드Lammefjord 해안 간척지가 바라다 보이는 경사면에 있는 학교 과수원 옆에 위치한다. 풍경, 지역 공동체, 그리고 독특한 건축 문화가 시너지 효과를 일으켜서 발레킬데 마을이 살기 좋고 일하기도 좋은 곳으로 만들어졌다고 한다. 지역의 건축 전통과 장인 정신으로 형성된 마을이다.
Keeping it simple 안팎이 모두 나무로 지어졌다. 건강하고 지속 가능한 재료들만 사용하여, 현지 목수로 구성된 소규모 팀이 현장 작업으로 시공할 수 있도록 단순한 구조로 설계되었다. 목질 섬유로 단열을 한 목 골조를 형성한 다음, 내구성, 고밀도, 내후성 재료인 낙엽송 목재로 마감을 했다.
나무는, 가공하는 과정에서 발생하는 것보다 더 많은 CO2를 대기 중에서 제거했을 뿐만 아니라, 실내 공기질도 좋게 유지하는 재료이다. 내부에는 자연스러운 촉감이 나도록 수산화나트륨 처리를 한 목재가 사용되었고, 외부는 코펜하겐 시청을 설계했던 건축가 Martin Nyrop이 디자인하여 유명해진 이 학교의 체육관 건물(Ævekseshuset)과 어울리도록 노란색과 빨간색으로 칠이 되었다.
Minimalist house generous space 이 집은, 다양한 공간 조합이 가능하도록, 온실(겨울 정원)로 연결된 두 개의 볼륨으로 계획되었다. 온실은, 집 전체를 한 가족이 사용할 경우 널찍한 입구로 쓰거나, 부족한 공간을 대신할 수 있는 겨울 정원이 되기도 할 것이다. 그리고 셰어 하우스로 사용할 경우 온실은, 거주자들 누구나 편하게 쓸 수 있는 공용 공간이 될 것이다.
“눈부신 햇살, 변화하는 하늘, 아름다운 풍경 등 이 지역의 일상적인 요소들이 건축물을 통해 더욱 빛을 발해서, 지난 세기 동안 많은 예술가와 화가들을 매료시켜 왔습니다.” 설계팀의 설명이다. “풍경을 액자화하여 사색할 수 있는 공간으로 만드는 원형 창, 빛으로 내부의 목재 표면에 생명을 불어넣는 경사 지붕 아래의 클리어스토리 창, 지평선 너머까지 볼 수 있도록 주방에 설치한 파노라마 창 등 다양한 형태의 창을 통해 풍요로운 일상을 즐길 수 있게 했습니다.”
DORMS • VALLEKILDE, DENMARK
Architects: Arcgency
Area: 150 m²
Year: 2020
Photographs: Stine West Frederiksen
Lead Architects: Mads Møller
Landscape: Arcgency
Engineering: Nem ingeniør
Design Team Leader: Mads Møller, Camilla Lemb Nielsen, David Kofod, Kasper Prochownik
Clients: Vallekilde Højskole
House on the Hill by Arcgency

























'House' 카테고리의 다른 글
| 가변성을 극대화한 실험 건축! 용도별로 블록화한 브루탈리즘 주택 (0) | 2022.01.20 |
|---|---|
| 경관과 하나된 집에서 그 경관을 즐기며 살다. Barrow House by ID Architecture (0) | 2022.01.19 |
| 느슨한 여유! 토박이 은퇴 부부의 트인 ㅁ-자형 주택, Seoidin Courtyard House by DUA (0) | 2022.01.17 |
| 아이폰도 울고 갈? 독특하고 매력적인 디자인의 인도 주택, House of Ayoob by 3dor Concepts (0) | 2022.01.14 |
| 요구와 취향을 100% 담아낸 디자인 주택, PMC House by EXarchitects (0) | 2022.01.12 |