반응형

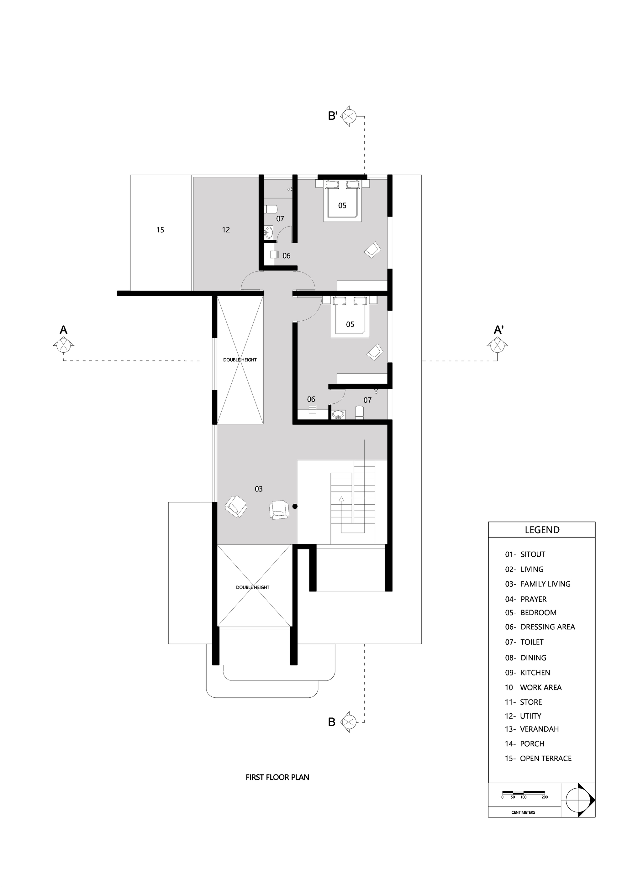
미학적으로 매력적이고, 살기 편하며, 외부로 개방되어 있는 동시에 보안과 프라이버시를 유지하는, 그런 독특한 주거 공간으로 계획된 인도 주택이다.
“건축주가, 새로운 형태의 밝고 채광이 잘 되는 주거 공간으로 지어달라고 했습니다.” 설계팀의 설명이다. “그래서 모서리가 둥근 흰색 캔버스나 아이폰 형태의 블록들이 테트리스 구조로 쌓인 것처럼 디자인을 했습니다.”
계단, 가구 등 다양한 요소들도 집의 형태와 동일한 둥근 모양으로 디자인을 하고, 전체적으로 흰색을 적용하여, 부드럽고 평온한 분위기를 냈다. 다른 미술 조각품들과 함께 곡선형 조형물처럼 디자인된 계단이 특히 눈길을 끈다.
HOUSES • TALIPARAMBA, INDIA
Architects: 3dor Concepts
Area: 4600 ft²
Year: 2021
Photographs: Running Studios
Manufacturers: Ikea, Kohler, FRANKI, Kajaria, Safwan
Lead Architects: Ahmad Thaneem, Muhammed Jiyad, Muhammed Naseem
Junior Architect: Rahul V
Drawings: Thejas
Contractor: Rahees
Structure Design: Deframez
Architects: 3dor Concepts
House of Ayoob by 3dor Concepts


















반응형