
영국의 토지 이용 계획(NPPF, National Planning Policy Framework)에 따라 국가 지정 명승지(AONB, Area of Outstanding Natural Beauty)로 지정된 링컨셔 월즈Lincolnshire Wolds에 새로 지은 주택이다. 이 집은, ‘채널4’ TV의 인기 프로그램 ‘Grand Designs: House of the Year 2021’, ‘RIBA Yorkshire Award 2021’ 등 여러 권위 있는 상을 수상했다.
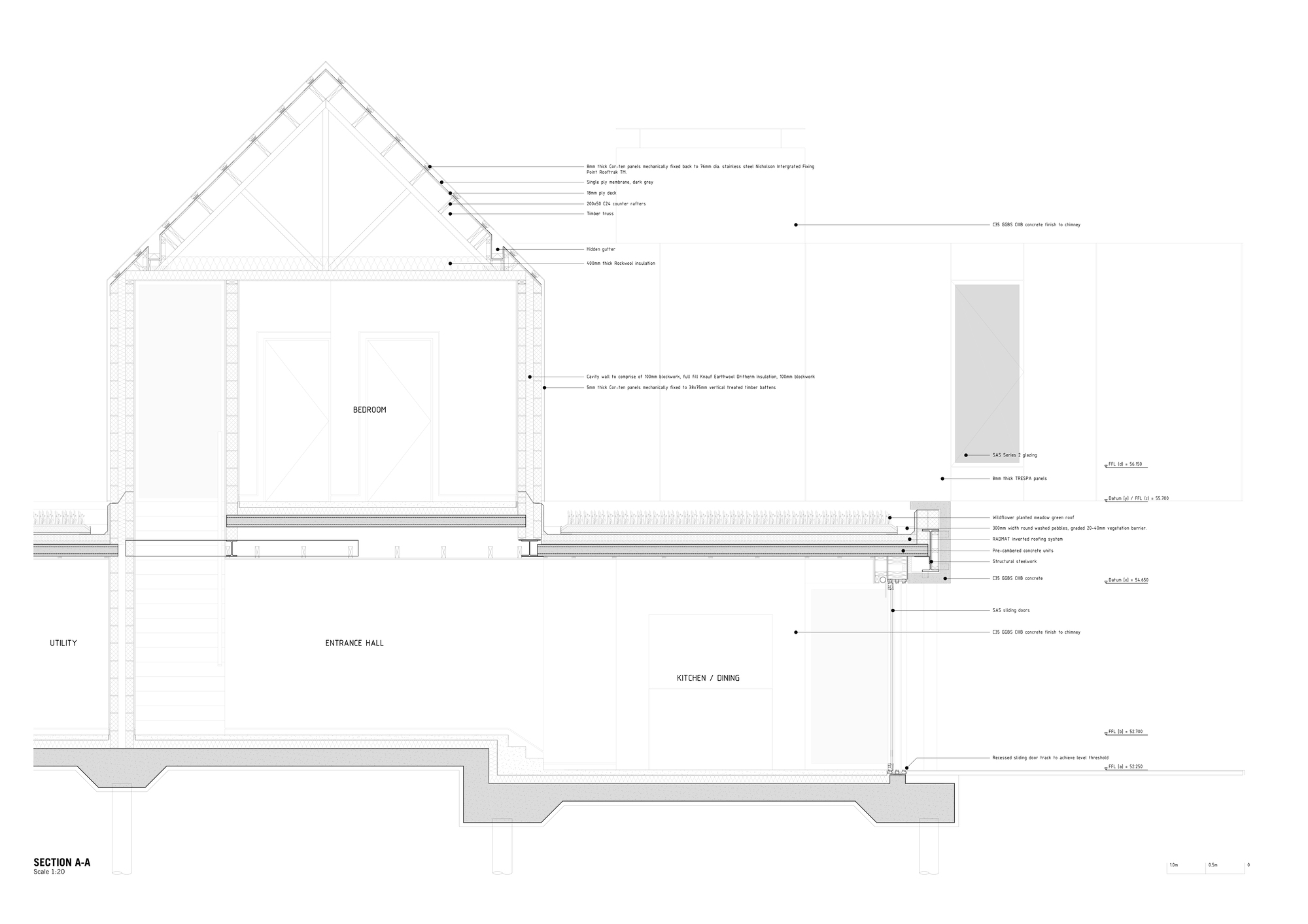
대규모 콘크리트 플랫폼 형태의 아래층 위에, 링컨셔의 전통 반 하우스 형태로 디자인된 위층이 올려진 건물의 길가 쪽 일부가 풀밭 언덕 안에 묻혀 있다.
들판 한가운데에 자리 잡은 이 집은, 부지 안에 있는 연못이 바라다보이도록 앉혀졌다. (실제는 큰 집이지만) 외관상 크기를 작게 만들고, 형태가 단순한 이 지역의 반 하우스를 닮도록 디테일하게 디자인되었으며, 내부는 링컨셔 월즈와 청동기 시대 고분(폭 30미터, 높이 3미터로 링컨셔에서 가장 큰 ‘원형 고분’ 중 하나)을 향한 탁 트인 전망을 즐길 수 있도록 계획되었다.
경관이 아름다운 명승지라는 점과 등록 기념물인 고분Barrow이 매우 가까이에 있기 때문에, 혁신적이고 탁월한 수준으로 디자인할 필요가 있었다고 한다.
‘2019 LABC National Building Excellence Awards’의 그랜드 파이널에서 1위 작품으로 선정되기도 한 이 건물에는, 아름다운 자연 경관과 청동기 고분이 있는 인상적인 전망을 향해, 18미터 길이의 슬라이딩 도어와 캔틸레버 구조의 마스터 침실이 설치되었다.
이 지역의 농업 미학을 충실히 따라 심플한 반 하우스 형태로 디자인된 위층 침실 영역은, 비바람에 노출되어 주황색에서 갈색으로 변하게 될 내후성 재료인 코르텐강으로 마감되었다.
건물을 언덕에 붙박아서 자연 지형과 일체를 이룬 다음, 아름다운 경관을 만끽할 수 있도록 공간이 계획되었다. 자연환경 속에 건물보다는 경관이 돋보이도록 심플한 형태로 짓는 데 그치지 않고, 심플하면서도 탄탄한 디테일로 채움으로써 디자인 수준을 한층 끌어올렸다는 평가를 받는 영국의 전원주택이다.
HOUSES • Hatcliffe, UNITED KINGDOM
Architects: ID Architecture
Area: 340 m²
Year: 2019
Photographs: Andy Haslam
Manufacturers: Trespa, Corten, Senior Architectural Systems, Bauder, GGBS concrete, Johnstones, LPD Doors
Mechanical & Electrical Engineering: eb7
Project Managment: Belvin Construction
Structural Engineering: GGP Consult
Barrow House (Wolds Barn) by ID Architecture































'House' 카테고리의 다른 글
| 달라도 너무 다른 겉과 속! 평지에 3차원 구조로 지은 집, House in Dumbrava Vlasiei by ADNBA (0) | 2022.01.21 |
|---|---|
| 가변성을 극대화한 실험 건축! 용도별로 블록화한 브루탈리즘 주택 (0) | 2022.01.20 |
| 겨울 정원 품은 집! 교사 유치를 위한 덴마크의 시골 학교 관사, House on the Hill by Arcgency (0) | 2022.01.18 |
| 느슨한 여유! 토박이 은퇴 부부의 트인 ㅁ-자형 주택, Seoidin Courtyard House by DUA (0) | 2022.01.17 |
| 아이폰도 울고 갈? 독특하고 매력적인 디자인의 인도 주택, House of Ayoob by 3dor Concepts (0) | 2022.01.14 |