
키가 10미터에 달하는 거목이 집 안에 있는 이탈리아 주택이다. 이탈리아 북부 시골 지역에 있는 2.5헥타르(약 7,560평)가 넘는 부지에 자리한 이 건물의 주인은, 유럽 최고의 토마토 관련 제품 생산업체 무띠Mutti의 CEO인 프란체스코 무띠Francesco Mutti이다.
이 프로젝트는, 건축, 자연 요소, 진보한 기술 솔루션을 하나로 융합한 바이오필릭 디자인 사례이다. 파르마Parma 시 외곽의 오래된 이탈리아 농가를 수리한 이 ‘Greenary(green+granary의 조어) Residence’에는, ‘인간의 마음과 유전자에, 자연에 대한 애착과 회귀 본능이 내재되어 있다’라고 하는 바이오필리아 가설을 제안한 에드워드 오스본 윌슨Edward Osborne Wilson(사회생물학의 창시자이자 하버드 교수)의 정신이 깃들어 있다.
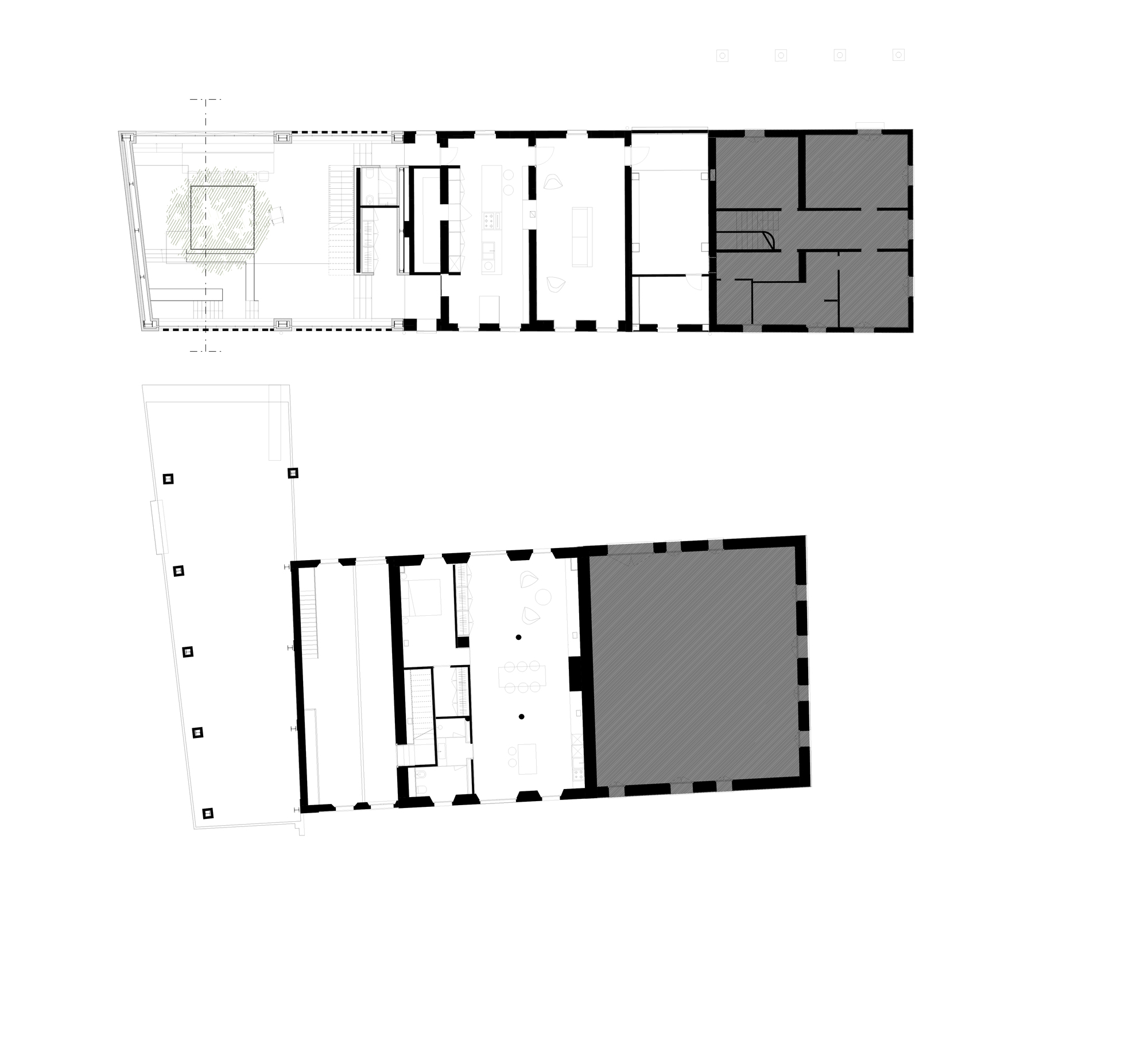
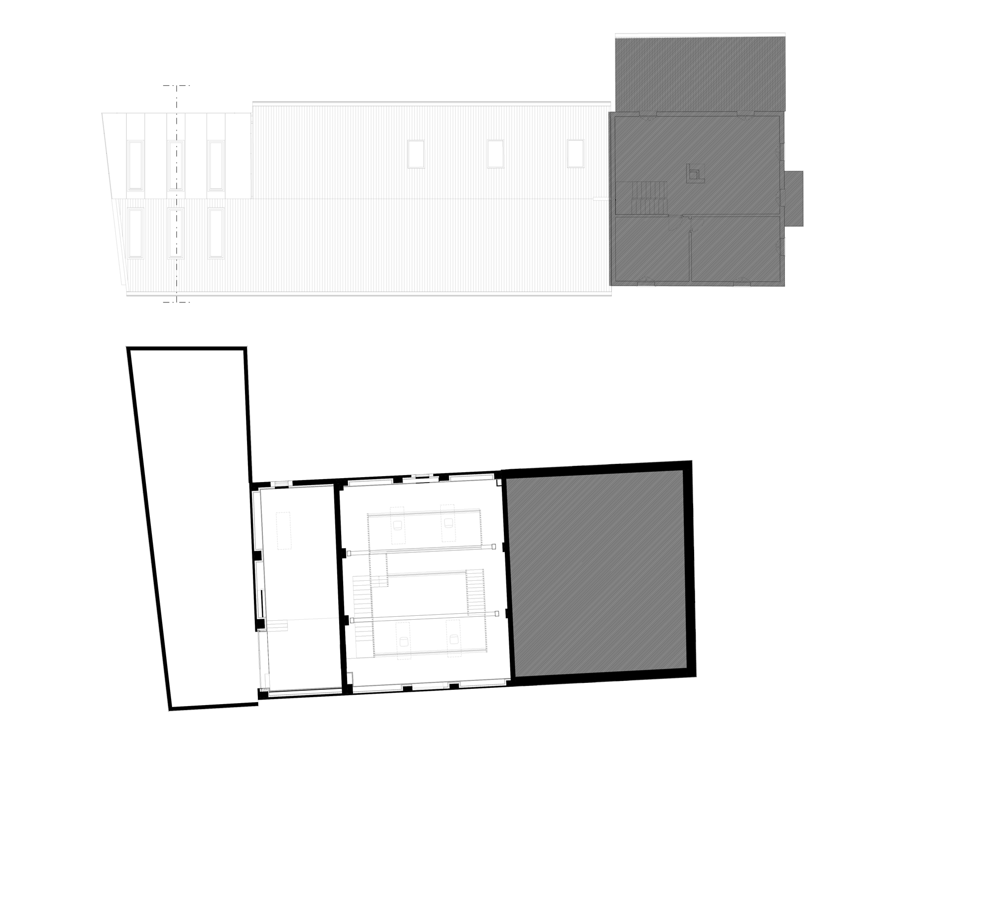
이 개념은, 거실 한복판에 서 있는 60년 된 Alma 무화과나무에 가장 잘 드러나 있다. Ficus Australis라는 종에 속하며, 일 년 내내 기온이 안정적인 곳에서 생육이 잘 되기 때문에, 최적의 조건이라 할 수 있는 실내 환경으로 조성을 했다고 한다.
나무가 번성할 수 있는 이상적인 환경을 조성하기 위해, 남측 파사드를 10미터 높이의 유리벽으로 만들어서 자연 채광 능력이 극대화되었다. 이 공간은, 기술과 미기후를 활용하여 온·습도를 제어함으로써, 나무와 거주자가 쾌적한 환경에서 공존할 수 있게 디자인되었다. 창문과 지붕이 모두 자동으로 열리고 닫혀서, 집으로 들어오는 햇빛과 신선한 공기의 양이 저절로 조절되는 시스템이다.
이 Greenary는 7개의 계단식 공간으로 이루어져 있다. 그중 3개는 입구 위에, 3개는 입구 아래에 위치한다. 자연을 중심으로 역동적이면서도 상호 연결된 이 공간들은, 20세기 건축가 아돌프 로스Adolf Loos의 라움플란Raumplan 개념을 재해석한 것이라고 한다.
“20세기 이탈리아 건축가 카를로 스카르파Carlo Scarpa는 ‘나무와 집 중에서 나무를 선택하라’고 말한 적이 있습니다. 그의 말뜻에 공감합니다. 그리고 한 걸음 더 나아가 그 두 가지를 모두 선택할 수도 있어야 한다고 생각합니다.” CRA의 공동 설립자이자 매사추세츠 공과대학교수인 Carlo Ratti의 설명이다. “우리 CRA는 대부분의 프로젝트에서, 자연과 인공을 교차시키는 데 중점을 둡니다. 이 Greenary를 통해서도, 자연과 그 리듬을 중심으로 새로운 가정 풍경과 환경을 구축하려고 노력했습니다.”
HOUSES • PARMA, ITALY
Architects: Carlo Ratti Associati
Year: 2021
Photographs: Delfino Sisto Legnani and Alessandro Saletta from DSL Studio
Lead Architect: Carlo Ratti
Creative Lead: Italo Rota
Partner In C: Andrea Cassi
Project Manager: Francesco Strocchio
Design Team: Alberto Benetti, Mario Daudo, Serena Giardina, Anna Morani, Gerolamo Gnecchi Ruscone, Giovanni Trogu, Matteo Zerbi
Agronomy Consultants: Flavio Pollano and Paolo Battistel (Ceres srl)
Authority Approval, Accouting, Health & Safety Lead:Aldo Trombi
Planning And Works Supervisor: AI Studio
Landscape Design: Paolo Pejrone with Alberto Fusari
Garden Cultivation: Arcadia Vivai Impianti
Mep Engineering: AI Studio
Facade: AI Studio
Construction Unit: AeC costruzioni
The Greenary by Carlo Ratti Associati

























'House' 카테고리의 다른 글
| 아이폰도 울고 갈? 독특하고 매력적인 디자인의 인도 주택, House of Ayoob by 3dor Concepts (0) | 2022.01.14 |
|---|---|
| 요구와 취향을 100% 담아낸 디자인 주택, PMC House by EXarchitects (0) | 2022.01.12 |
| 호숫가 언덕배기에 필로티 구조로 지은 뮤지션의 주거 겸 작업 공간, Villa Grieg by Saunders Architecture (0) | 2022.01.10 |
| 존재감 뿜뿜! 자체로 풍경이 된 경사지 캔틸레버 하우스, House in the Vineyards (0) | 2022.01.07 |
| 열길 속 구조가 겉으로 드러나 있는 브라질 단독주택, D06 House by Estúdio Ginga (0) | 2022.01.06 |