
테라스를 포함한 외부 전체를, 서로 어울리는 짙은 적색의 벽돌과 기와로 마감하여 일색을 이룬, 덴마크 오르후스의 단독주택이다. 이 집은, 4명의 자녀와 개 한 마리를 둔 부부의 집이다.
261제곱미터(약 79평) 규모의 이 건물 디자인은, CF Møller 건축사무소가 1931년 설계한 인근의 오르후스 대학교 건물에서 영감을 가져온 것으로, 박공지붕과 투박한 색상의 재료를 적용한 것이 특징이다.
“디자인 목표는, 단순한 형태에 현지에서 나는 솔직한 건축 재료를 사용한 오르후스 대학교 건물을 재현하는 것이었습니다.” 설계를 한 건축가 Klaus Toustrup의 설명이다. “건축주 부부가, 시간이 지나도 유행을 타지 않는 오르후스 대학교 건물을 자신들이 지을 집의 모델로 제시했습니다.”
부부는, 고전적인 벽돌 건물을 매우 좋아하고, 주변 환경과 잘 어울리는 디자인을 원했다고 한다. 이 집은, 서로 겹치는 4개의 박공 볼륨으로 구성되어 있다. 그중 2개는 남북으로, 나머지 2개는 동서로 뻗어 있다.
손으로 칠을 한 기와로 전체 건물의 외벽과 지붕을 덮었다. 다양한 음영을 가진 빨간색 기와가, 두 군데 입구의 벽돌 계단이나 일련의 외부 테라스와 조화를 이룬다. 벽돌은, 내부의 벽과 바닥 일부에도 사용되었다.
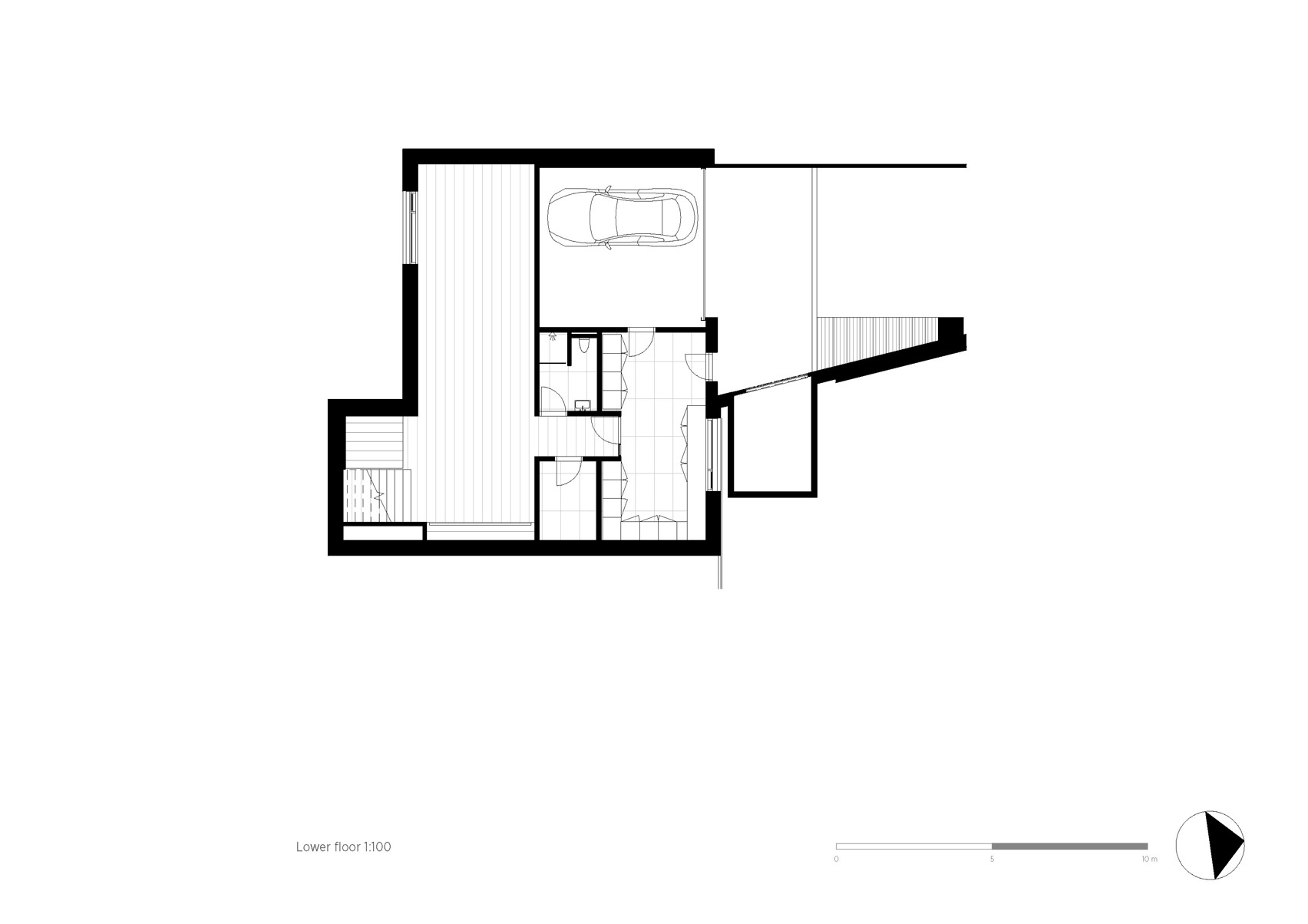
건물을 4개 블록으로 나누어서, 경사진 부지 상황에 맞게 스플릿 레벨 구조로 만들었다. “가장 큰 어려움은, 구릉지와 자연스럽게 어울리게 디자인을 하는 것이었습니다.” Toustrup의 설명이다. “건물을, 서로 연결된 ‘4채의 작은 집’으로 나눈 이 콘셉트 덕분에, 어려움에 직면했던 디자인에 대한 솔루션을 찾은 동시에 자연스럽게 가족별, 용도별로 구역화를 이룰 수 있었습니다.”
대부분의 공간은 1층에 들어 있다. 남향의 주방 겸 식당이 집 가운데에 위치하고, 그 주변으로 5개의 침실과 거실이 배치되었다. 지하층에는, 차고와 함께 다용도 공간과 취미실이 갖추어졌다.
채광을 위해 다양한 장치가 추가되었다. 여기에는, 박공 전체에 유리를 적용한 거실 창, 주방 위의 곡면형 채광정, 계단 위의 좁은 천창 등이 포함된다. 이곳의 계단은, 지하층까지 빛이 투과되도록 챌판을 없앤 개방형으로 설치되었다.
전체 바닥에는, 헤링본 패턴으로 오크 바닥재가 깔렸다. 그리고 욕실에는, 온기가 느껴지는 벽돌이나 목재와 대조를 이루는 천연 그레이 스톤이 사용되었다.
Architects: CF Møller Architects
Location: Aarhus, Denmark
Area: 261 m2
Contractor: Jakob Tømrerfirma
Engineer: Tri-Consult
Suppliers: Petersen Tegl, Krone Vinduer
Photography is by Julian Weyer
Villa E by CF Møller Architects






































