
목재와 강재로 이루어진 추상적 이미지의 파사드를 특징으로 설계하여, 시드니 서쪽 블루 마운틴 안에 있는 마을인 블랙히스Blackheath, 그중에서도 녹음이 우거진 골목 가장자리에 있는 좁고 긴 대지에 지은 주택이다.
전원주택에 많이 사용하는 골 강판을 적용하여 현대적인 산업 미학을 더했고, 덩굴 식물이 타고 올라가서 건물과 이웃 풍경 사이가 맞물리도록 아연 도금한 철망을 설치했다.
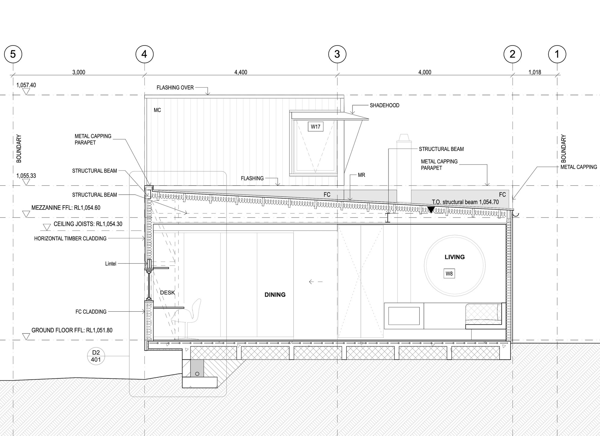
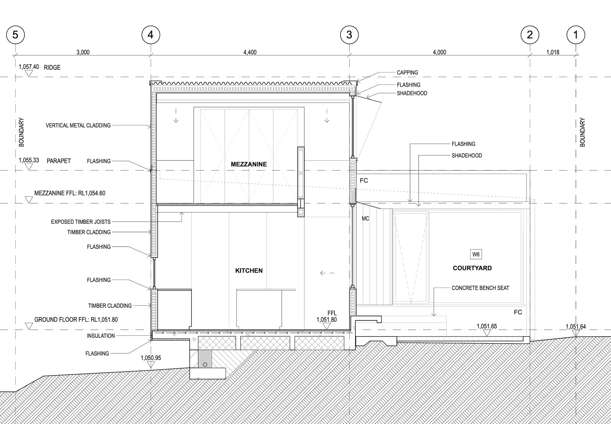
건물로 가려진 중정과 식물로 가려질 테라스는, 내부 공간과 정원 사이를 매개하는 역할을 한다. 이들 중정과 테라스는, 한여름에는 그늘진 휴식처를 제공하는 동시에, 추운 계절에는 충분한 자연광이 유입되는 통로 역할도 한다.
온수 바닥 난방 시스템이 들어 있는 이중 단열 콘크리트 슬래브로 견고한 기초를 이루었고, 동측 파사드를 그 기초 옹벽 바깥으로 돌출시켜서, 이 골목에 적용되는 건축선에 정렬시켰다.
애쉬 목재, 짙은 회색 골 강판, 페인트칠을 한 섬유 시멘트 보드 등으로 마감된 골목 측 입면은, 시간이 지남에 따라 목재 색이 바래고, 철망으로는 덩굴 식물이 타고 올라가서 테라스를 가리게 될 것이다.
한편, 주변 숲에서 가져온 녹색, 회색 등 차분한 색조를 사용하여 사색적인 분위기로 공간이 인테리어 되었다.
HOUSES • BLACKHEATH, AUSTRALIA
Architects: Pearson Architecture
Area: 140 m²
Year: 2020
Photographs: Tom Ferguson Photography
Manufacturers: Colorbond, Rylock, Amuheat, Heka Hoods, Radial Timbers
Builder: Northcote Constructions
structural Engineer: Starc Engineering
Project Architect: Pilar Lopez
Architects: Pearson Architecture
BLACKHEATH by Pearson Architecture



























