
스페인 남부 소도시 푸엔테 헤닐Puente Genil, 그중에서도 새로 개발된 지형이 고르지 않은 대지에 지은 주택이다.
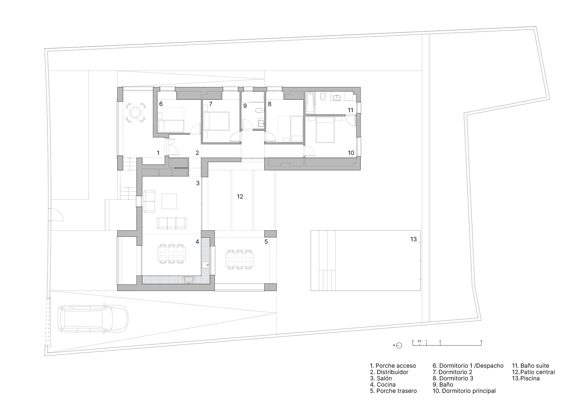
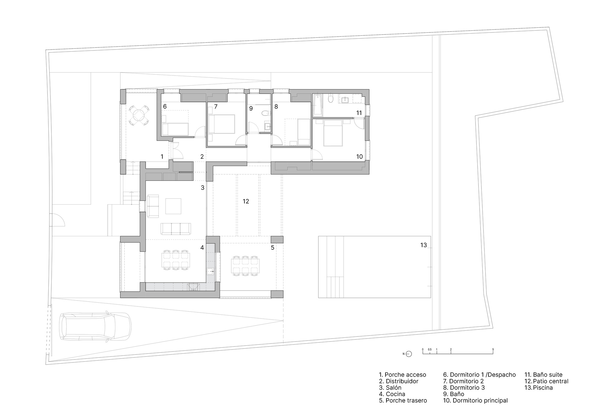
설계의 주요 전제는, 단층으로 소요 공간 해결, 대지의 불균일성 완화, 그리고 남쪽인 집 뒤편에 수영장 배치 등이었다고 한다. 이 전제에 따라, 바닥이 도로보다 2미터 높은 플랫폼 형태로 만들어졌다.
건물은, 정사각형 모양의 파티오를 중심으로 배치된 세 개의 볼륨으로 이루어졌다. 첫 번째 볼륨에, 포치, 현관 홀, 침실, 욕실 등이 들어있다. 그리고 다른 두 개의 볼륨에, 거실 등 공용 공간이 배치되었다.
거실 영역이, 침실 영역 및 수영장과 밀접하게 연결된 구조이다. 침실 영역에는, 4개의 침실과 두 개의 욕실이 갖추어졌다. 그중 공용 욕실은 외부 수영장에서도 쉽게 사용할 수 있게 배치되었다. 그리고 입구 쪽에 위치한 침실 하나는 오피스로도 사용할 수 있게 만들어졌다.
HOUSES • PUENTE GENIL, SPAIN
Architects : Serra Norte Arquitectos
Area : 160 m²
Year : 2022
Photographs : Manolo Espaliú
Manufacturers : Strugal, BMI Cobert, Grupo PAMESA, Ineslam, JACOB DELAFON, Ramon Soler
Lead Architects : Irene Serrano Cabello, José Ángel Rey Torrecillas
Technical Architect : José Ángel Rey Jiménez
Structural Design : SALMER TÉCNICOS
SL64 House by Serra Norte Arquitectos















