
경사지에 캔틸레버 구조로 지은 콘크리트 주택
이 집은, 더 나은 삶의 질을 추구하는 사람들로 하여금 복잡한 도시에서 시골로 이주하려는 욕구를 불러일으킨 코로나 팬데믹에 대한 가시적인 대응의 결과이다.
“이 집의 건축주는, 미니멀리즘 운동의 미적 감각과 기획 방식에 공감하는 사람입니다.” 설계를 한 Vélez Valencia Arquitectos 측의 설명이다. “그래서 이 프로젝트의 디자인에 단순성과 명확성을 핵심 개념으로 적용했습니다.”
“믿을 수 없을 정도로 무성한 환경과 탁 트인 전망을 갖춘 대지가 우리에게 매우 특별한 주택을 설계할 수 있는 기회를 제공했지만, 건축주가 대부분의 공간을 한 층에 두고 싶다고 해서, 원래 의도와 다른 설계를 해야 하는 어려움이 발생했습니다.” 이 역시 설계팀의 설명이다. “우리 팀(건축가와 구조 엔지니어)의 대응은, 건축주의 요구를 충족하면서도 아름다운 전망을 최대한 활용할 수 있도록, 대형 캔틸레버 구조를 도입하는 것이었습니다.”
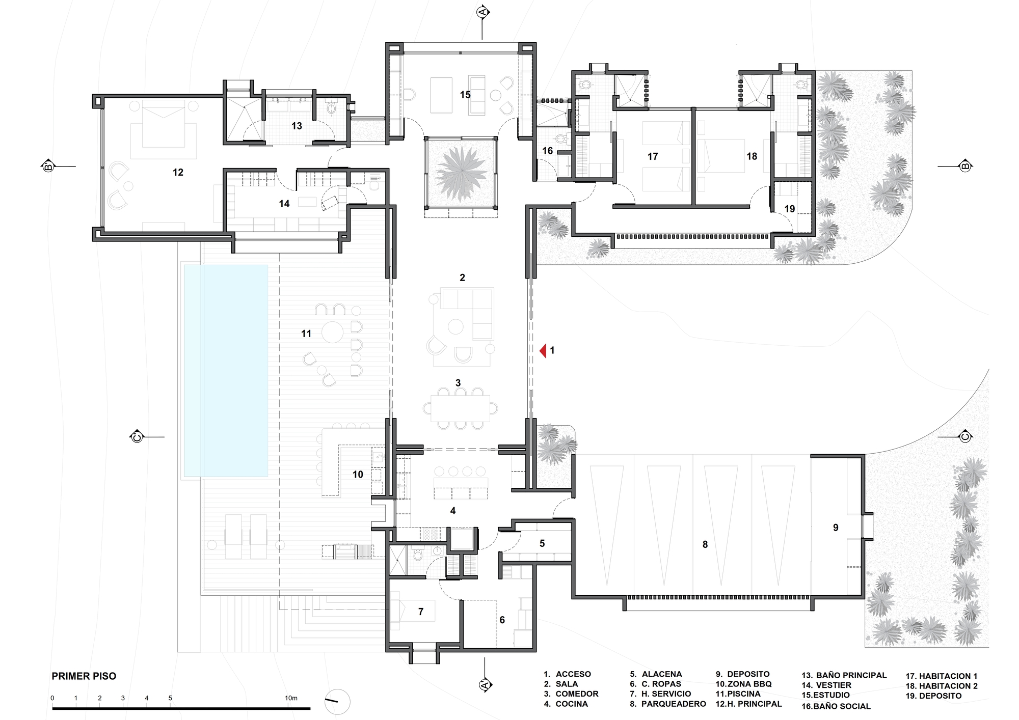
이 집은, 용도에 따라 층고가 달라지는 일련의 단순한 직사각형 볼륨들로 이루어졌다. 현지의 온화한 기후와 어울리게, 대부분의 엔터테인먼트 공간이 수영장을 따라 캐노피 아래에 배치되었다.
이 집에는, 태양광 패널을 통한 발전, 화장실과 정원용 빗물 활용, 맞통풍 구조 등 일련의 지속 가능한 전략들이 적용되었다. 특히 거실에 맞통풍 구조로 대형 문을 설치하여 에어컨 사용을 최소화했다.
“건축주가 미학적으로 콘크리트 친화적이어서 마감 색상을 단순화할 수 있었습니다.” 설계팀의 설명이다. “욕실을 포함한 대부분 공간의 벽과 바닥에 콘크리트를 사용하여, 평온하면서도 통일성이 느껴지게 했습니다.”
CASAS • Malabar, PEREIRA, Risaralda, COLOMBIA
Arquitectos : Vélez Valencia Arquitectos
Área : 440 m²
Año : 2022
Fotografías : Yeferson Bernal
Proveedores : Areas y Diseños, Corona, GRAMAR
Coordinador De Proyecto : Claudia González
Equipo De Trabajo : Daniel Valencia, Camilo Jaramillo, Ana Osorio, Sebastian Betancourt, Yeferson Bernal
Diseño Estructural : Guillermo Ramírez Cattaneo
Casa DV by Vélez Valencia Arquitectos

























'House' 카테고리의 다른 글
| 스플릿 레벨 구조의 경사지 주택, Casa Quintana I by MXTAD (1) | 2023.04.06 |
|---|---|
| ‘빈 공간’으로 여유와 쓸모를 배가한 열대 주거, Floating House in Thu Duc by Sanuki Daisuke architects (0) | 2023.04.05 |
| 교량 구조로 지은 경사지 주택, Cañada House by Escobedo Soliz (0) | 2023.03.31 |
| 미니멀 디자인의 글라스 하우스, Casa Annunziata by Specht Architects (0) | 2023.03.30 |
| 창고형 주택을 재해석한 대각 박공 주택, Ridge House by Estudio Diagonal Architects (0) | 2023.03.29 |