
‘빈 공간’으로 여유와 쓸모를 배가한 열대 주거
A Mostly Outdoor House = Designing the Blank - 쓸모 있는 빈 공간을 많이 확보한, 호치민시 투득Thủ Đức 군에 위치한 젊은 부부의 집이다.
열대 식물이 무성한 동네인데 인근 강의 범람으로 종종 물이 차는 환경을 가지고 있다. 그래서 주변의 건물들이 모두 도로보다 80cm 이상 높게 지어졌다. 건축주의 요구 중 하나는, 1층을 도로 보다 1m 높게 지어달라는 것이었다고 한다. 동시에 대지와 주변 환경의 장점을 적극 활용하기 위해, 자연과 더 가까워질 수 있도록 인근 강과 정원을 향해 열린 구조로 계획해야 했다.
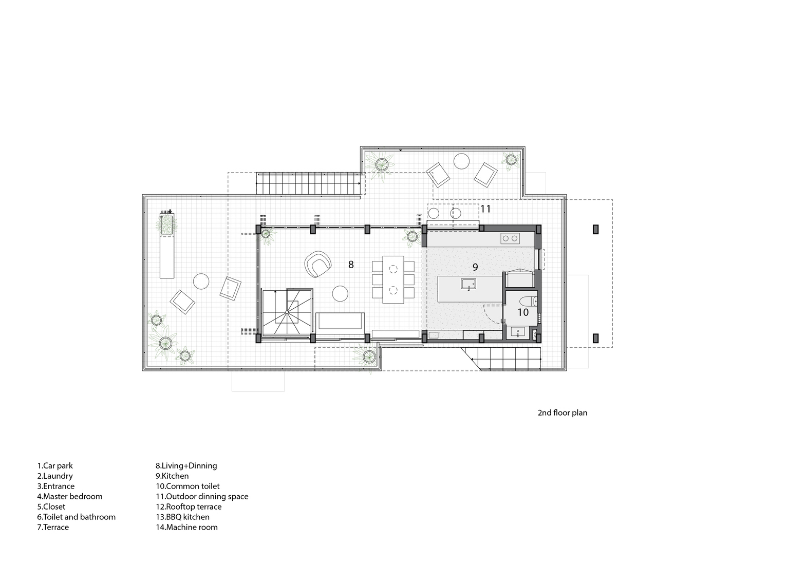
이 집은, 지면 위에 떠 있는 세 개의 슬래브로 이루어졌다. 슬래브들은, 모양이 제각각이다. 슬래브와 슬래브 사이에 다양한 실내 및 실외 공간들이 만들어졌다. 각 슬래브는 정원을 향해 여러 방향으로 캔틸레버 식으로 연장되어, 테라스 또는 야외 공간, 개구부를 위한 처마, 야외 계단을 덮는 지붕 등의 역할을 한다. 내부 계단과 외부 계단을 통해 옥상을 포함한 모든 공간이 하나로 연결되었다.
기존의 베트남식 콘크리트 골조 공법이 재해석되었다. 일정한 간격의 빔과 바닥판으로 이루어진 리브 슬래브를 이용하여 바닥을 캔틸레버식으로 확장하고 가느다란 기둥으로 지지하는 구조이다. 기둥의 최소 치수 300 x 150mm, 2층 빔 너비 150mm로 작업하여, 슬래브 두께가 매우 얇아 보이도록 했다. 그 결과 내부와 외부가 연속적인 동시에 슬래브가 주변 위에 떠 있는 것처럼 보이는 경량 디자인이 탄생되었다.
옥상을 포함하면, 이 집 바닥의 거의 70%가 옥외 공간이다. 여기에 폴딩 도어를 열면 욕실이 들어있는 박스를 제외한 거의 전부가 옥외 공간이 된다. 더운 날에는 사방으로 바람이 통한다. 비가 오면 기화에 의해 순간적으로 공기 냉각이 이루어진다.
“사람과 사물을 포함하여 모든 것이 빽빽하게 들어차있는 베트남에서는 ‘빈 공간’ 역할을 하는 야외 공간을 필수적으로 확보해야 한다고 생각합니다.” 설계팀의 설명이다. “새로운 프레임과 구조 설계로 그 ‘여백’을 넉넉하게 확보하여, 활동적인 야외 생활이 가능하도록 만든 열대 주거입니다.”
HOUSES • Thủ Đức, Ho Chi Minh, VIETNAM
Architects : Sanuki Daisuke architects
Area : 325 m²
Year : 2022
Photographs : Hiroyuki Oki
Manufacturers : Toto
Lead Architect : Sanuki Daisuke
Structure Design : THANH CONG CONSTRUCTION DESIGN COMPANY LIMITED
ME Engineer : HUNG VIET TST CORP
Contractor : COPPHA BUILDERS CONSTRUCTION CO., LTD
Architect : Nguyen Huynh Bao Ngoc
Floating House in Thu Duc by Sanuki Daisuke architects






































'House' 카테고리의 다른 글
| 밝고 생기 있게 리노베이션한 100년 가옥, Playter Estates Reinvention by ASQUITH Architecture (0) | 2023.04.07 |
|---|---|
| 스플릿 레벨 구조의 경사지 주택, Casa Quintana I by MXTAD (1) | 2023.04.06 |
| 경사지에 캔틸레버 구조로 지은 콘크리트 주택, Casa DV by Vélez Valencia Arquitectos (0) | 2023.04.04 |
| 교량 구조로 지은 경사지 주택, Cañada House by Escobedo Soliz (0) | 2023.03.31 |
| 미니멀 디자인의 글라스 하우스, Casa Annunziata by Specht Architects (0) | 2023.03.30 |