
밝고 생기 있게 리노베이션한 100년 가옥
더 많은 공간을 필요로 한 5명의 젊은 가족이, 100년 이상 된 자신들의 구옥을 리노베이션한 사례이다. 더 많은 침실과 욕실 공간 외에도, 가족들은 자신들이 좋아하는 요리를 마음껏 할 수 있고 집의 중심 역할을 할 주방에 대한 관심이 컸다고 한다.
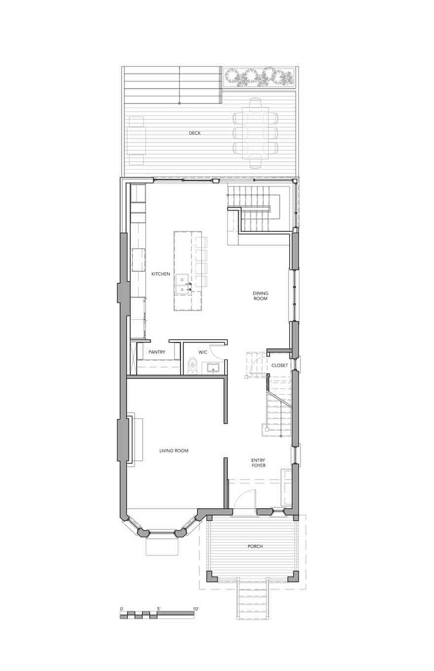
토론토 플레이터 에스테이츠Playter Estates에 위치한 기존의 이 2층 벽돌집은, 어둡고 외부와 거의 연결되지 않은 채 폐쇄 구조를 하고 있었다고 한다. 작은 공간, 작은 창문, 그리고 짙게 얼룩진 나무로 가득 차 있어서, 채광과 조망 환경을 개선할 필요가 있었다.
집 뒤편으로 두 층에 걸친 증축이 이루어졌다. 1층 주방이, 식사 공간을 포함하는 넓고 개방된 공간으로 확장되었다. 이 주방에는, 야외 식사 및 휴식 공간으로 사용할 수 있는 대형 데크가 딸려 있다.
밝은 색상의 주방이 이 집의 중심 허브 공간이다. 오렌지색과 노란색으로 강조된 청록색 수납장과 빌트인 가전제품을 배경으로, 주방 중앙에 대형 아일랜드가 설치되었다. 주황색 문 뒤에 팬트리 공간이 숨겨져 있다. 무겁고 어두웠던 기존 주택의 분위기와 달리, 밝은 흰색을 배경으로 생기 있는 색상으로 인테리어되었다.
바닥을 비롯한 주방과 식사 공간 전체에 따뜻한 오크 목재가 광범위하게 사용되었다. 전면 입구를 트인 구조로 바꾸기는 했지만, 기존 계단과 일부 전통적인 목재 디테일들은 유지되었다.
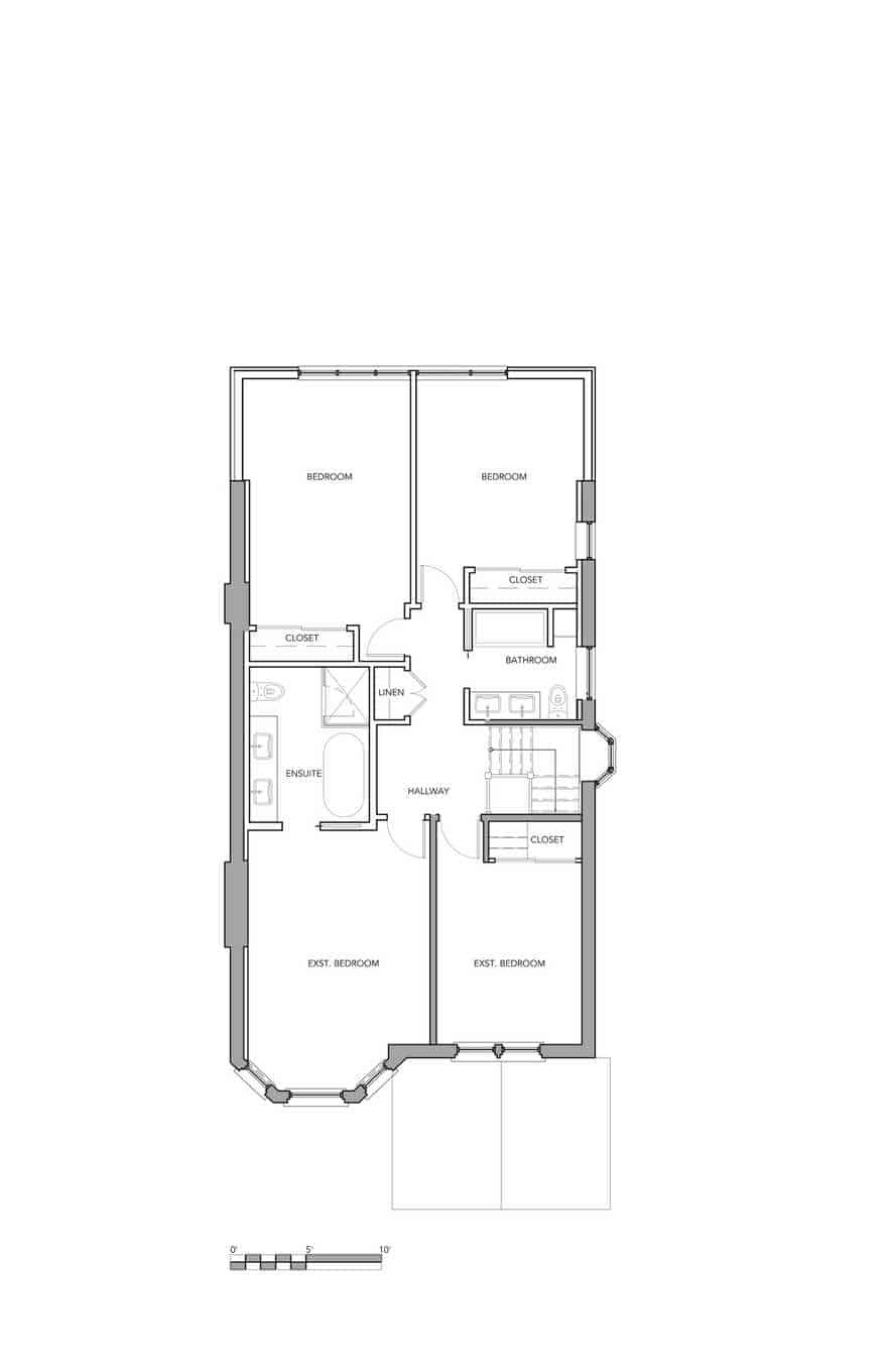
확장 재구성을 한 2층에는, 침실과 욕실들이 넉넉하게 갖추어졌다. 욕실에는, 다양한 컬러의 타일들이 사용되었다. 특히 자녀들이 사용하는 2층 공용 욕실의 화려한 색상이 인상적이다. 세면대 아래 서랍장과 설비에 사용된 청록색, 노란색 벽면 타일, 그리고 흰색의 애니메이션 바닥 타일 등이 조화를 이룬다.
후면 파사드는, 바닥부터 천장까지 닿는 창으로 처리되었다. 이 창을 통해 들어온 자연광이 주방을 채운 다음, 새로 설치한 계단을 통해 지하실로 유입된다. 기존 주택의 지하층 바닥을 낮추어서 가족실 겸 놀이방 역할을 하는 높고 채광이 잘 되는 공간으로 만들었다.
지하 놀이 공간에는, 새로 설치된 계단 아래 공간을 활용한, 비밀스런 은신처가 마련되기도 했다. 여기에 다채로운 카펫 타일과 가구로 놀이 공간을 밝고 환하게 완성했다.
증축 부분의 외부는, 내부의 색상 테마를 외부로 확장하기 위해, 어두운 목재 사이딩으로 마감을 한 다음 이와 대비되는 주황색 스테인드 삼나무로 포인트를 주었다.
Architects : ASQUITH Architecture
Interior Design : Julie Reinhart Design
Location : Toronto , Canada
Project size : 3000 ft2
Completion date : 2020
Construction : SevernWoods Fine Homes
Structural Engineer : Blackwell Engineering
Photography : Nanne Springer
Playter Estates Reinvention by Julie Reinhart Design and ASQUITH Architecture


























'House' 카테고리의 다른 글
| 불규칙 지형에 최적화한 개성 만점 주택, TOMM House by mauricio Alonso. m arquitecturA (0) | 2023.04.11 |
|---|---|
| 코어형 중정 주택, The Core Court House by TRAANSPACE (0) | 2023.04.10 |
| 스플릿 레벨 구조의 경사지 주택, Casa Quintana I by MXTAD (1) | 2023.04.06 |
| ‘빈 공간’으로 여유와 쓸모를 배가한 열대 주거, Floating House in Thu Duc by Sanuki Daisuke architects (0) | 2023.04.05 |
| 경사지에 캔틸레버 구조로 지은 콘크리트 주택, Casa DV by Vélez Valencia Arquitectos (0) | 2023.04.04 |