
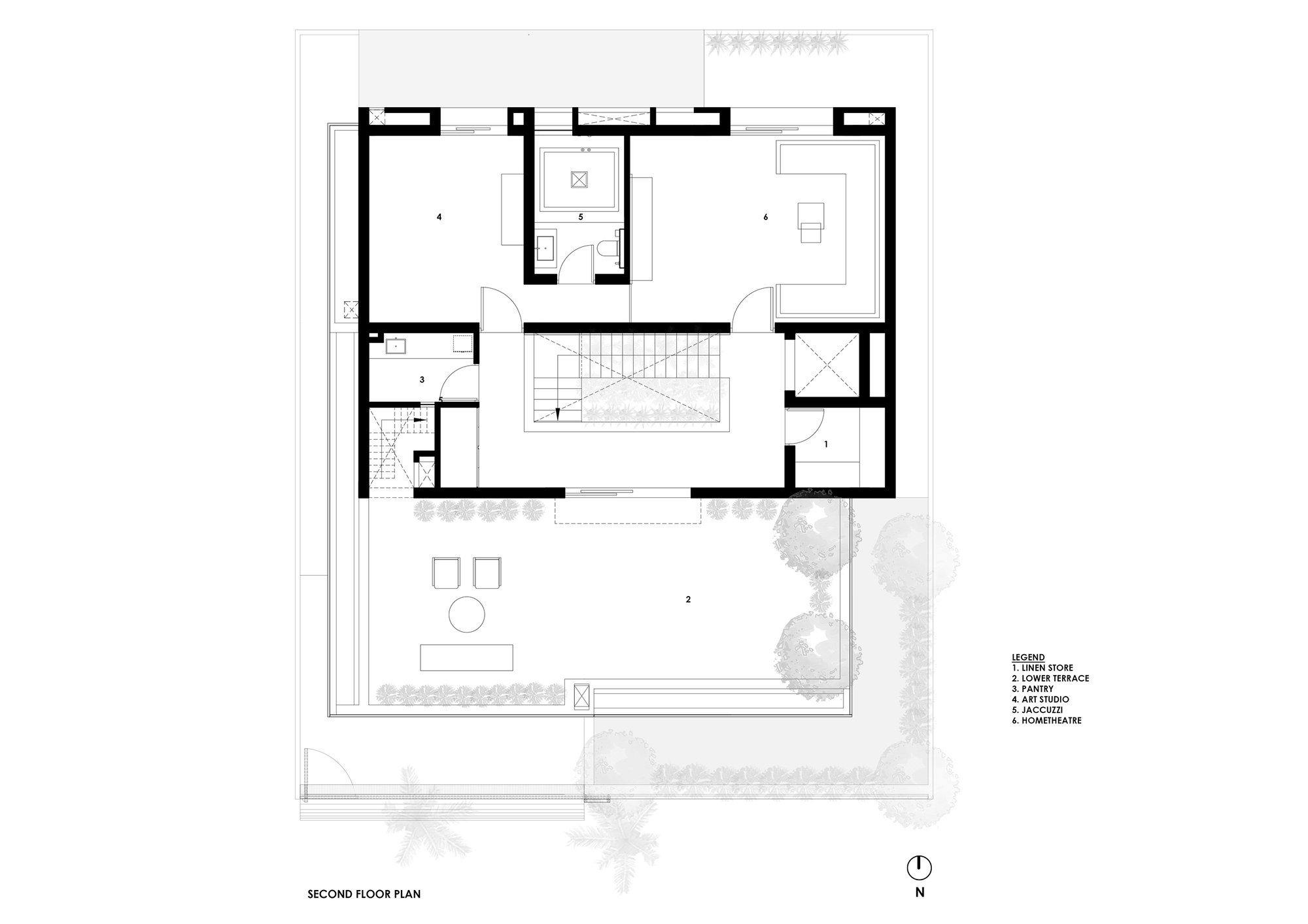
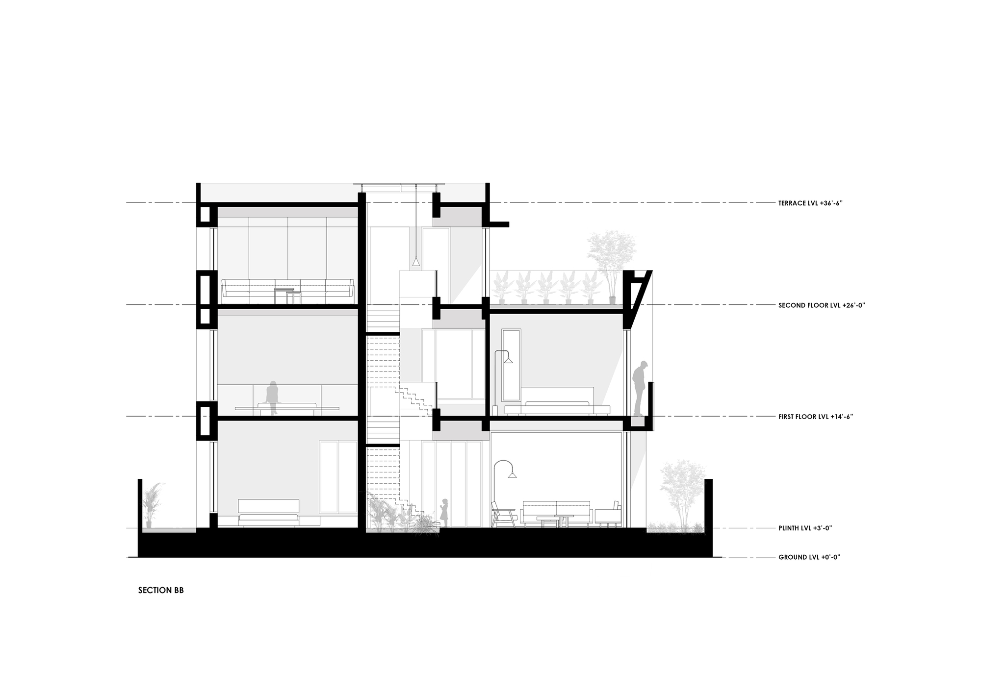
세 개 층 전체를 수직적으로 관통하는 아트리움이자 계단을 포함한 중정을, 집의 중심부에 배치한 코어형 중정 주택이다.
As the name suggests, the house is developed around an introspective courtyard, creating a core space that casts interesting multi-level interactions with the adjoining spaces. This courtyard is the soul of an otherwise simple house.
Situated on a 2900 sq. ft. plot of a gated community in Vadodara, the context of the site as one can easily imagine did not provide much of an interesting canvas. So we decided to create one for our clients. Being mindful of the plot size, we restrained from investing a lot of space on something elemental and compromising on the client’s requirements. We rather wanted to generate something from within. So, as one can see, we carved the courtyard centrally in the plan and designed a staircase around it. The light penetrating from the skylight and the lush green plantation in the court together add life to the house helping us create enlivening spaces around it.
The planning is rather simple with the living, dining, kitchen, and one bedroom on the ground floor surrounding the core court. Three bedrooms on the first floor with a connecting passage overlooking the courtyard and a home theatre, art studio, and terrace on the second floor with a similar passage as the first floor, overlooking the courtyard.
The massing is a floating brick box. Instead of going with the ordinary brick bond, we chose to use a horizontal stack bond to grasp that striking plainness. Planters and balconies are carved out in the south and west directions to act as buffers for the internal spaces. This greenery curtain breaks the solidity of the façade. The concept of oblique concrete bands was then introduced to add some uniqueness, as well as to further create curiosity and interest for what dwells inside.
The interior is a play of three materials – grey flooring, white walls, and wooden furniture. The furniture is either built-in or very minimal, but at the same time is in sync with the unflinching solidity of the outside. An attempt is made to wholly and solely maintain the importance of the courtyard rather than shifting it to fancy elements.
The staircase rising against the only brick wall inside the house, though simple, adds an elemental tranquillity. The skylight above it cast whimsical sciography on the brick wall. The play of these shadows along with the core court at its base keeps the house dramatic throughout the day. To sum it up, this house appears to be a simple, ordinary house to a common man. It is the resident, who on experiencing life day after day, experiences its extra-ordinary character.
HOUSES, DETAIL • VADODARA, INDIA
Architects : TRAANSPACE
Area : 4500 ft²
Year : 2022
Photographs : Tejas Shah
Manufacturers : Grohe, American Standard, Exposed concrete rendering, Gio Lights by Lightwave Solutions, Jai Jalaram Bricks, Vectra Windows by Sahaj Engineering
Lead Architects : Urvi Shah
Structure Consultant : SVN Consultants
Design Team : Kunjal Shah, Naimisha Desai, Nikita Bhatt
Plumbing Consultant : Krupalu Consultants
Electrical Consultant : MSP Consultants
The Core Court House by TRAANSPACE



























'House' 카테고리의 다른 글
| 어느 것이 창? 액자창에 풍경 담은 건축가의 집, Highgrove House (0) | 2023.04.12 |
|---|---|
| 불규칙 지형에 최적화한 개성 만점 주택, TOMM House by mauricio Alonso. m arquitecturA (0) | 2023.04.11 |
| 밝고 생기 있게 리노베이션한 100년 가옥, Playter Estates Reinvention by ASQUITH Architecture (0) | 2023.04.07 |
| 스플릿 레벨 구조의 경사지 주택, Casa Quintana I by MXTAD (1) | 2023.04.06 |
| ‘빈 공간’으로 여유와 쓸모를 배가한 열대 주거, Floating House in Thu Duc by Sanuki Daisuke architects (0) | 2023.04.05 |