
한쪽은 숲 다른 한쪽은 들판! 풍경화 걸듯 창을 낸 전원주택
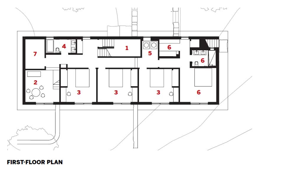
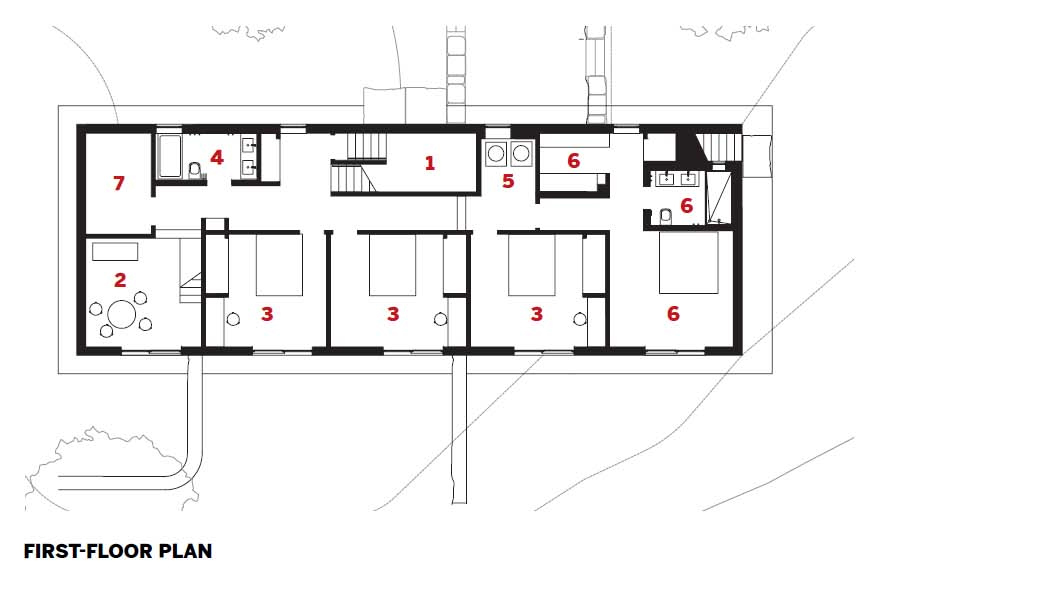
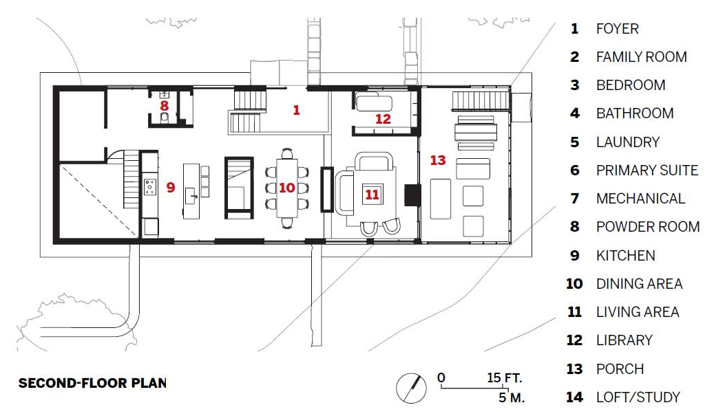
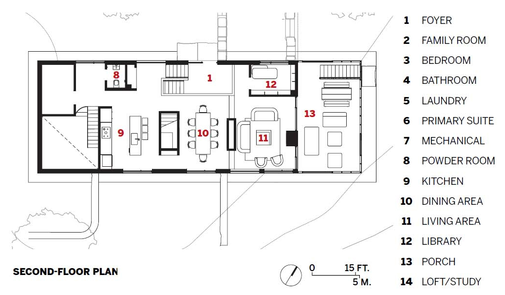
앞뒤로 무질서하게 분산 설치한 창을 통해 풍경과 연결된 전원주택이다. 뉴욕 주 더치스 카운티의 언덕에 지은 ‘숲과 들판 사이의 집’이라는 이름의 이 주택의 콘셉트는 주변 환경과 지형에서 가져왔고, 공간 구조는 대지와의 일상적 접촉에 초점이 맞춰졌다.
이 집은, 콘크리트 슬래브 위에 전통 목재 스터드 구조로 지어졌다. 외벽체뿐만 아니라, 내부의 코어들도 구조적인 안정성을 유지하는 데 일조한다. 합판으로 마감된 나무줄기 모양의 이 볼륨(코어)들은, 마치 숲의 지면에서 자라난 나무줄기들처럼, 광택이 나는 콘크리트 바닥으로부터 추상적인 흰색 공간으로 솟아나 있다.
이렇게 외벽체 외에 중간에도 여러 군데를 지지구조로 만든 결과, 지붕을 두껍게 만들지 않아도 구조적으로 안정화되었다. 또 지열 에너지를 사용하기 때문에 추가적인 에너지 장치나 구조물이 필요 없어서 지붕 아래 천장을 깔끔한 상태로 유지할 수 있게 되었다.
내부 공간을 외부로 확장해서 쓸 수 있도록 지붕을 설치한 포치는, 레인 스크린을 연장 설치하여 내부 공간처럼 보이게 만들기도 했다.
“집의 형태와 재료에 지역 건축 요소를 반영하여, 뉴욕 북부의 농업용 건축물을 재해석하였습니다.” 디자인팀의 설명이다. “그리고 내부의 볼륨, 디테일, 비율 등을 추상화하여 집을 둘러싼 숲이나 들판과 조화를 이루었습니다.”
designer: nARCHITECTS | @narchitects_pllc
location: NY, US
photography: Michael Moran | @mmoranphoto
House Between Forest and Field by nARCHITECTS















'House' 카테고리의 다른 글
| 향수를 불러일으키게 지은 현대식 전원주택, VIPA Farm House by Studio One By Zero (0) | 2023.05.30 |
|---|---|
| 공간 구조가 독특하게 계획된 홀리데이 홈, Dune House by BNLA Architecten (0) | 2023.05.10 |
| 스킵 플로어 구조로 지은 경사지 주택, House in Bonlez by LRARCHITECTES (1) | 2023.05.02 |
| 다용도 별채, Bush Studio by Dane Taylor Design (0) | 2023.04.27 |
| 수도원? 강도 얼씬 못하게 지은 집, House with No Name by HW Studio (0) | 2023.04.26 |