
판스워스 하우스Farnsworth House 등 미스 반 데어 로에Mies van der Rohe의 건축에서 영감을 가져와서 디자인을 한, 영국 글로스터셔Gloucestershire 주의 유리 파사드 주택이다.
이 주택은, 부동산 사업가인 John Hitchcox(부동산 개발회사 YOO의 설립자)와 유명한 디자이너 Philippe Starck가 비전을 공유하고 코츠월드Cotswolds District에 263헥타르(약 80만 평) 규모로 개발한 현대적인 휴양지 개념의 주거단지인 ‘The Lakes by Yoo’ 안에 위치한다. YOO가 지난 15년 동안 개발을 진행해온 ‘The Lakes by Yoo’는 원래 폐기된 채석장이었다고 한다.
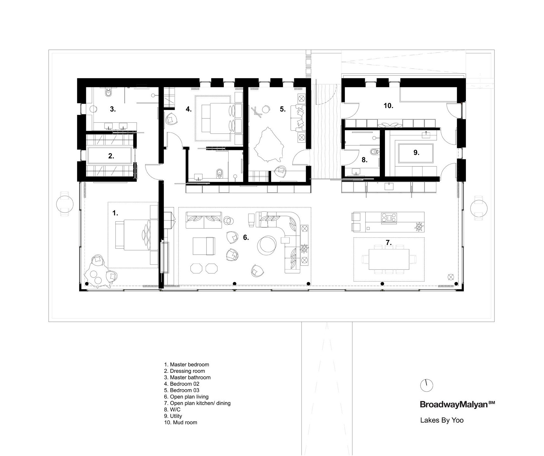
미스 반 데어 로에 및 기타 모더니스트 건축가들이 설계한 주택들 느낌이 나는 집을 지어달라면서, 건축주가 Broadway Malyan에게 설계를 의뢰했다고 한다. 이 집은, 미래에 건축주 부부가 나이 들어서도 편하게 생활할 수 있도록 단층으로 지어졌다.
호숫가가 아닌 숲속에 부지가 위치하기 때문에 프라이버시에 대한 걱정이 없어서, 파사드에 유리가 광범위하게 적용되었다. 바닥과 지붕 두 슬래브 사이, 즉 바닥부터 천장까지가 유리로 채워진 매우 단순한 형태이다.
“정말 아름다운 환경을 가진 숲 속의 빈터에 집을 지었습니다.” 설계팀을 이끈 건축가 Hugo Fitzgerald의 설명이다. “편하게 안에 앉아서도 손을 뻗으면 숲이 닿을 것처럼 주변 환경과 연결되어 있다는 느낌을 받을 수 있는 집입니다.”
바닥 슬래브가 지면보다 약간 높게 설치되어 있어서, 건물이 땅 위에 떠 있는 듯한 느낌이 들기도 한다. 내부 공간의 바닥과 타일로 마감을 한 테라스 바닥이 완전히 같은 높이로 되어 있어서, 유리문을 열면 생활공간이 자연스럽게 외부로 확장된다. 돌출되어 처마를 이룬 지붕 밑면과 일부 외벽을 목재로 마감하여 건물에 온기가 더해졌다.
내부 공간은 두 구역으로 나누어졌다. 메인 거실, 식탁 공간, 주방 등은 탁 트인 전망을 즐길 수 있는 건물 전면에 배치되었다. 메인 침실도 이곳에 배치하여, 부부가 잠에서 깨어나자마자 아름다운 숲 풍경과 대면할 수 있게 했다.
후방의 공간들에도, 일반적인 일부 창을 제외하고는 대부분이 바닥부터 천장까지 닿게 창이 설치되었다. 이곳에는, 2개의 게스트 룸(그중 하나는 현재 아트 스튜디오로 사용), 머드 룸, 욕실, 다용도실 등이 들어있다.
Architects: Broadway Malyan
Location: Gloucestershire, UK
Photography is by Broadway Malyan
Yoo Forest House by Broadway Malyan














