
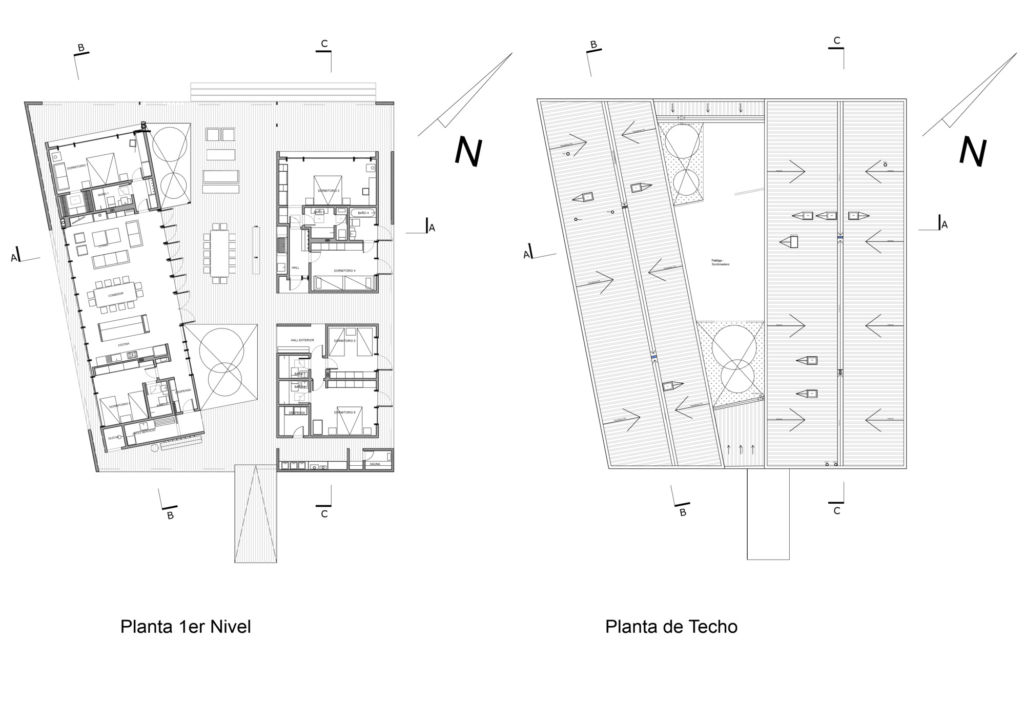
2인 가족과 게스트가 독립적이면서도 함께 거주할 수 있게 지은 컬렉티브 하우스이다. “따로 또 같이”가 이 집의 콘셉트이다.
바닷가 첫 번째 열에 위치한 이 건물은 바다와 사구라는 두 가지 자연환경과 접해 있다. 중앙 공간이 형성되도록 하나로 쭉 이어져 있는 남측 파사드에는 바람을 막기 위해 열 수 있는 창을 설치하지 않았다.
이 집은, 단독 주거, 하나의 지붕으로 덮인 두 개의 개별 게스트 하우스 등 세 개의 채로 이루어졌다. 독립된 두 영역(살림집과 게스트 하우스) 사이의 매개 공간인 공용공간은 만남의 장소이자 이 집의 핵심 공간이다.
이 공간 구성은, 설계의 또 다른 도전 과제인 끊임없이 부는 바람으로부터 보호되는 외부 공간을 만들기 위한 의도의 결과이기도 하다. 이 테라스에는, 그늘이 지도록 만들어서 햇볕과 열을 차단할 수 있도록 굵기가 다른 유칼립투스 막대 지붕이 설치되었다.
The opened corridors, frame different scenes making the landscape appear and reinforce its beauty.
The house has a wooden and cladding structure, with a color palette that blends with the light and tones of the place. The exterior cladding is Leaf Panel, and the interior is Osmo treated pine.
The landscaping, integrates local flora (olive trees, peppers, various varieties of cacti, and other species).
HOUSES • CANELA, CHILE
Architects: Apio Arquitectos
Area: 3229 ft²
Year: 2019
Photographs: Nico Saieh
Manufacturers: AutoDesk, Home Control, Leaf Panel, Nuprotec, Tejas de Chena
Landscaping: Francisca Aldunate y Catalina Philips de Apio Paisajismo
Casa Agua Dulce by Apio Arquitectos























