
오리건주 포틀랜드의 주택가 언덕배기에 새로 지은 단독주택이다. 작은 면적을 차지하는 광물 결정 형태의 이 건물은, 특별한 지형과 전경-중경-배경으로 이어진 전망 등 이 대지만이 가지고 있는 특성에 최적화되었다. 이 집은, 독일의 전설적인 산업 디자이너 디터 람스Dieter Rams의 ‘Less but Better’ 정신을 차용하여 본질주의적으로 접근한 주거 건축 사례이다.
대지는, 언덕 꼭대기에 자리 잡고 있고, 서쪽으로 내리막진 길에 접해 있다. 대지가 도로 쪽에서 후방의 대지 경계 쪽(남쪽)으로도 내리막져 있어서, 남쪽과 남서쪽을 향해 그림 같은 전망이 펼쳐져 있다.
건물은, 목재로 덮인 수정결정 형태의 상자를 콘크리트 대좌 위에 올려놓은 형태로 디자인되었다. 기저부를 형성하는 콘크리트 구조는, 부지를 유지하는 옹벽 역할은 물론 조경 요소이자 비탈진 지형임을 표시하는 수평 기준점 역할을 한다.
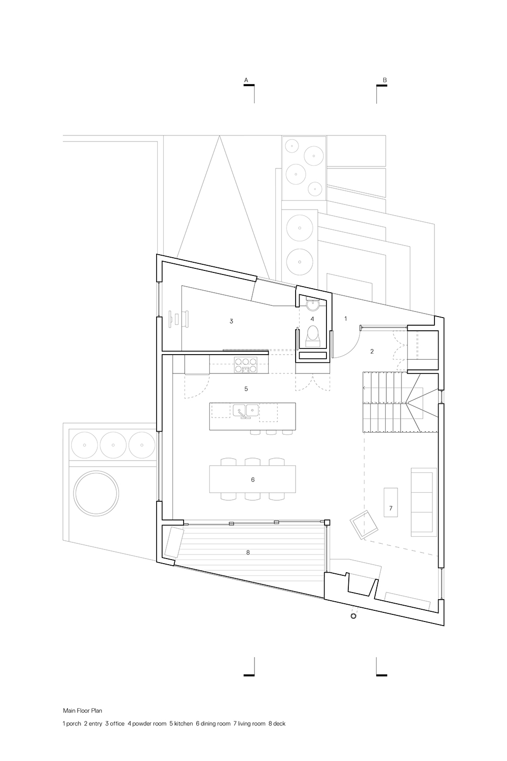
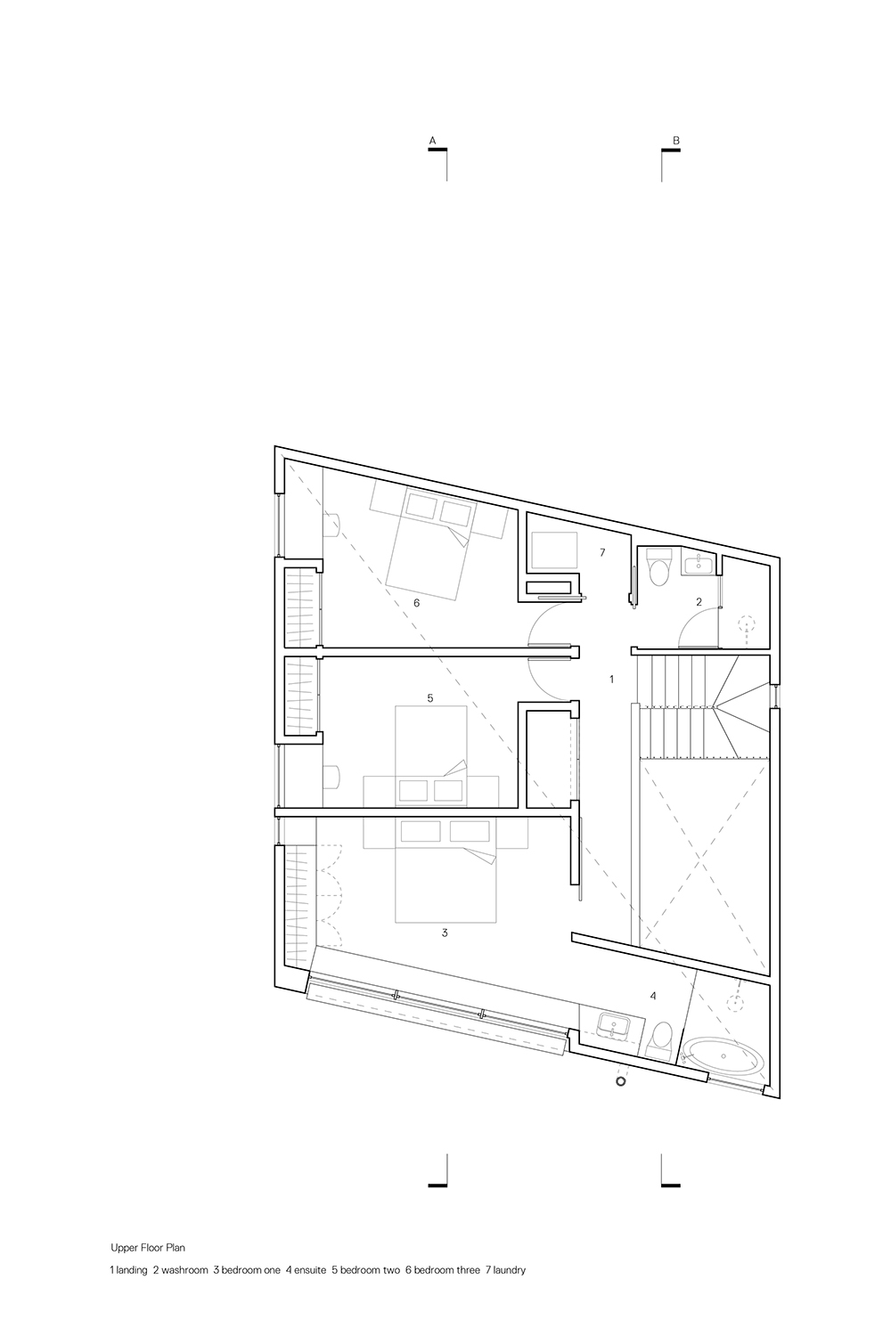
평면은, 남서쪽을 향한 주 전망에 최적화하는 동시에, 도로 쪽에 진입 계단 설치 공간을 확보하기 위해 후퇴시킨 결과, 평행사변형이 되었다.
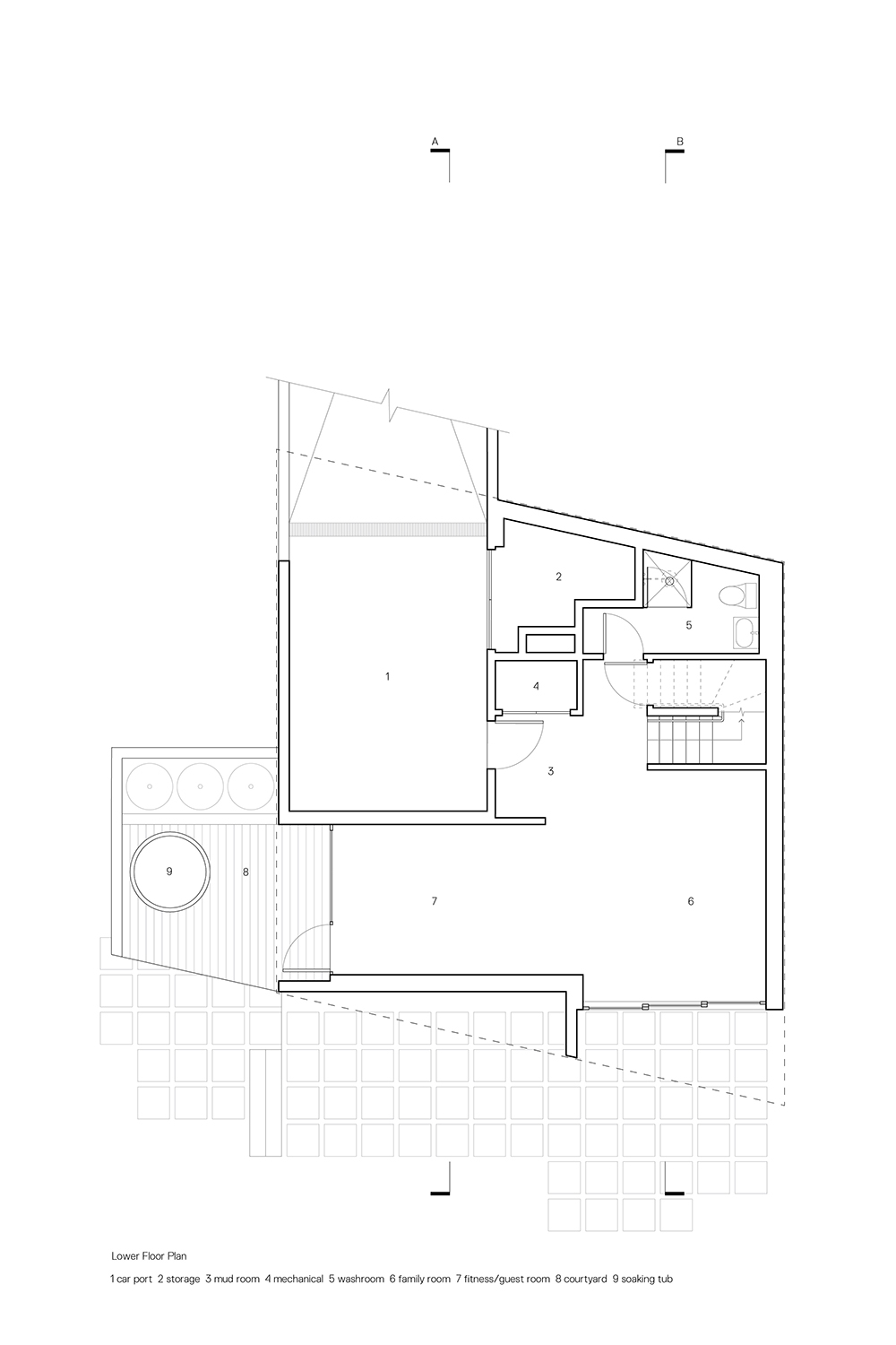
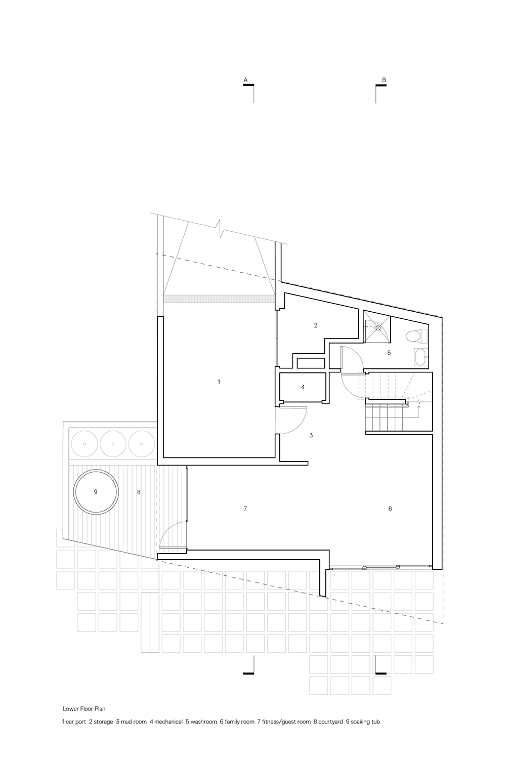
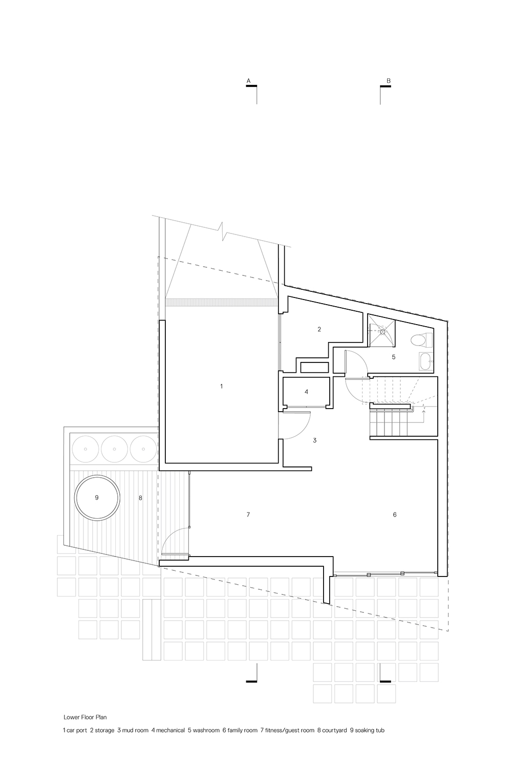
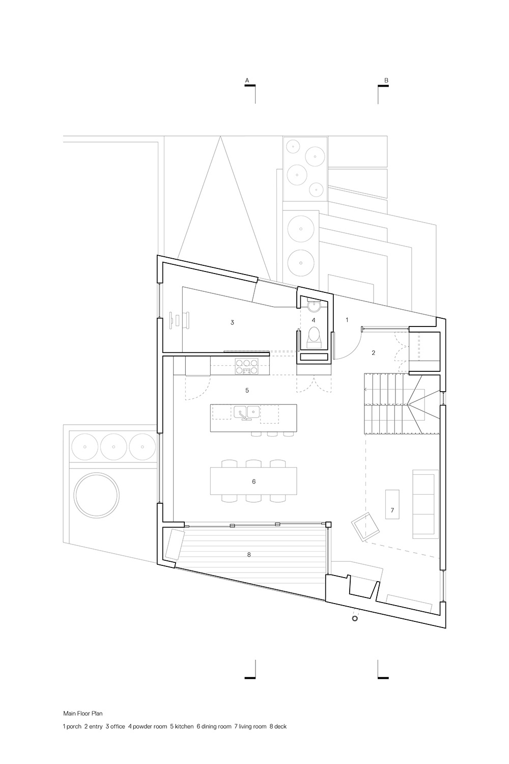
1층은, 철판을 접어서 만든 계단과 천창이 있는 2층 높이의 거실을 비롯한 주방, 식당이 있는 하나의 개방형 공간으로 이루어졌다. 대지가 경사져 있어서, 차고가 들어 있는 지하층에도 남쪽과 서쪽으로 트인 공간을 확보한 다음, 가족실, 요가/명상 공간 겸 게스트 룸 등이 밝고 넓게 배치되었다.
평행사변형 평면, 대각선 방향의 지붕마루, 그리고 캔틸레버 구조를 적용함으로써 역동적인 형태가 만들어져서, 도로에서 보면 위풍당당하게 항해하는 배의 뱃머리를 올려다보는 느낌이 나기도 한다. 대각선 지붕마루 형식의 지붕 및 천장으로 인해, 내부 공간은 물론 높이가 점점 좁아지는 창이 역동적인 분위기를 연출한다.
건축주는, 6세 아들과 12세 딸을 둔 여성 커플이다. 그들은 원래, 증·개축할 생각으로 기존 가옥을 구입했었다고 한다. “그래서 1918년에 지어져서 기초가 무너져가고 있던 기존 건물을 수리할 방안을 찾기 위해 1년이 넘도록 고심을 했습니다.”설계팀의 설명이다. “하지만, 기초를 완전히 새로 구축해야 할 만큼 기존 건물이 낡았다는 판단을 하고, 더 작더라도 건축주의 예산 범위 내에서 새로 현대식 주택을 짓기로 하고, 설계를 진행했습니다.”
기존 가옥을 증축할 생각을 했던 건축주 입장에서는 오히려 다운사이징을 해야 할 처지에 놓이게 되어 걱정이 이만저만이 아니었다고 한다. “기존 가옥이 전체적으로 상당히 넓긴 했지만 지하층이 지중에 위치하여 거의 사용되지 않고 있었습니다.” 설계팀의 설명이다. “그래서 지하층을 포함한 3개 층 전체를, 용도별로 공간을 구역화하는 동시에, 대지와 연계된 공간을 최대한 늘림으로써, 공간의 질을 극대화하는 것을 목표로 삼고 설계를 하여 건축주의 걱정을 해소하였습니다.”
다양한 창을 통해, 이 부지와 인접 부지에 있는 몇 그루의 독특한 큰 나무들을 의도적으로 액자화했다. 그리고 이웃집들과는 대조되는 현대식 외관이지만, 여기에 어두운색을 적용함으로써 나무가 우거진 풍경과 조화를 이루도록 했다.
절제된 색상의 재료들이 사용되었다. 내부에는, 콘크리트, 석고판, 화이트 오크 등이 사용되었고, 여기에 검게 칠한 강재로 포인트를 주었다. 외부는, 검은색 창호와 함께 어두운색 삼나무 보드를 세로로 설치하여 마감했다. 한편, 비가 잦은 미국 북서부 태평양 연안 지역 날씨에 에너지 효율적으로 난방을 할 수 있도록, 붙박이식 장작 난로가 설치되었다.
Architects: Leckie Studio Architecture + Design
Location: Portland, Oregon, USA
Year: 2016
Size: 2,400 sf
Photography: Ema Peter
Ridge House by Leckie Studio Architecture + Design





















