
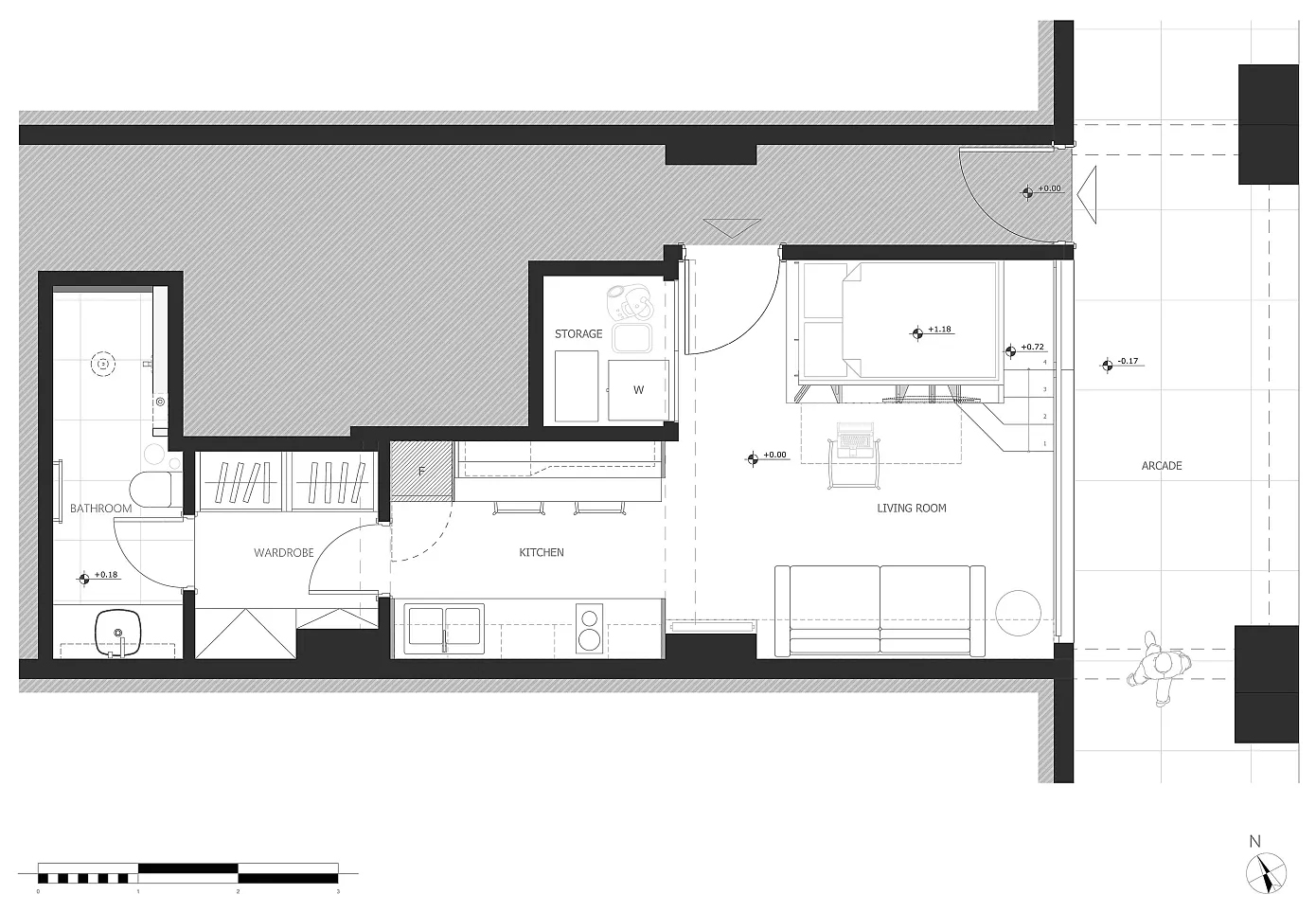
그리스에서 세 번째로 큰 도시인 파트라Patras에 있는 한 건물 안에 들어 있는 학생용 원룸 아파트이다.
“디자인을 하면서 우리는 기존 공간의 단점을 있는 그대로 받아들여서 영감의 원천으로 삼았습니다.” 디자인팀의 설명이다. “우리는, 30제곱미터(약 9평) 규모의 공간을 보다 적극적인 방식으로 활용하여 최대한 다기능 공간으로 만드는 것을 목표로 삼고, 심플하면서도 우아한 스타일인 동시에 캡슐형 공간이나 좁은 선박 공간의 미학을 구현하고자 했습니다.”
모든 기능들이 그대로 드러나 있다. 매트리스를 놓는 것으로 침실이 되었고, 책상은 자체로 서재가 되었으며, 소파가 거실을 대신한다. 거실과 침실 사이에 특별 제작한 다용도 책장이 설치되었다. 나무, 철재 타공판 등 질감이 다양한 재료를 사용하여 거실에 재미를 더했다. 그리고 주방, 드레스 룸, 욕실이 거실 옆으로 줄지어 배치되었다.
“우리에게 또 다른 중요 과제는 거리를 향해 있는 이 아파트의 유일한 파사드를 디자인하는 것이었습니다.” 디자인팀의 설명이다. “이 아파트의 ‘외피’이자 인도와의 ‘경계’인 파사드를 새로 바꾸어서, 사생활은 보호하면서도, 밀실 느낌도 쇼윈도 느낌도 아닌 말 그대로 아파트로 만들고자 했습니다.”
새롭게 디자인된 이 파사드는, 고정창과 열 수 있는 창으로 이루어졌다. 하부는 불투명하게, 중간 부분은 반투명 유리로, 그리고 상부는 투명 유리로 처리되었다. 이를 통해, 언제나 프라이버시를 유지하면서 바깥세상의 다양한 풍경을 즐길 수 있게 되었다.
Design: Arch-Interact
Location: Patras, Greece
Photography by Panagiotis Voumvakis
Cocoon Studio by Arch-Interact















