
처음부터 공간의 크기와 형태를 프로그램에 맞게 계획할 수 있는 신축과, 용도가 다른 기존 공간에 필요한 프로그램들을 구성하는 리노베이션은 근본적으로 다른 작업이다. 이 프로젝트는 후자에 해당한다.
차tea를 선별하는 산업용 시설이었다가 주거용으로 용도가 바뀐 오래된 건물 안에 들어 있는 공간을 리노베이션한 사례이다. 20세기 초(1917년 이전)에 설계하여 붉은 벽돌로 지은 산업용 건축물로, 그 시대 건물치고는 매우 잘 지은 축에 드는 건물이라고 한다.
“우리에게 특별히 매력적인 작업이었습니다.” 디자인팀의 설명이다. “아파트에 필요한 모든 요소들을 이렇게 작은 공간 안에 갖추어야 했기 때문입니다.”
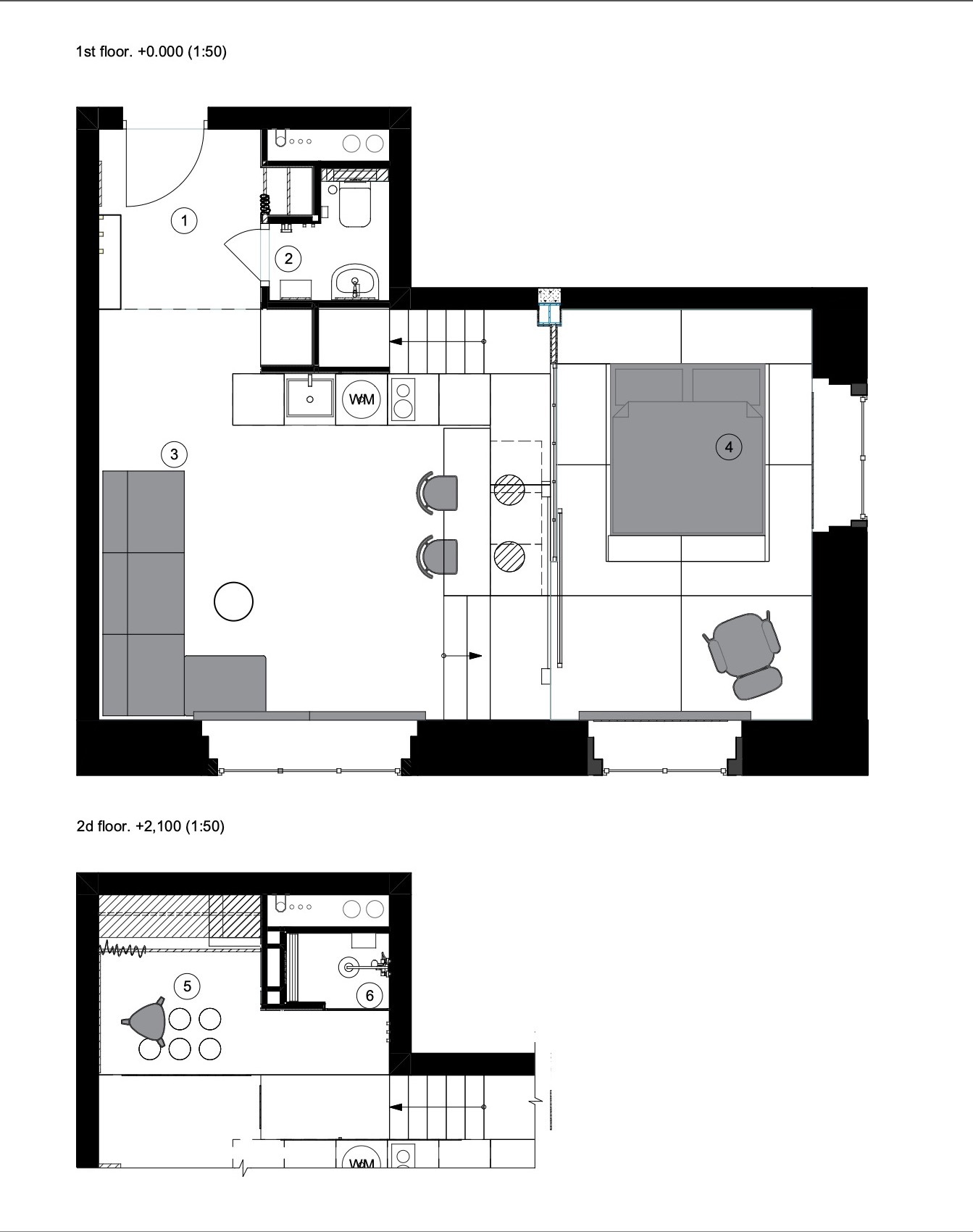
디자인팀의 해법은, 높은 천장고(4.3m)를 이용하여 다양한 레벨의 공간으로 만드는 것이었다. 가장 낮은 레벨의 공간에, 입구, 거실, 주방 등이 자리한다. 창턱 높이의 두 번째 레벨에 침실이 배치되었다. 그리고 세 번째 레벨에는 욕실과 드레스 룸이 갖추어졌다.
색상은, 흰색을 배경으로, 침실 파티션 프레임, 계단 난간, 조명, 전기 액세서리, 테이블 등에 파란색과 검은색을 사용하여 포인트를 주었다.
이 집 디자인의 핵심은, 격자 패턴의 슬라이딩 유리 파티션이다. 문을 열고 닫을 때마다 특별한 광학 효과가 만들어지도록, 요철 줄무늬 유리의 방향이 가로 세로로 번갈아 설치되었다.
크지는 않지만, 충분한 수납공간, 모든 가전제품이 구비된 주방, 풀 사이즈 욕실 등 단위 주거가 갖추어야 할 모든 기능들이 망라되었다.
바 겸 식탁을 위치와 방향을 마음대로 쉽게 바꿀 수 있도록 이동식으로 맞춤 제작하고, 위층으로 향하는 침실 앞 복도를 벤치로 사용할 수 있게 한 것도 인상적이다.
한편, 침실 창문을 가리는 블라인드 외에, 파티션의 거실 쪽에 영화를 볼 수 있는 접이식 스크린이 설치되기도 했다.
APARTMENTS, RENOVATION • MOSCOW, RUSSIA
Architects: Nefa Architects
Area: 53 m²
Year: 2021
Photographs: Ilya Ivanov
Manufacturers: Delo design, Ikea, VitrA
Lead Architects: Dmitry Ovcharov, Elena Mertsalova
Architect: Anastasia Skilyagina
Engineering: Sergey Kurepin
Project Manager: Viktoriya Nagurnaya
Light: Centrsvet
Bauman Loft by Nefa Architects






















