
루마니아 수도 부쿠레슈티에서 차로 1시간이 안 걸리는 거리에 있는, 숲으로 둘러싸인 비정형 주거 지구인 Dumbrava Vlăsiei에 지어진 집이다. 2015년에 택지를 조성하기 시작하여 건물들이 들어서고 있는 Dumbrava Vlăsiei는, 구불구불한 거리와 공공녹지 공간, 그리고 모양과 크기가 제각각으로 분할된 부지 등 독특하면서도 흥미롭게 계획된 주거지이다.
이 집은, 숲과 공원 사이에 위치한다. 심플한 건물을 대지의 길이 방향과 직각으로 배치하여, 남쪽 공원을 향한 앞마당과 북쪽 숲을 향한 뒤뜰이 만들어졌다.
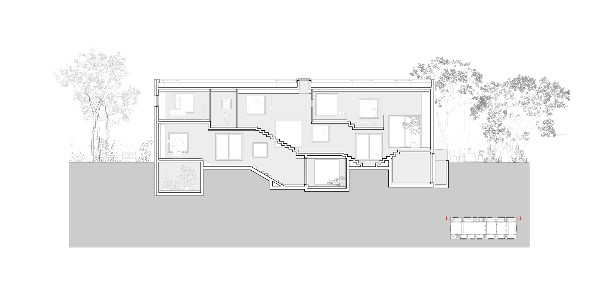
건물의 폭은 좁게, 그리고 건물의 길이는 대지의 전체 너비에 가깝도록 길게 만들어서 앞뒤 두 파사드를 크게 만듦으로써, 이를 통해 숲과 공원을 향한 아름다운 경관을 두 배로 즐길 수 있게 했다. 앞뒤 마당 사이에 놓인 건물 폭이 좁아서 깊숙한 공간이 없기 때문에, 채광이 잘 이루어질 수밖에 없는 조건이 만들어지기도 했다.
집이 납작해서, 앞뒤 창이 겹친 곳에서는 거의 관통해서 보일 정도이다. 그럼에도 불구하고 모든 집의 필수 조건인 신비감과 친밀감은 유지되었다. 이 건물은, 필요한 곳에만 개구부를 낸 두꺼운 벽체와 같다. 딱딱한 느낌의 건물 몸통에 경량 금속 구조로 이루어진 입구의 돌출창과 퍼걸러를 설치하여, 가정적인 분위기가 느껴지도록 만들었다.
이 집은, 직육면체 모양의 콤팩트한 외관, 그리고 선형으로 배치된 공간 구조에도 불구하고, 내부의 많은 개구부와 접속부, 긴 통로, 그리고 순환 구조를 통해, 공간을 지나가는 동선의 가짓수가 수없이 많은 구조를 가지고 있다.
디자인 목표는, 현저하게 기복이 있는 집, 드러나기보다는 찾는 재미가 있는 공간, 반대쪽 끝에서도 서로 듣고 볼 수 있는 공간을 만드는 것이었다고 한다.
그 결과, 상하로 아래위층의 구분이 확실한 판상 구조를 탈피한 3차원 구조의 집, 여러 경로로 정원과 연결된 집, 건물을 통해 이 정원에서 저 정원으로 횡단할 수 있는 집(정원과 정원 사이를 매개하는 공간)인 동시에, 안에서의 생활이나 정원에 의해 표정이 달라지는 집이 되었다.
HOUSES, HOUSE INTERIORS • ROMANIA
Architects: ADNBA
Area: 319 m²
Year: 2021
Photographs: Daniel Miroțoi, Sabin Prodan, Laurian Ghinitoiu
Manufacturers: ALUKÖNIGSTAHL, The Natural wood Floor Company, IR Colours
Lead Architects: Andrei Șerbescu, Adrian Untaru, Mihail Filipenco, Alexandra Aramă, Cristina Budan, Romina Pasculovici, Alexandru Apostol
Architects: ADNBA
Structure: Incona
MEP: Alma Instal Pro
Landscaping: Beros Abdul Architects
DUMBRAVA VLĂSIEI, BUCHAREST by ADNBA
























'House' 카테고리의 다른 글
| 따로 또 같이! 비탈 따라 지은, 3층 같은 단층집, Slope House by El Sindicato Arquitectura (0) | 2022.01.25 |
|---|---|
| 차고와 본채를 브리지로 이은, 정방형 벽돌집, Brick House in Madrid by Tuñón y Albornoz Arquitectos (0) | 2022.01.24 |
| 가변성을 극대화한 실험 건축! 용도별로 블록화한 브루탈리즘 주택 (0) | 2022.01.20 |
| 경관과 하나된 집에서 그 경관을 즐기며 살다. Barrow House by ID Architecture (0) | 2022.01.19 |
| 겨울 정원 품은 집! 교사 유치를 위한 덴마크의 시골 학교 관사, House on the Hill by Arcgency (0) | 2022.01.18 |