
사용하지 않고 버려둔 옥상의 잠재력을 회복시킨 최근 사례로, 발렌시아 중심부에 위치한 건물이다. “도시에서 건축으로 빼앗긴 지상의 열린 공간을 보상 받을 수 있는 것이 옥상이란 생각으로 프로젝트를 진행했습니다.” 설계를 한 설계팀의 설명이다.
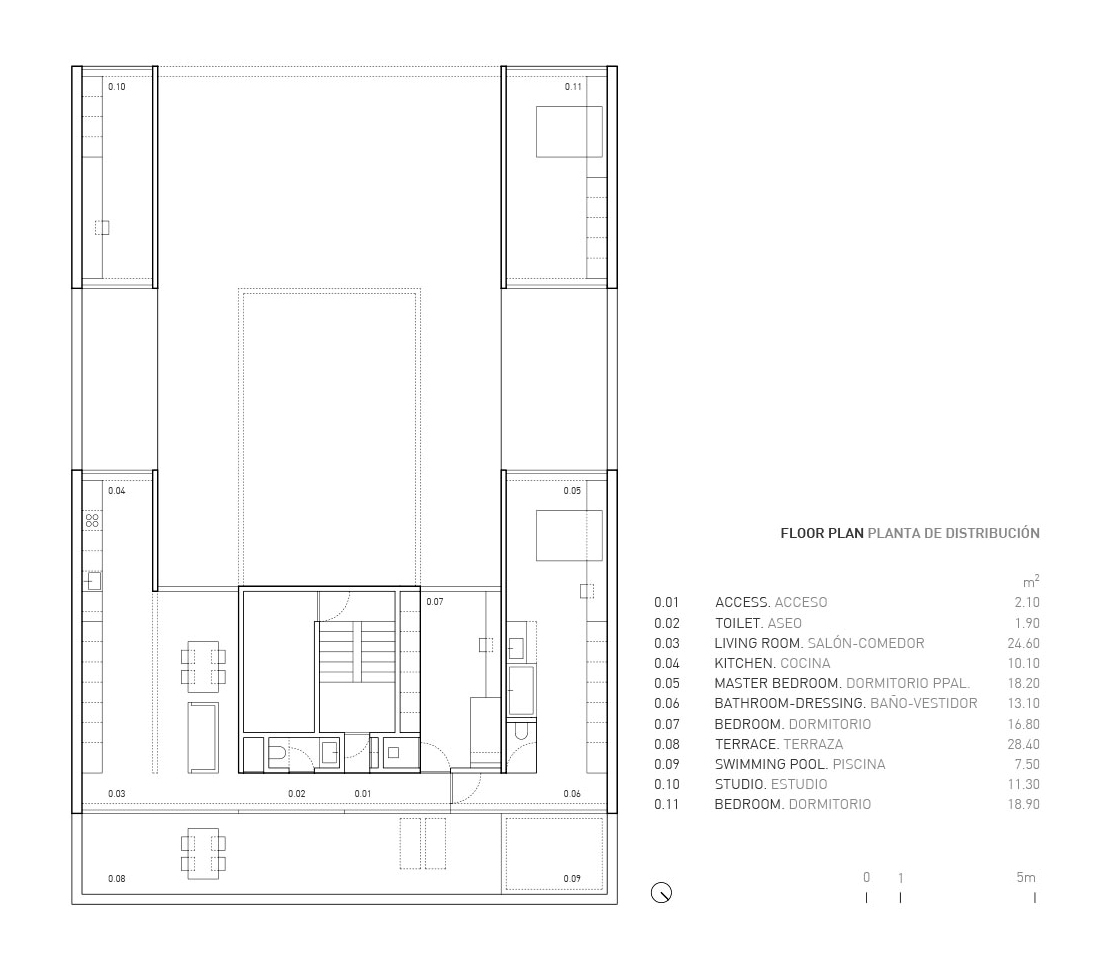
가운데 계단을 통해 올라가면, 입구 한쪽으로 개방형의 주방, 식당, 거실이 있다. 이 공간은, 양쪽이 서로 다른 테라스로 연결된 맞통풍 구조를 하고 있다.
그리고 입구 다른 한쪽으로 침실 영역이 위치한다. 다른 영역들처럼 침실 영역도 하나의 축을 따라 배치되었고, 천장의 선형 조명이나 붙박이 가구와 같은 다양한 요소들을 이 축 방향으로 설치하여, 방향성이 배가되었다.
테라스는, 설 경우에만 발렌시아시를 바라볼 수 있을 정도로 파라펫을 높게 설치하여, 하늘을 향해 열린 일종의 아트리움처럼 처리되었다. 이를 통해, 도시 중심에서 작은 외딴 마을에 사는 듯한 기분을 느낄 수 있는 집이 되었다.
“옥상은 도시 위에 존재하는 또 다른 도시와 같다.” 포르투갈 건축가 알바로 시자Alvaro Siza가 한 말이다.
ARCHITECTURE FRAN SILVESTRE ARQUITECTOS. VALENCIA
LOCATION Valencia Spain
INTERIOR DESIGN ALFARO HOFMANN
PROJECT TEAM Fran Silvestre | Project Architect
Ricardo Candela| Project Architect
Rosa Juanes | Project Architect
Sevak Asatrián | Project Architect
PHOTOGRAPHY Diego Opazo
VIDEO Jesús Orrico
Àtic Blanc by Fran Silvestre Arquitectos






























