
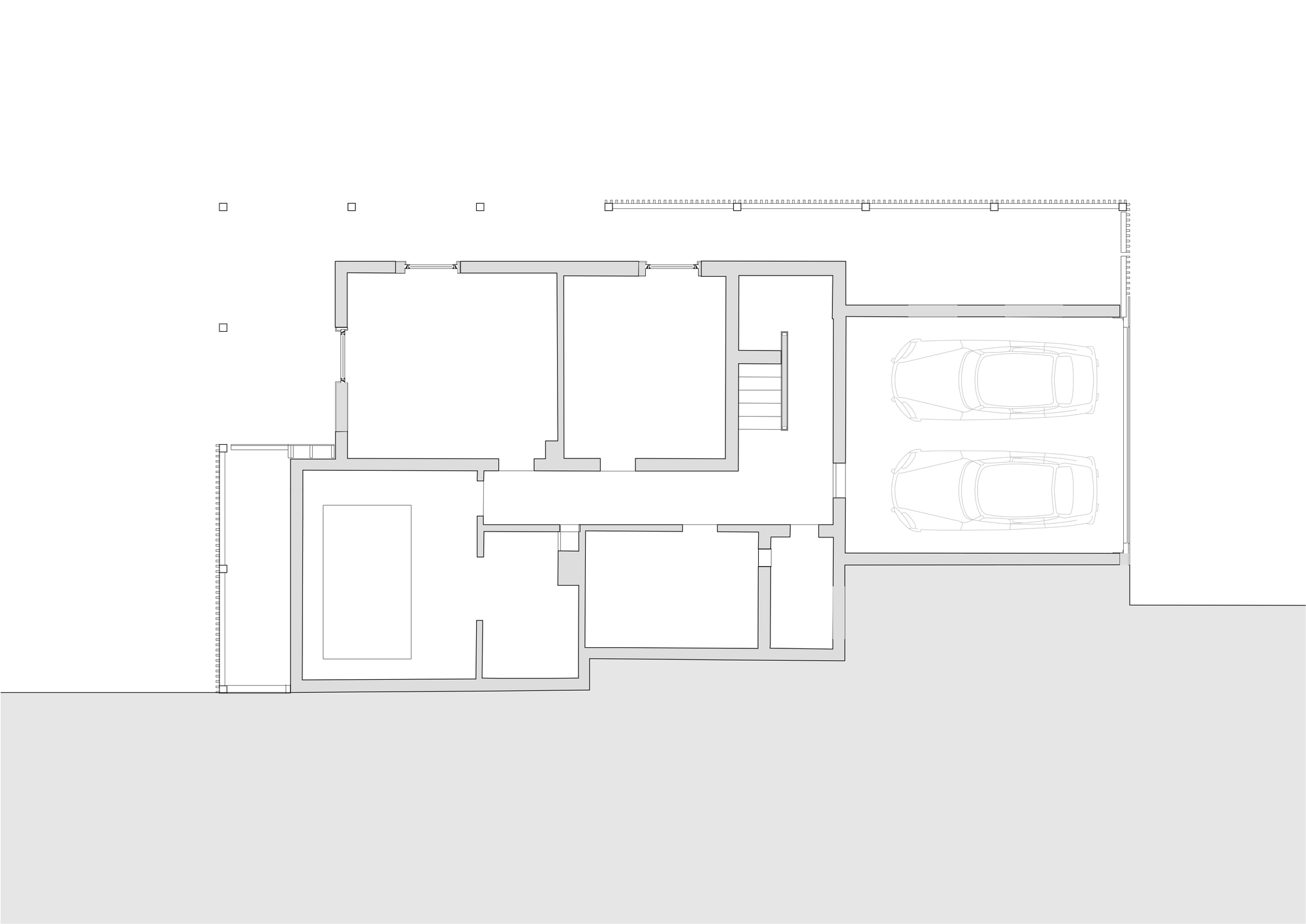
보덴호에서 알프스까지가 보이는 라인강 계곡의 언덕에 있는 마을에 위치한 단독 주택의 증·개축 사례이다. 원래 80년대에 지어진 이 집은, 이후 여러 차례 재구조화 및 개조를 거쳐 누더기 건물이 되어 있었다고 한다. 필요할 때마다 부분적으로 수리했던 일을 더 이상 반복하지 않기 위해 전면적으로 수리를 했다.
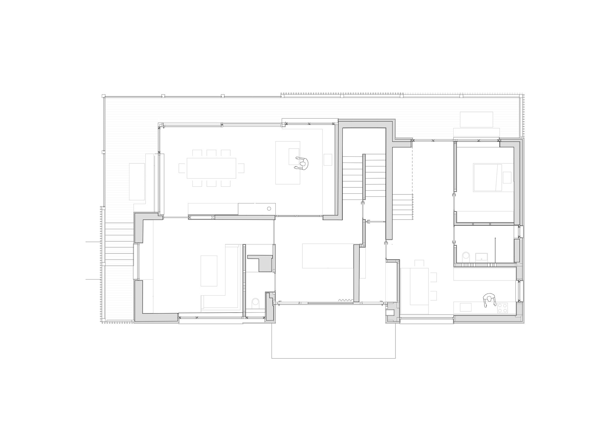
지하층과 1층은 개조를 했고 2층은 층고가 낮아서 철거 후 현대식 목조 건물로 대체되었다. 구조 조정을 통해, 두 층에 걸친 거실, 식사 공간 등 파티에 필요한 공간이 넉넉하게 확보되었다.
이질적인 재료로 이루어진 건물 전체 외부가 전나무 원목 부재로 균일하게 마감되었다. 이 외피와 기존 건물 사이의 반 외부 공간들에 의해 시각적으로나 기능적으로 내부와 외부 사이가 강하게 연결되었다. 그리고 내부는 거대한 가구처럼 인테리어되었다.
증·개축을 통해 기존 소유자를 포함하여 이제 모두 세 가구용 주거 건물이 되었다.
HOUSES • AUSTRIA
Architects : MWArchitekten
Area : 370 m²
Year : 2022
Photographs : Adolf Bereuter
Manufacturers : Böhler, Foscarini, PREFA
Lead Architect : Lukas Peter Maehr
Civil Engineer : Martin Fetz
Site Management : Martin Fetz
Building Physicist : Gerhard Bohle
Carpenter : dr Holzbauer
Carpenter Furniture : Tischlerei Künzler
Carpenter Doors : Tischlerei Kühne
Windows : Böhler Fenster
Plumber : Bechter Sanitär Heizung GmbH
Generationenhaus mit Blick by MWArchitekten



























