
영국에서 가장 유명한 서핑 해변인 피스트랄 비치Fistral Beach, 그중에서도 Esplanade Road의 절벽에 있는 계단식 테라스 정원 위에 자리 잡은 주택이다. 주거 겸 작업 공간인 이 3층 건물은 최소한의 색상과 창의적인 아이디어로 건축되었다.
이 집에는 단 경사 징크 지붕이 적용되었다. 파사드에는 ‘만재 흘수선’이 표시되었다. 윗부분은 매끄럽게 아랫부분은 거칠게 마감되었다.
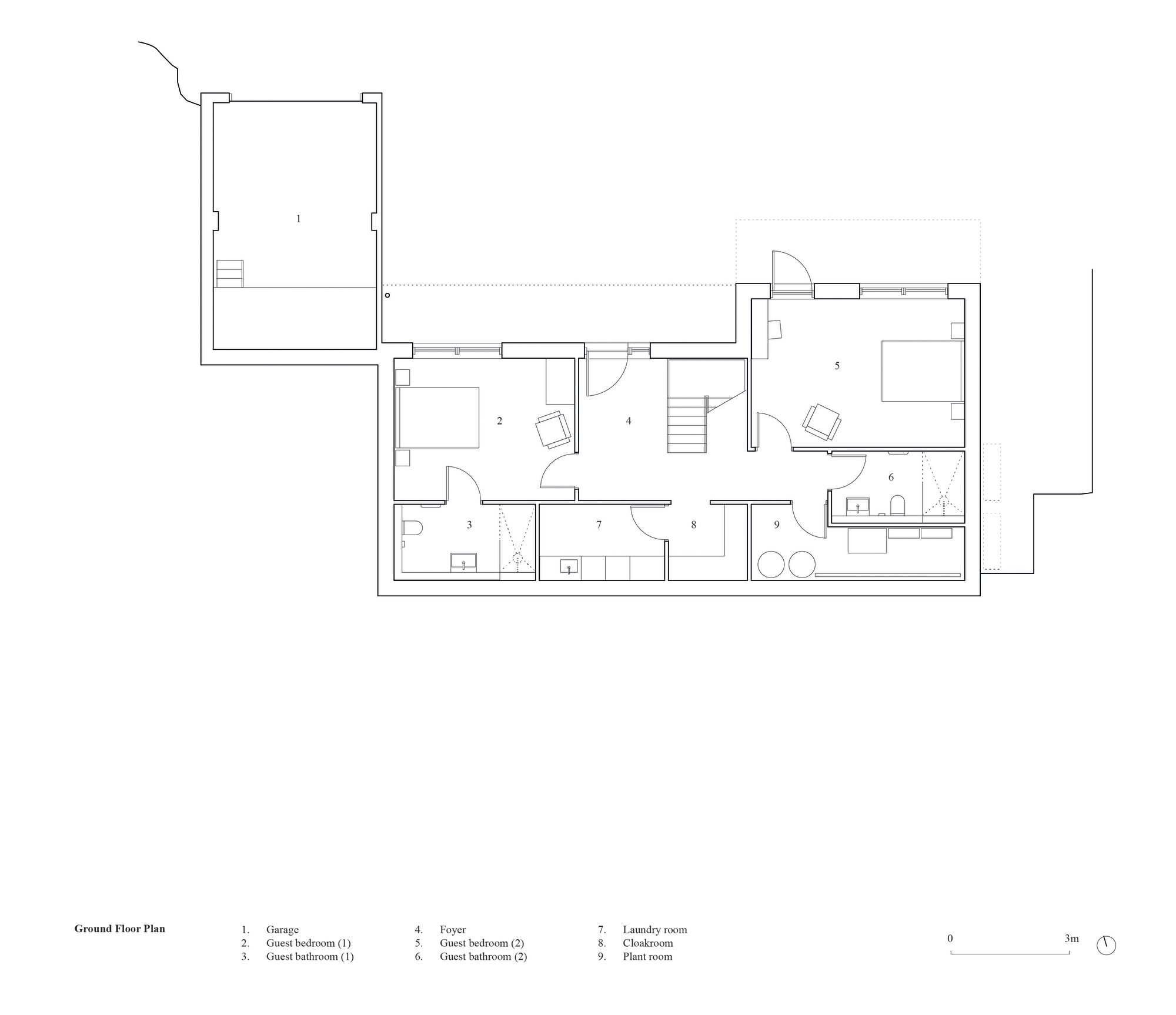
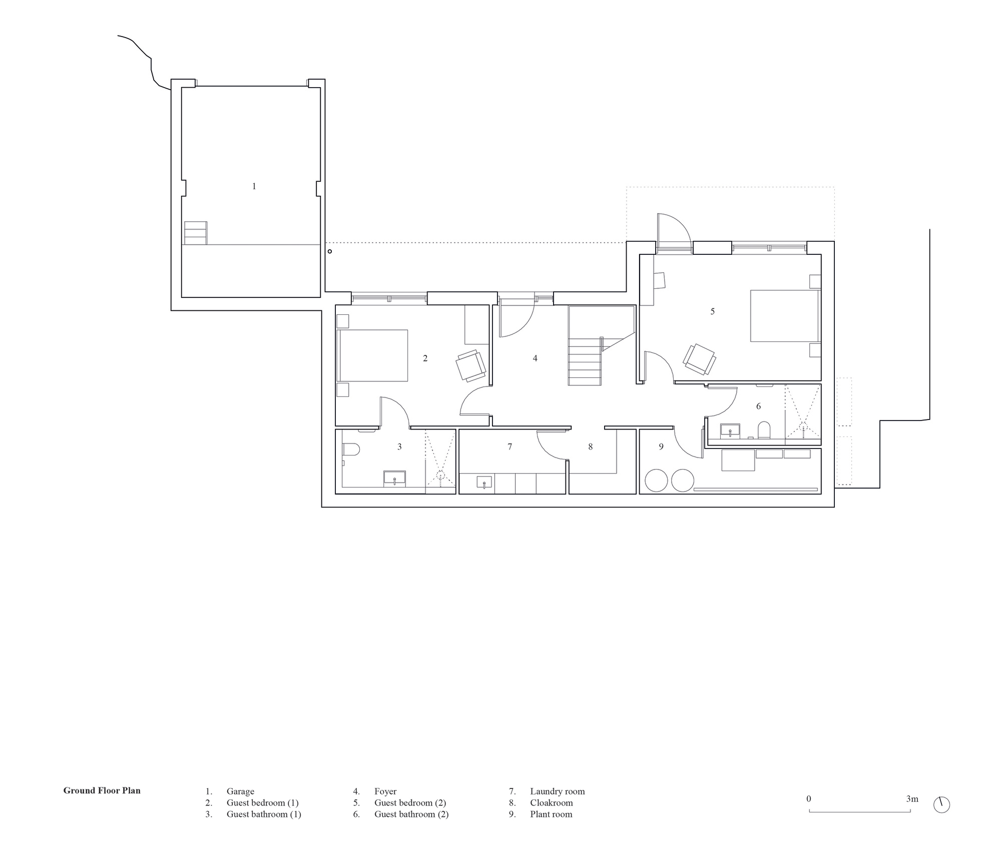
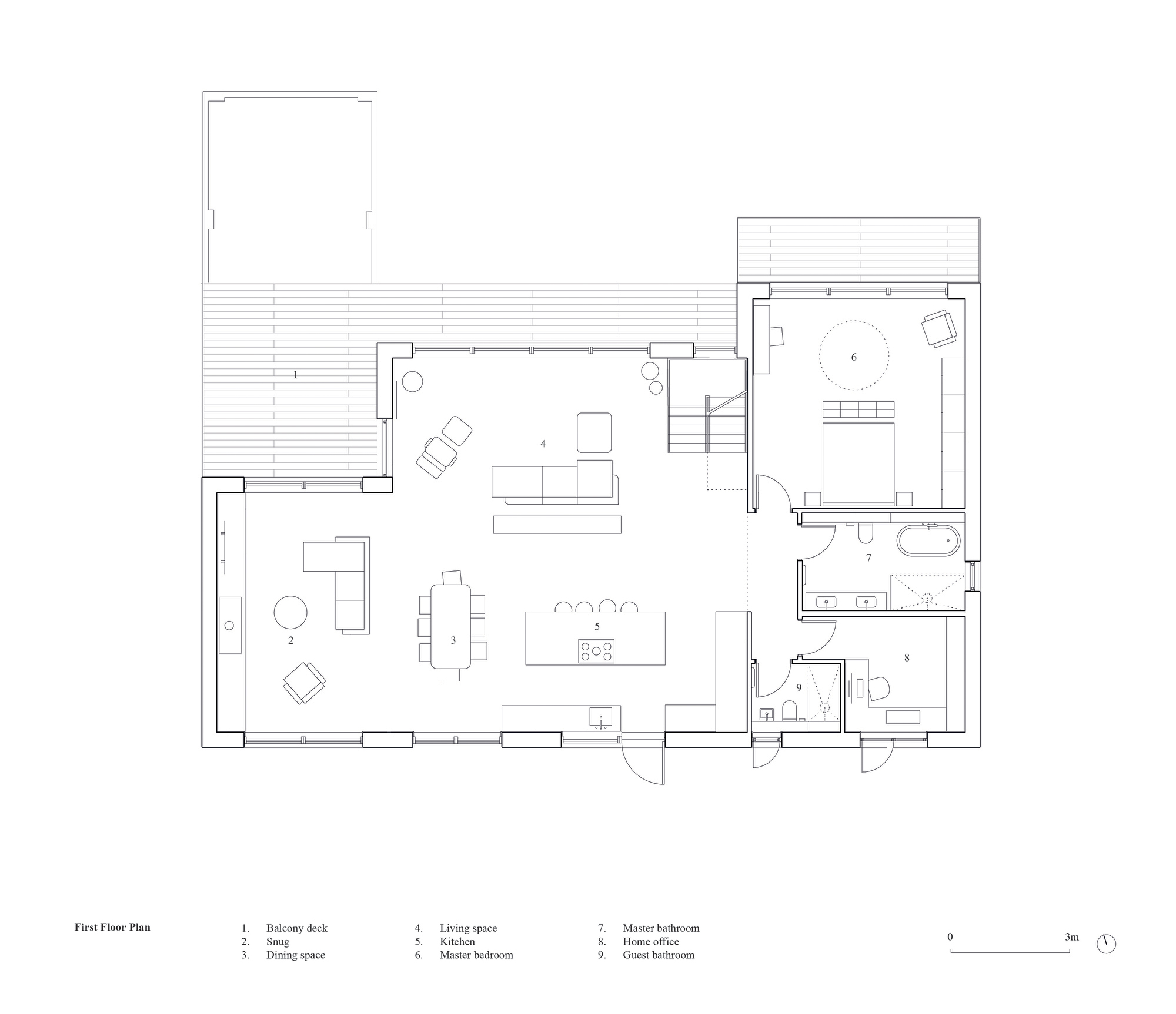
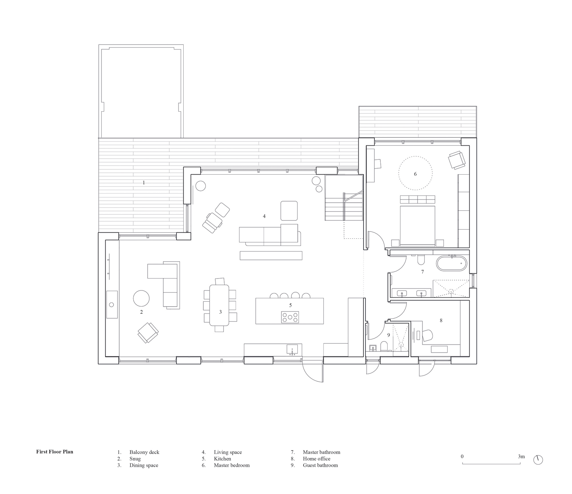
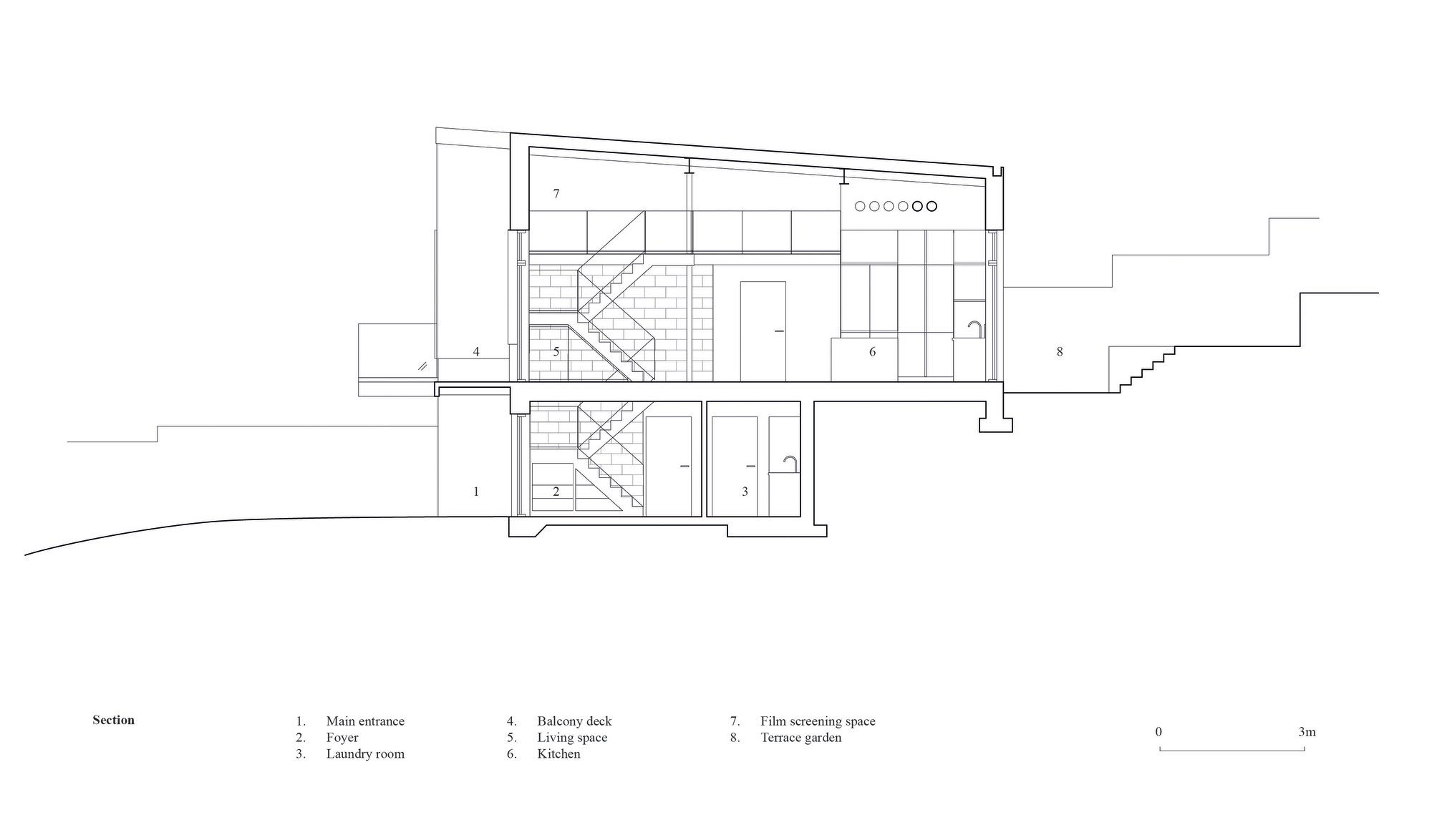
경사진 지형을 활용한 공간 구조로 계획되었다. 전 층을 연결하는 합판 마감 계단이 조형적으로 디자인되었다. 4m 높이의 천장에는 지붕 구조재가 노출되었다. 천창이 있는 최상층의 영화감상실 겸 서재는, 독서와 휴식을 취할 수 있는 친밀한 환경을 제공한다.
건축주의 요구는, 일상적인 세간과 물건을 사용하여 특별한 것을 만들어달라는 것이었다고 한다. 실용적이고 산업적인 미학의 품질을 가진 주거환경을 만들어달라는 것이다.
내부에 콘크리트 블록을 사용하여, 이 지역 석조 건축의 아름다움을 표현하고자 했다고 한다. 아연 도금 전선관과 덕트를 노출시키고, 산업용 조명 설비를 적용함으로써, 장식을 하지 않은 사회 기반 시설 느낌이 나게 했다.
HOUSES • NEWQUAY, Cornwall, UNITED KINGDOM
Architects : Of Architecture
Area : 360 m²
Year : 2022
Photographs : Lorenzo Zandri
Manufacturers : RHEINZINK, Bespoke Stainless Steel, Fassa Bortolo, IdealCombi, Sum of All Parts
Project Architect : James Mak
Lead Designer : Fai Chung, Philip




















