
포르투갈 중부 안시앙Ansião에 속해 있는 작은 마을인 Casal de São Brás의 언덕 위에 위치한 주택이다. 전반적인 콘셉트는 현장을 처음 방문했을 때의 1차 분석으로 가닥이 잡혔다고 한다.
나무와 바위가 많아서 훌륭한 자연 환경을 제공하는 땅이라는 점과 함께, 이 땅에 깃들어 있는 옛 민속 전통이 콘셉트에 반영되었다. 기본적으로 동물에게 꼴을 먹이는 목초지였던 이곳에서 설계팀은 사람들이 모이는 장소이기도 한 타작마당을 발견했다고 한다. 그래서 콘셉트를 ‘Casa Chouso’로 잡은 것.
‘CHOUSO’는 양치기들이 가축을 가두기 위해 울타리를 친 영역을 의미한다. 건축주는 자연과 하나가 된 집을 원했다고 한다. 감싸고 있는 자연에서 생겨난 것처럼 주변 환경과 조화를 이룬 이 집이 꿈꾸던 딱 그런 집이라고.
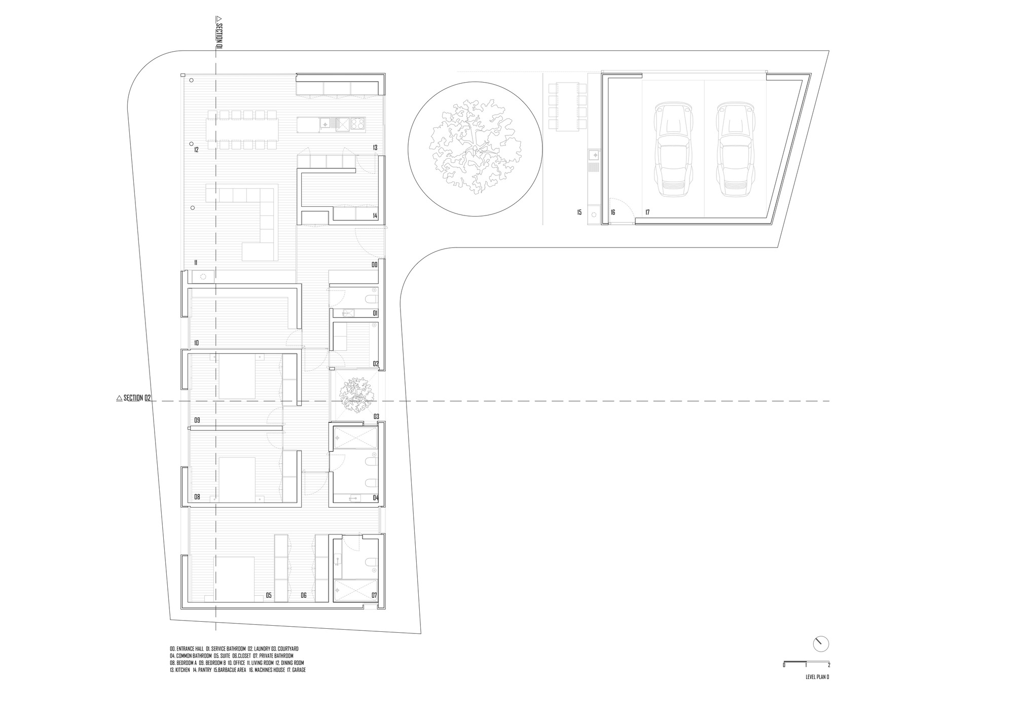
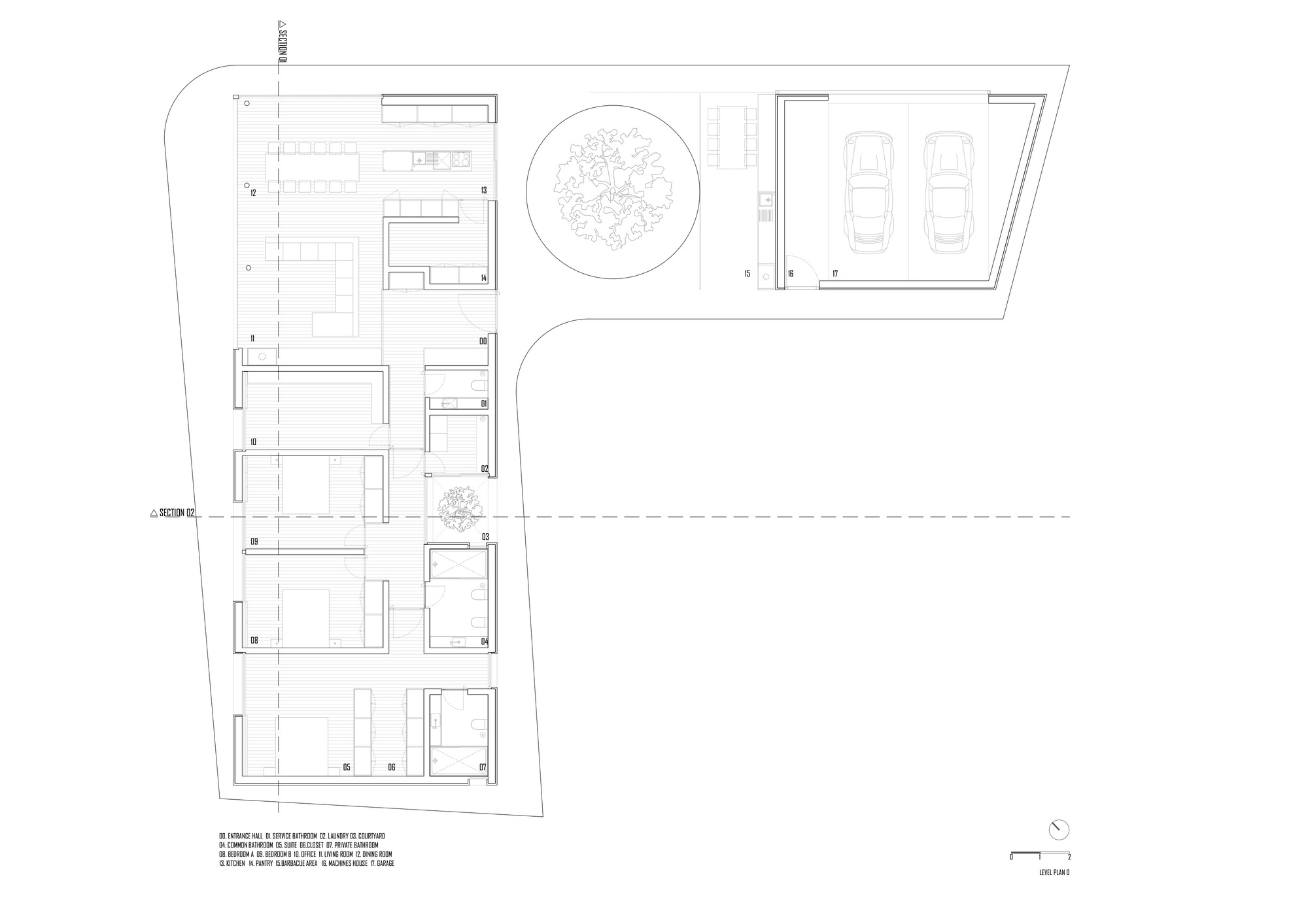
파티오를 사이에 두고, 거실, 침실, 서재 등 주거 영역과 바비큐, 차고 등 부속 영역으로 구분된, ㄱ-자형 평면으로 계획되었다. 매개, 전이, 완충 공간인 파티오는, 설계팀이 발견한 타작마당과 유사하게 배치되었다. 인접 도로에서 프라이버시를 제공할 뿐만 아니라 주변 경관을 충분히 즐길 수 있게 계획된 집이기도 하다.
한편, 내부는 석재와 목재 위주의 천연 재료를 기반으로 하여 공간이 현대적이면서도 아늑하게 인테리어 되었다.
HOUSES • ANSIÃO, PORTUGAL
Architects : Bruno Dias Arquitectura
Area : 420 m²
Year : 2022
Photographs : Hugo Santos Silva
Manufacturers : Paumarc, Portave, Systalprof
Project Team : Bruno Lucas Dias, Tânia Matias, Cristiana Henriques
Construction : Pireslar – Construções, lda; Carlos Miguel Constructora
MEP : Canalizações Alvorgense
Coating : Carlos Silva e Miguel Ferreira
Metalworking : Ofimetal
Casa Chouso by Bruno Dias Arquitectura






























